FacadeChange Ferdigattest Enebolig

Ettergodkjenning av underetasje og fasadeendring i Runes vei 5

📍 Runes vei 5 , 3151 TOLVSRØD

Nøkkelinfo

Sakstype
Fasadeendring
Bygningstype
Enebolig
Bruksareal
91 m²
Boenheter
1
Kommune
Tønsberg
Fylke
Vestfold
Gnr / Bnr
151 / 443
Saksnummer
2026/6021
Fase
Ferdigattest

Om byggesaken

Prosjektet omfatter en eksisterende enebolig med en ny godkjent underetasje på 91,3 m² som inkluderer kjellerstue, gang, soverom, WC og flere boder. Det er gjennomført fasadeendringer på alle sider av huset med tre som fasademateriale og saltak med teglstein. Fasaden har totalt 10 vinduer og 2 dører, samt pipe og garasjeport på nordfasaden. Endringer i bærende konstruksjoner er planlagt, men ikke gjennomført. Terrasse er redusert i størrelse og plassert mot sør. Rømmingsvindu i kjeller er justert for å tilfredsstille krav. Prosjektet har fått ferdigattest, og ansvarlig prosjekterende er KB Arkitekter AS.

Produkter og materialer

Trapper innvendig trapp

🧱 tre

Antall: 1

ny trapp og platting i 1. etasje

Innvendig trapp mellom etasjer

Tømrer bærende konstruksjoner i tre

🧱 tre

endringer i bærende takkonstruksjoner planlagt, men ikke gjennomført

Tømrerarbeider knyttet til bærende konstruksjoner og fasadeendringer

Terrasse terrasse i tre

🧱 tre

Antall: 1

redusert terrasse mot sør, ikke rundt hjørnet mot vest

Ny terrasse i tre mot sør

Vinduer fasadevindu

🧱 tre med 3-lags glass

Antall: 10

vinduer i fasade Sør (4), Øst (2), Nord (4), inkludert utvidet kjellervindu for rømming

Fasadevinduer i tre med energiglass, inkludert rømmingsvindu i kjeller

Betong grunnmur og kjellervegger

🧱 betong

underetasje/kjeller med bærende konstruksjoner i betong

Betongkonstruksjoner for underetasje og fundament

Garasjeport garasjeport i tre

🧱 tre

Antall: 1

garasjeport på nordfasade

Garasjeport tilknyttet bolig

Brannvern rømmingsvindu

Antall: 2

rømmingsvindu i kjellerstue, eksisterende kjellervindu utvidet for rømmingskrav

Rømmingsvinduer i kjeller for brannsikkerhet

Dører ytterdør

🧱 tre

Antall: 2

ytterdører i fasade Sør (1) og Nord (1)

Ytterdører i tre til bolig og kjeller

Fasade trepanel

🧱 tre

tre som fasademateriale på alle fasader

Trepanel som fasadekledning

Pipe pipe i mur

🧱 mur

Antall: 1

pipe tilknyttet bolig

Murpipe på flere fasader

Tak saltak med teglstein

🧱 tre og teglstein

Antall: 1

saltak med teglstein på Sør og Øst fasade, flatt tak med teglstein på Nord fasade

Tak med saltak og teglstein, samt flatt tak med teglstein

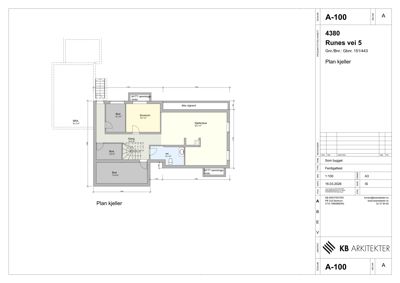
Plantegning

Enebolig 91.3 m²

Etasje 0 91.3 m²

Rom Areal Vinduer Dører
Kjellerstue 001 32.7 m² 2 1
Gang 002 14.3 m² 0 0
Soverom 003 10.7 m² 1 1
WC 004 6.1 m² 0 1
Bod 005 6.1 m² 0 1
Bod 006 4.5 m² 0 1
Bod 007 11.8 m² 0 1

Fasader

Enebolig

Sør
Materiale
Tre
Taktype
Saltak
Takmat.
Tegl
Vinduer
4
Dører
1
Synlige etasjer
1
Øst
Materiale
Tre
Taktype
Saltak
Vinduer
2
Dører
0
Synlige etasjer
1
Nord
Materiale
Tre
Taktype
Flatt tak
Takmat.
Tegl
Vinduer
4
Dører
1
Synlige etasjer
1

Hendelser

17.04.2026 Runes vei 5 - 151/443 - ettergodkjenning av underetasje, fasadeendring og endring av bærende konstruksjoner - søknad om ferdigattest - 2. purring
17.04.2026 Runes vei 5 - 151/443 - ettergodkjenning av underetasje, fasadeendring - ferdigattest
14.04.2026 Runes vei 5 - 151/443 - ettergodkjenning av underetasje, fasadeendring og endring av bærende konstruksjoner - søknad om ferdigattest - purring
17.03.2026 Runes vei 5 - 151/443 - ettergodkjenning av underetasje, fasadeendring og endring av bærende konstruksjoner - søknad om ferdigattest