FacadeChange Soeknad Enebolig

Fasadeendring og takombygging på enebolig i Steinurbakken 9

📍 Steinurbakken 9A , 3943 PORSGRUNN

Nøkkelinfo

Sakstype
Fasadeendring
Bygningstype
Enebolig
Bruksareal
49 m²
Boenheter
1
Kommune
Porsgrunn
Fylke
Telemark
Gnr / Bnr
58 / 75
Saksnummer
2026/4455
Fase
Søknad

Om byggesaken

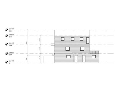
Endring av takløsning på en eksisterende to-etasjes enebolig med saltak i tre, beliggende i Steinurbakken 9. Det nye taket får en helhetlig vinkel på 22 grader, noe som øker gesimshøyden fra 7,45 til 8 meter og gir full takhøyde på 2,4 meter i 2. etasje. Dette forbedrer utnyttelsen av arealet i 2. etasje ved å eliminere lav takhøyde i hjørner. Det er også endret romfordeling med flere soverom og flere vinduer for bedre lysforhold, mens badet forblir uendret. Fasaden består av trekledning med saltak, og det er flere nye vinduer og dører i fasadene.

Produkter og materialer

Tak Saltak

🧱 tre

Ny takvinkel 22 grader, gesimshøyde økt til 8 meter, mønehøyde ca. 9,9 meter

Ombygging av eksisterende saltak for bedre takhøyde og arealutnyttelse i 2. etasje

Gulv Innvendig gulv i 2. etasje

Oppgradering eller tilpasning av gulv i 2. etasje etter ombygging

Grunnarbeid Ingen endring

Ingen grunnarbeider da prosjektet gjelder fasade og takendring

Vinduer Fasadevindu

🧱 tre eller tilsvarende

Antall: 6

Flere nye vinduer i 2. etasje for bedre lysforhold

Utskifting og tillegg av fasadevinduer i 2. etasje

Tømrer Ombygging tak og vegger

Tømrerarbeid for ombygging av tak og endring av romfordeling i 2. etasje

Dører Ytterdør

Antall: 1

Mulig utskifting eller tilpasning av ytterdør i forbindelse med fasadeendring

Fasade Trekledning

🧱 tre

Eksisterende trekledning beholdes eller tilpasses ny fasade

Fasadeendring med tilpasning av trekledning til ny takform

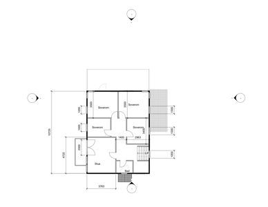
Plantegning

Enebolig 48.6 m²

Etasje 2 48.6 m²

Rom Areal Vinduer Dører
Soverom 201 10.5 m² 1 1
Soverom 202 10.5 m² 1 1
Soverom 203 10.5 m² 1 1
Soverom 204 7.1 m² 1 1

Fasader

Enebolig

Vest
Materiale
Tre
Taktype
Saltak
Vinduer
5
Dører
1
Synlige etasjer
2
Øst
Materiale
Tre
Taktype
Saltak
Vinduer
4
Dører
1
Balkonger
1
Synlige etasjer
2
Nord
Materiale
Tre
Taktype
Saltak
Vinduer
3
Dører
1
Synlige etasjer
2
Sør
Materiale
Tre
Taktype
Saltak
Vinduer
2
Dører
1
Balkonger
1
Synlige etasjer
2
Ukjent
Materiale
Tre
Taktype
Saltak
Høyde
8.1 m
Mønehøyde
9.9 m
Vinduer
6
Dører
1
Balkonger
2
Synlige etasjer
3

Hendelser

16.04.2026 Søknad om fasadeendring - Gbnr. 58/75, Steinurbakken 9