FacadeChange UnderBehandling Enebolig

Fasadeendring og innbygging av takoverbygg på enebolig i Hafstadvegen 42, Førde

📍 Vassvegen 2A , 6973 SANDE I SUNNFJORD

Nøkkelinfo

Sakstype
Fasadeendring
Bygningstype
Enebolig
Bruksareal
304 m²
Boenheter
1
Kommune
Sunnfjord
Fylke
Vestland
Gnr / Bnr
161 / 116
Saksnummer
2026/2513
Fase
Under behandling

Om byggesaken

Fasadeendring og innbygging av takoverbygg på en eksisterende enebolig med totalt 304,2 m² BRA i Hafstadvegen 42, Førde. Prosjektet inkluderer flytting av yttervegg mot hage for å utvide kjøkken- og stuedelen, samt bytte av flere vinduer. Innbygging av takoverbygg skal gi økt innvendig areal uten å øke bebygd areal. Bygget har to etasjer med flere soverom, bad, bod og stueområder. Endringene vil forbedre funksjonaliteten og bruken av boligens oppholdsrom.

Produkter og materialer

Gulv Innvendig gulv

Nytt gulv i innbygget takoverbygg og utvidet kjøkken/stueområde

Vinduer Fasadevindu

Bytte ut flere vinduer i fasaden mot hage

Nye fasadevinduer som erstatter eksisterende, tilpasset ny fasade

Fasade Yttervegg med kledning

Flytting av yttervegg mot hage for å utvide kjøkken- og stuedel, ny fasade mot hage

Endring av yttervegg og fasade, inkludert kledning og isolasjon

Tømrer Bygningsarbeid

Flytting av vegg, innbygging av takoverbygg, montering av nye vinduer og dører

Tømrerarbeid knyttet til fasadeendring og takoverbygg

Isolasjon Vegger og tak

Isolasjon i ny yttervegg og innbygging av takoverbygg

Isolasjon for å opprettholde varme- og lydstandard ved fasadeendring og takoverbygg

VVS Vann og avløp

Eventuelle tilpasninger i vann- og avløpsinstallasjoner ved utvidelse av kjøkken og stue

Elektro Innvendig elektrisk anlegg

Elektrisk arbeid for nye rom og fasadeendringer

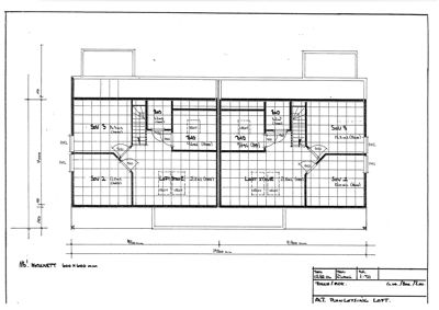
Tak Innbygging av takoverbygg

Innbygging av eksisterende takoverbygg for å øke innvendig areal

Ombygging av takoverbygg til innvendig romareal

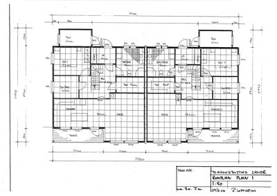
Plantegning

Enebolig 304.2 m²

Etasje 1 198.0 m²

Rom Areal Vinduer Dører
Stue 101 35.6 m² 2 1
Kjøkken 102 12.0 m² 0 1
Gang 103 12.1 m² 0 2
Bod 104 4.6 m² 0 1
Bad/Vask 105 8.6 m² 0 1
Sov 1 106 11.1 m² 1 1
Sov/Arb 107 6.1 m² 1 1
Bod 108 6.1 m² 0 1
VF 109 4.5 m² 0 1
Terrasse 110 0.0 m² 0 1

Etasje 3 106.2 m²

Rom Areal Vinduer Dører
Sov 1 301 12.0 m² 1 1
Sov 2 302 12.0 m² 1 1
Sov 3 303 13.3 m² 1 1
Loft Stue 304 21.8 m² 2 1
Bad 305 9.0 m² 0 1
Bod 306 3.2 m² 0 1
Bad 307 9.0 m² 0 1
Bod 308 3.2 m² 0 1

Hendelser

20.04.2026 Tilbakemelding til søknad om innbygging av takoverbygg på gbnr. 161/116
17.04.2026 Fasadeendring på bustad gbnr. 161/116
09.04.2026 Søknad om løyve til å endre fasade