NewConstruction UnderBehandling Enebolig

Riving og ny enebolig på Lavikaneset 48, Øygarden

📍 137/10 , 5380 TELAVÅG

Nøkkelinfo

Sakstype
Nybygg
Bygningstype
Enebolig
Bruksareal
245 m²
Boenheter
1
Kommune
Øygarden
Fylke
Vestland
Gnr / Bnr
137 / 10
Saksnummer
25/8496
Fase
Under behandling

Om byggesaken

Ny enebolig skal oppføres på eiendommen Lavikaneset 48 i Øygarden kommune, som er regulert til boligformål. Prosjektet omfatter riving av eksisterende enebolig med tilhørende garasje og mindre byggverk, og oppføring av en ny bolig med underetasje (naust/kjeller), hovedetasje og loft. Nybygget vil ha en grunnmurshøyde på ca. 1 meter, to etasjer pluss loft, og en total mønehøyde på ca. 10 meter, noe som krever dispensasjon fra reguleringsplanens høydebegrensninger. Tomten er på ca. 2840 m² med en tillatt utnyttelse på 25 % BRA, og ny bolig har et beregnet BRA på ca. 245 m². Det er etablert tekniske tiltak som bølgebryter i sjø for å beskytte mot utvasking av masser, samt flytebrygge og kai. Avløpsløsning med septiktank og utslipp til eksisterende sjøledning er godkjent. Prosjektet krever dispensasjon fra byggegrense mot sjø og byggehøyde, og det er gjennomført nabovarsling og innhentet uttalelser fra offentlige myndigheter.

Produkter og materialer

Tak Saltak

Takvinkel mellom 6 og 36 grader i henhold til reguleringsplan

Tak for ny bolig med saltak og tilpasset takvinkel

VVS Avløpsanlegg med septiktank

Septiktank med slamavskiller i henhold til NS-EN 12566-1, utslipp til eksisterende sjøledning

Avløpsløsning med septiktank og utslipp til sjøledning

Mur Betongmur og bølgebryter

🧱 Betong og naturstein

Bølgebryter etablert foran kaifront for å hindre utvasking av masser og beskytte bygning

Betongmur og bølgebryter i sjø for beskyttelse av kai og boligfundament

Garasje Eksisterende garasje

Antall: 1

Eksisterende garasje på tomten, planlagt beholdt

Garasje på eiendommen

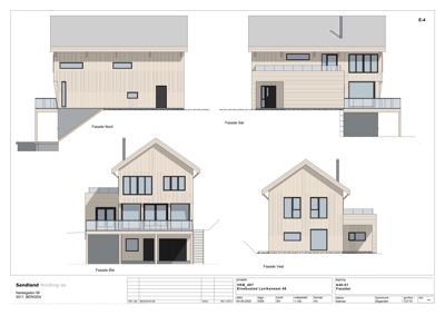
Fasade Fasade på ny enebolig

Fasadetegninger viser bolig med tilpasning til terreng og krav til estetikk

Fasadeelementer for ny bolig i henhold til reguleringsplan og estetiske krav

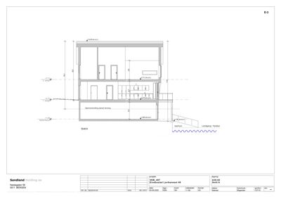
Grunnarbeid Tomteopparbeidelse og fundamentering

Heving av grunn for å unngå sjøvann i kjeller, dokumentert trygg byggegrunn (fjell)

Grunnarbeid med fylling og fundamentering for ny bolig

Elektro Elektriske installasjoner

Elektriske installasjoner i ny bolig

Dører Ytterdører og naustdør

Ytterdører til bolig og naust/kjeller

Dører for bolig og naust/kjeller i ny enebolig

Terrasse Uteareal og parkering

Parkering for 2 biler, uteareal med minst 300 m² MUA

Opparbeidelse av uteareal og parkeringsplasser

Annet Bølgebryter og kai

Bølgebryter og kai med betongdekke for beskyttelse og sikkerhet

Sjørelaterte konstruksjoner for beskyttelse og adkomst

Betong Grunnmur og kjeller

🧱 Betong

Grunnmurshøyde ca. 1 meter, underetasje med naust/kjeller

Betongkonstruksjoner for grunnmur og underetasje

Vinduer Fasadevindu

Vinduer i fasade iht. tegninger, tilpasset boligstandard

Vinduer for ny bolig, tilpasset fasade og energikrav

VVS Offentlig vann og privat avløp

Tilkopling til offentlig vann og privat avløp med utsleppsløyve

Vann- og avløpsinstallasjoner for ny bolig

Balkong Flytebrygge med trapp til sjø

Antall: 1

Flytebrygge etablert før reguleringsplan, oppgradert i 2020 med trapp til sjø

Flytebrygge for båt og tilkomst til sjø

Hendelser

17.11.2025 GBNR 137/10 - Uttale til søknad om dispensasjon
31.10.2025 GBNR 137/10 - Spørsmål om saksgong - tilbakemelding
31.10.2025 GBNR 137/10 - Spørsmål om saksgong
20.10.2025 GBNR 137/10 - Oversending av dispensasjonssøknad til uttale
02.10.2025 GBNR 137/10 - Søknad om dispensasjon
24.04.2025 GBNR 137/10 - Referat frå førehandskonferanse
09.04.2025 GBNR 137/10 - Spørsmål til innkalling av førehandskonferanse - tilbakemelding
08.04.2025 GBNR 137/10 - Spørsmål til innkalling av førehandskonferanse
07.04.2025 GBNR 137/10 - Innkalling til førehandskonferanse
04.04.2025 GBNR 137/10 - Bestilling av førehandskonferanse