NewConstruction Rammetillatelse Enebolig

Ny enebolig med carport i Volleveien 17, Borhaug

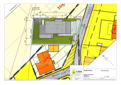
📍 33/425 , 4563 BORHAUG

Nøkkelinfo

Sakstype
Nybygg
Bygningstype
Enebolig
Bruksareal
375 m²
Boenheter
1
Kommune
Farsund
Fylke
Agder
Gnr / Bnr
33 / 425
Saksnummer
25/00865
Fase
Rammetillatelse

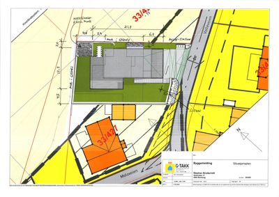
Om byggesaken

Ny to-etasjes enebolig på totalt 375 m² BRA oppføres på Volleveien 17, Borhaug, etter riving av eksisterende bolig og garasje. Boligen har et bebygd areal (BYA) på ca. 208 m² og bruksareal (BRA) på 302 m². Den inneholder flere soverom, bad, vaskerom, teknisk rom, stuer, kjøkken, bod, utestue, to terrasser på henholdsvis 42 og 63 m², samt carport på 38 m² og overbygd areal på 22 m². Fasader er i tre med flatt tak, og bygningen har flere vinduer og dører fordelt på begge etasjer. Prosjektet inkluderer opparbeidelse av uteområder og er plassert i tråd med dispensasjoner fra verneområder og byggegrenser. Det er etablert ansvarsrett for prosjektering, utførelse og kontroll, og alle nødvendige tillatelser er gitt.

Produkter og materialer

Terrasse Terrasser i tre

🧱 Tre

Antall: 2

Terrasse på 62.8 m² og terrasse på 42.2 m²

Uteplasser i tilknytning til bolig

VVS Sanitærinstallasjoner

Sanitærinstallasjoner for bolig, ansvarlig foretak ikke angitt

VVS-installasjoner for bolig

Tømrer Trekonstruksjoner og montering

🧱 Tre

Oppføring av trekonstruksjoner for bolig og carport

Tømrerarbeid for ny bolig og carport

Gulv Innvendige gulv

Gulv i bolig, ikke spesifisert materiale

Innvendige gulvflater i bolig

Grunnarbeid Riving og grunnarbeid

Riving av eksisterende enebolig og garasje, tilbakefylling av kjeller, grunnarbeid for ny bolig

Riving og grunnarbeid for nybygg

Vinduer Fasadevindu i tre

🧱 Tre

Antall: 19

Fordelt på begge etasjer, inkludert 3 vinduer i kjøkken/stue 2. etasje, 4 vinduer i kjøkken/stue 1. etasje, og flere soveromsvinduer

Fasadevinduer i tre til bolig med god lysinnslipp

Dører Ytterdører og terrassedører i tre

🧱 Tre

Antall: 13

Dører til terrasser, carport, utestue og hovedinngang, fordelt på begge etasjer

Ytterdører og terrassedører i tre for bolig og utearealer

Maling Utvendig og innvendig maling

Maling av fasader og innvendige flater, ikke detaljert

Overflatebehandling av treverk og innvendige flater

Garasjeport Carport uten lukket port

Antall: 1

Carport på 37.8 m² integrert i bygget

Carport for biloppstilling

Elektro Elektriske installasjoner

Elektriske installasjoner for bolig, ikke detaljert i dokumenter

El-installasjoner for ny bolig

Isolasjon Isolasjon for bolig

Isolasjon iht. TEK17 krav for ny bolig

Isolasjon for vegger, tak og gulv

Mur Ny mur

Ny mur i grense iht. avstandserklæring

Murerarbeid i forbindelse med byggeprosjekt

Tak Flatt tak

🧱 Ikke spesifisert

Antall: 1

Flatt tak på hele bygningen

Flatt takkonstruksjon for ny enebolig

Ventilasjon Ventilasjons- og klimainstallasjoner

Ventilasjons- og klimainstallasjoner for bolig, ansvarlig foretak ikke angitt

Ventilasjonsanlegg for bolig

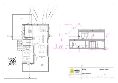
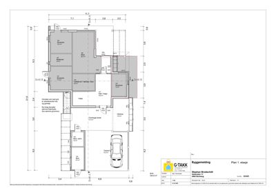
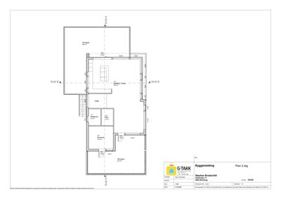
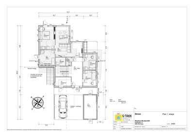
Plantegning

Enebolig 374.7 m²

Etasje 2 167.0 m²

Rom Areal Vinduer Dører
Kjøkken / Stue 201 81.4 m² 3 2
Soverom 202 13.9 m² 1 1
Baderom 203 7.5 m² 0 1
Soverom 110 12.5 m² 1 1
Baderom 111 4.4 m² 0 1
WIC 112 4.3 m² 0 1
Kjøkken/ Stue 113 72.6 m² 4 1
Terrasse 62.8 m² 0 0
Terrasse 42.2 m² 0 1

Etasje 1 207.7 m²

Rom Areal Vinduer Dører
Soverom 101 14.9 m² 1 1
Soverom 102 9.4 m² 1 1
Soverom 103 9.4 m² 1 1
Bad 104 11.0 m² 0 1
WC 105 2.0 m² 0 1
Vaskerom 106 6.5 m² 1 1
Teknisk 107 3.8 m² 0 1
Stue 108 28.3 m² 1 1
Hall / trapp 109 22.3 m² 0 0
Bod 110 13.8 m² 1 1
Utestue U01 14.8 m² 1 1
Carport U02 37.8 m² 0 0
Overbygd areal U03 21.9 m² 0 0

Fasader

Enebolig

Nordøst
Materiale
Tre
Vinduer
5
Dører
1
Synlige etasjer
2
Nordvest
Materiale
Tre
Vinduer
4
Dører
2
Balkonger
1
Synlige etasjer
2
Sør-vest
Materiale
Tre
Taktype
Flatt tak
Vinduer
5
Dører
2
Balkonger
1
Synlige etasjer
2
Sør-øst
Materiale
Tre
Taktype
Flatt tak
Vinduer
4
Dører
2
Balkonger
1
Synlige etasjer
2
Nord-øst
Materiale
Tre
Vinduer
5
Dører
1
Synlige etasjer
2
Nord-vest
Materiale
Tre
Vinduer
4
Dører
2
Balkonger
1
Synlige etasjer
2

Hendelser

16.04.2026 25/00865-11 Justert godkjenning av enebolig og garasje 33/425, Volleveien 17
07.04.2026 25/00865-10 Supplering - avstandserklæring fra 33/423, Farsund kommune
20.03.2026 25/00865-9 Ettersending av korrekte tegninger - ny enebolig - 33/425, Volleveien 17
18.03.2026 25/00865-8 Tillatelse til riving av enebolig og garasje og oppføring av ny enebolig med carport - 33/425/0/0, Volleveien 17
16.03.2026 25/00865-7 Signert avstandserklæring Farsund kommune - byggeavstand 33/425, Volleveien 17
05.03.2026 25/00865-6 Ny komplett søknad om riving av enebolig og garasje og oppføring av ny enebolig med carport - 33/425, Volleveien 17
11.12.2025 25/00865-5 Etterspør supplering - avstandserklæring samt plantegninger - 33/425, Volleveien
02.12.2025 25/00865-4 Kopi - Mindre grenseendring av Listastrendene landskapsvernområde - 33/425, Volleveien 17 - grenseendring
12.05.2025 25/00865-3 Uttalelse - dispensasjonssak - søknad om riving av bolig/oppføring av bolig m/garasje - 33/425, Volleveien 17
24.04.2025 25/00865-1 Søknad om riving av enebolig og garasje og oppføring av ny enebolig med carport samt opparbeidelse av uteområde - 33/425, Volleveien 17