NewConstruction Rammetillatelse Enebolig

Ny enebolig med saltak i Alvdal, Gbnr 7/804

Nøkkelinfo

Sakstype
Nybygg
Bygningstype
Enebolig
Bruksareal
152 m²
Boenheter
1
Kommune
Alvdal
Fylke
Innlandet
Gnr / Bnr
7 / 804
Saksnummer
2026/2262
Fase
Rammetillatelse

Om byggesaken

Ny enebolig på ett plan med totalt bruksareal på 132,2 m² og bebygd areal på 152,4 m² oppføres på eiendom Gnr 7, Bnr 804 i Alvdal. Boligen har saltak tekket med sort betongtakstein og kles med stående trekledning. Planløsningen inkluderer stue, kjøkken, tre soverom, bad, vaskerom/teknisk rom, bod, wc, gang og vindfang, samt en overbygd platting på 9,4 m². Bygget har pipe og er plassert for å minimere masseflytting og sikre funksjonelle utearealer. Garasje er vist stiplet som mulig fremtidig plassering på tomta. Bygget har tre vinduer på stue, flere vinduer på fasader, og flere dører, alle i tre. Prosjektet inkluderer grunnarbeider, betong, tømrerarbeid, ventilasjon, sanitær, varme- og kuldeinstallasjoner, samt landskapsutforming.

Produkter og materialer

Isolasjon Isolasjon i vegger og påforing

Isolasjon i påforing og innervegger, utvendig markisolasjon

Isolasjon for varme og lyd i boligkonstruksjon

Ventilasjon Ventilasjonsanlegg med kanalføringer

Ventilasjonsanlegg for boenheten inkl. kanalføringer, ansvarsrett FLEXIT AS og Byggservice Nord-Østerdal AS

Ventilasjonsanlegg for bolig

Gulv Gulvlegging på tørre rom

Gulvlegging på tørre rom inkludert stue, kjøkken og soverom

Innvendig gulvbelegg

Pipe Murpipe

🧱 Mur

Antall: 1

Pipe på tre av fasader (Nord, Vest, Sør)

Pipe for ildsted i bolig

Vinduer Fasadevindu i tre

🧱 Tre

Antall: 14

Vinduer fordelt på fasader: Nord 4, Vest 4, Sør 2, Øst 4

Fasadevinduer i tre til bolig

Dører Ytterdører og innerdører i tre

🧱 Tre

Antall: 9

Dører fordelt på rom og fasader, inkludert 1 ytterdør på nordfasade, 1 dør på sørfasade, 2 dører på østfasade, og innerdører til rom

Ytter- og innerdører i tre

Tak Saltak med betongtakstein

🧱 Sort betongtakstein

Saltak tekket med sort betongtakstein

Taktekking med betongtakstein på saltak

Betong Plasstøpte betongkonstruksjoner

🧱 Betong, armering, radonsperre

Såle, ringmur, radonsperre, armering og utstøping av gulv på grunn

Fundamentering og gulv på grunn i betong

VVS Sanitærinstallasjoner, varme- og kuldeinstallasjoner

Sanitærinstallasjoner og varme- og kuldeinstallasjoner utført av Tynset Varme & Sanitær AS

VVS-installasjoner for bolig

Fasade Stående trekledning

🧱 Tre

Stående trekledning på alle fasader

Ytterkledning av tre på boligfasader

Mur Ringmur

🧱 Betong

Ringmur som del av fundamentering

Ringmur for boligfundament

Terrasse Overbygd platting

🧱 Tre

Antall: 1

Overbygd platting på 9,4 m²

Utendørs overbygd terrasseareal

Tømrer Trekonstruksjoner og innvendig arbeid

🧱 Tre

Montering av trekonstruksjoner, isolasjon i påforing og innervegger, veggkledning på tørre rom, gulvlegging, innsetting av inner- og ytterdører, utførelse av utforinger og belistning

Tømrerarbeid for hele boligkonstruksjonen og innvendige arbeider

Grunnarbeid Veg- og grunnarbeider

Innmåling og utstikking av tiltak, veg- og grunnarbeider, landskapsutforming

Grunnarbeider for fundamentering og utearealer

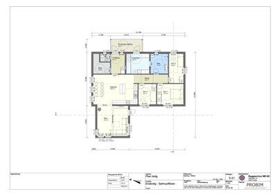
Plantegning

Enebolig 152.4 m²

Etasje 1 152.4 m²

Rom Areal Vinduer Dører
Stue Stue 22.2 m² 3 1
Kjøkken Kjøkken 29.6 m² 0 1
Gang Gang 6.8 m² 0 0
Sov 1 Sov 1 12.4 m² 0 1
Sov 2 Sov 2 9.8 m² 0 1
Sov 3 Sov 3 8.4 m² 0 1
Bad Bad 7.9 m² 0 1
Vaskerom/teknisk Vask/tekn. 10.6 m² 0 1
Vindfang Vindfang 6.4 m² 0 1
Wc Wc 1.8 m² 0 1
Bod Bod 5.6 m² 0 1
Overbygd platting Overbygd platting 9.4 m² 0 0

Fasader

Enebolig

Nord
Materiale
Tre
Taktype
Saltak
Vinduer
4
Dører
1
Synlige etasjer
1
Vest
Materiale
Tre
Taktype
Saltak
Vinduer
4
Dører
0
Synlige etasjer
1
Sør
Materiale
Tre
Taktype
Saltak
Vinduer
2
Dører
1
Synlige etasjer
1
Øst
Materiale
Tre
Taktype
Saltak
Vinduer
4
Dører
2
Synlige etasjer
1

Hendelser

21.04.2026 Melding om delegert vedtak - GBNR 7/804 - Enebolig - Tillatelse til tiltak.
23.03.2026 Søknad om tillatelse i ett trinn 7/804 - nybygg boligformål