NewConstruction Rammetillatelse Enebolig

Ny enebolig med integrert dobbel garasje i Småmyrene 23, Rykene

Nøkkelinfo

Sakstype
Nybygg
Bygningstype
Enebolig
Bruksareal
296 m²
Boenheter
1
Kommune
Arendal
Fylke
Agder
Saksnummer
2026/3635
Fase
Rammetillatelse

Om byggesaken

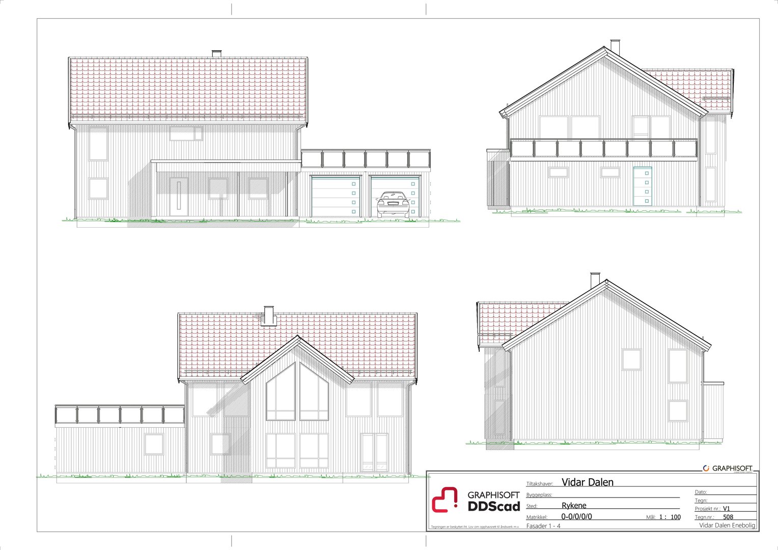
Ny frittliggende enebolig i to etasjer med integrert dobbel garasje på Småmyrene 23, Rykene. Boligen har et bebygd areal på 206,1 m² og et bruksareal på 296,1 m². Bygget har saltak med takvinkel 32–36° og tegl takmateriale, og fasader i stående trekledning. Boligen inneholder flere soverom, bad, stue/kjøkken, teknisk rom, bod og treningsrom. Det er etablert terrasse over garasje og balkonger på sør- og vestfasade. Bygget har pipe og garasjeport. Utearealer tilpasses tomtens terreng med beplantning og terrasser. Adkomst via ny avkjørsel fra fylkesvei med godkjent veirett og tilknytning til offentlig vann- og avløpsnett. Slokkevannskapasitet er dokumentert. Prosjektet er prosjektert etter TEK17 og har ansvarlige foretak for alle fagområder.

Produkter og materialer

Elektro Elektriske installasjoner

Antatt nødvendig elektroinstallasjoner for bolig (ikke detaljert spesifisert)

Elektriske installasjoner og anlegg

Vinduer Fasadevindu

🧱 Tre/Aluminium

Antall: 17

Vinduer fordelt på fasader: Nord 5, Sør 4, Vest 6, Øst 2, inkludert sikkerhetsvinduer

Fasadevinduer i tre med sikkerhetsglass

Grunnarbeid Grunnarbeid og landskapsutforming

Grunnarbeid og landskapsutforming utført av LIVOLLEN MASKIN AS

Grunnarbeid, terrengtilpasning og landskapsutforming

Terrasse Terrasse over garasje og uteplasser

🧱 Tre

Terrasse over garasje og uteplasser med beplantning og grøntareal

Uteplasser og terrasse i tilknytning til bolig

Fasade Stående trekledning

🧱 Tre

Fasader i stående trekledning tilpasses omgivelsene og reguleringsbestemmelser

Yttervegger med stående trekledning

Tømrer Tømrerarbeid hele tiltaket

Tømrerarbeid utført av Tømrer Robin Rosander

Tømrerarbeid for hele bygget

Maling Innvendig og utvendig maling

Overflater utvendig og innvendig males (ikke detaljert spesifisert)

Maling av fasader og innvendige flater

Ventilasjon Ventilasjonsanlegg med kanalføringer

Montering og innregulering av ventilasjonsanlegg av PE BLIKK OG TAKSERVICE AS

Ventilasjonsanlegg for boenheten

Grunnarbeid Drenering og overvannshåndtering

Overvann håndteres lokalt ved infiltrasjon i grunnen

Drenering og overvannshåndtering på tomt

VVS Sanitærinstallasjoner innvendig og utvendig

Innvendig og utvendig sanitærarbeid utført av Øystein Pedersen

Sanitærinstallasjoner og rørarbeid

Mur Våtromsarbeid

🧱 Membran

Utførelse av våtrom, påstøp, tettesjikt (membran), fall til sluk av TT MUR AS

Membran og våtromsarbeid

Betong Fundament og grunnmur

🧱 Betong

Fundament og grunnmur utført av Tømrer Robin Rosander

Betongfundament og grunnmur

Pipe Murpipe

🧱 Mur

Antall: 1

Pipe til ildsted i bolig

Murpipe for ildsted

Dører Ytterdører og garasjeport

🧱 Tre/Metall

Antall: 5

Dører på alle fasader, inkludert garasjeport i integrert dobbel garasje

Ytterdører og garasjeport til bolig og garasje

Tak Saltak med tegl

🧱 Tegl

Saltak med takvinkel 32–36°, tegl takmateriale, protan over garasje og inngang

Taktekking med tegl og protan membran over garasje og inngang

Gulv Innvendige gulvflater

Antatt parkett og fliser i våtrom (ikke detaljert spesifisert)

Innvendige gulvflater med parkett og fliser

Tak Taktekkingsarbeider

🧱 Protan membran

Taktekkingsarbeider med protan membran over garasje og inngang av MN TAK AS

Taktekkingsarbeid med membran

Fasader

Enebolig

Nord
Materiale
Tre
Taktype
Saltak
Takmat.
Tegl
Vinduer
5
Dører
1
Synlige etasjer
2
Sør
Materiale
Tre
Taktype
Saltak
Takmat.
Tegl
Vinduer
4
Dører
1
Balkonger
1
Synlige etasjer
2
Vest
Materiale
Tre
Taktype
Saltak
Takmat.
Tegl
Vinduer
6
Dører
1
Balkonger
1
Synlige etasjer
2
Øst
Materiale
Tre
Taktype
Saltak
Takmat.
Tegl
Vinduer
2
Dører
1
Synlige etasjer
2

Hendelser

20.04.2026 Mottatt uttalelse fra VA-avdelingen - 418/80 - Oppføring av ny bolig med garasje - Aina Dalen
20.04.2026 SVAR PÅ SØKNAD
30.01.2026 Ingen adresse, melding om mottatt søknad
29.01.2026 Søknad om tillatelse i ett trinn 418/80