NewConstruction Rammetillatelse Enebolig

To nye eneboliger med utleiedel i Skorvavegen, Askøy

Nøkkelinfo

Sakstype
Nybygg
Bygningstype
Enebolig
Bruksareal
456 m²
Boenheter
2
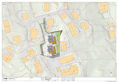
Kommune
Askøy
Fylke
Vestland
Gnr / Bnr
5 / 680
Saksnummer
2022/17735
Fase
Rammetillatelse

Om byggesaken

Prosjektet omfatter oppføring av to moderne eneboliger med integrert garasje på eiendom 5/680 i Skorvavegen, Askøy. Hver bolig har et totalt areal på ca. 455,6 m² fordelt på to etasjer, inkludert kjeller med flere soverom, bad, TV-stue og tekniske rom, samt hovedetasje med kjøkken, stue, soverom, bad, vaskerom, bod og walk-in garderobe. Tomten er opparbeidet i to nivåer med direkte tilkomst til hovedetasjen fra tilkomstvei. Det planlegges omlagt sti for skolebarn, og utearealene tilfredsstiller krav til minste uteoppholdsareal med private uteplasser og takterrasser. Byggene har flate tak med gesimshøyde under 8 meter, og fasader i tre. Infrastruktur som vei, vann og avløp er sikret gjennom avtaler og kapasitetsvurderinger. Det er mottatt nabomerknader som er vurdert og ikke tatt til følge. Rammetillatelse er gitt med vilkår om dokumentasjon på vegrett og strømledningens omlegging.

Produkter og materialer

Elektro Strømledning i luftspenn

Omlagt strømledning i luftspenn over tomten før byggestart

Elektrisk infrastruktur med omlagt luftspennledning

Trapper Innvendig trapp

Antall: 2

Innvendige trapper mellom kjeller og hovedetasje i begge boliger

Innvendige trapper i begge eneboliger for etasjeadkomst

Fasade Tre kledning

🧱 Tre

Fasader i tre med flate tak

Tre kledning på fasader for begge eneboliger

VVS Vann- og avløpsinstallasjoner

Ny slamavskiller, tilkobling til offentlig vann- og avløpsnett, private VA-ledninger med dokumenterte rettigheter

Vann- og avløpssystemer for begge boliger, inkludert slamavskiller og tilkobling til offentlig nett

Rekkverk Manglende rekkverk ved overgang terrasse

Ingen rekkverk pga. overgang til naboboligens terrasse, se situasjonsplan

Rekkverk vurderes iht. situasjonsplan og nabosituasjon

Parkering Innvendig og utvendig parkeringsplass

Antall: 4

Innvendig garasjeplass og utvendig parkeringsplass per bolig, totalt 4 plasser

Parkering for fire biler, to per bolig

Terrasse Takterrasse

Antall: 4

Takterrasser på begge boliger, inkludert øst- og nordvendte terrasser

Takterrasser som del av uteareal for begge eneboliger

Tak Flatt tak

Antall: 2

Flate tak på begge eneboliger med gesimshøyde under 8 meter

Flate tak på begge eneboliger

Garasjeport Integrert garasjeport

Antall: 2

Integrert garasjeport i hver bolig, fasade Vest har garasjeport

Garasjeporter til integrerte garasjer i begge eneboliger

Dører Ytterdører og balkongdører i tre

🧱 Tre

Antall: 11

Ytterdører og balkongdører fordelt på fasader, inkludert garasjeporter og inngangsdører

Ytterdører og balkongdører i tre til begge eneboliger, inkludert integrert garasjeport

Vinduer Fasadevindu i tre

🧱 Tre

Antall: 23

Vinduer i fasader med tre rammer, antall fordelt på fasader Øst (10), Sør (6), Vest (4), Nord (3)

Fasadevinduer i tre til begge eneboliger, inkludert kjeller og hovedetasje

Mur Støttemur og natursteinsmur

🧱 Betong og naturstein

Støttemur plassert inntil nabogrense, natursteinsmur ved skråning

Støttemurer og natursteinsmurer for terrengstøtte og avgrensning

Grunnarbeid Tomteopparbeidelse og terrengtilpasning

Opparbeidelse av tomt i to nivåer, terrengavtrapping mellom kjeller og 1. etasje, masseutskifting, drensrenne med sandfang og fordrøyning

Grunnarbeid for tomt, terrengtilpasning og overvannshåndtering

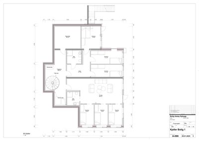
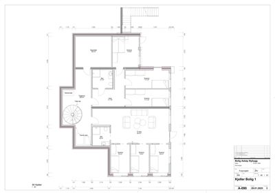
Plantegning

Enebolig 455.6 m²

Etasje 0 246.8 m²

Rom Areal Vinduer Dører
TV-stue 001 34.6 m² 1 1
Gang 002 11.1 m² 0 4
Soverom 003 8.0 m² 1 1
Soverom 004 7.8 m² 1 1
Soverom 005 8.0 m² 1 1
Soverom 006 11.1 m² 1 1
Soverom 007 11.7 m² 1 1
Soverom 008 11.9 m² 1 1
Bad 009 4.8 m² 0 1
Bad 010 4.7 m² 0 1
Trapperom 011 24.8 m² 0 1
Teknisk areal 012 0.0 m² 0 0
Teknisk areal 013 0.0 m² 0 0
Disponibelt 014 16.5 m² 0 0

Etasje 1 208.8 m²

Rom Areal Vinduer Dører
Garasje Garasje 23.2 m² 0 1
Bod Bod 5.0 m² 0 1
Walk-in Walk-in 5.5 m² 0 1
Vaskerom Vaskerom 5.3 m² 0 1
Bad Bad 4.6 m² 0 1
Entré / Gang Entré / Gang 19.1 m² 0 1
Kjokken / stue Kjokken / stue 47.5 m² 2 0
Matbod Matbod 3.3 m² 0 1
Soverom Soverom 12.7 m² 0 1
Soverom Soverom 13.0 m² 0 1

Fasader

Bolig 2

Øst
Materiale
Tre
Taktype
Flatt tak
Vinduer
10
Dører
2
Balkonger
2
Synlige etasjer
2
Sør
Materiale
Tre
Taktype
Flatt tak
Vinduer
6
Dører
1
Balkonger
1
Synlige etasjer
2
Vest
Materiale
Tre
Taktype
Flatt tak
Vinduer
4
Dører
1
Synlige etasjer
2
Nord
Materiale
Tre
Taktype
Flatt tak
Vinduer
3
Dører
1
Balkonger
1
Synlige etasjer
2

Hendelser

15.04.2026 Gbnr 5/680 - Dokumentasjon til klage
11.03.2026 Gbnr 5/680 - Ber om status i klagesak
01.12.2025 Gbnr 5/680 - Ber om status i klagesak
21.07.2025 Gbnr 5/680 - Klage på på rammetillatelse
14.07.2025 Gbnr 5/680 - Ber om utsettelse - Klage på vedtak
14.07.2025 Gbnr 5/680 - Ber om utsettelse - Klage på vedtak
09.07.2025 Gbnr 5/680 - Ber om utsettelse - Orientering om vedtak
03.07.2025 Gbnr 5/680 - Orientering om vedtak
27.06.2025 Gbnr 5/680 - Rammetillatelse
20.06.2025 Gbnr 5/680 - Tilleggsdokumentasjon
13.06.2025 Gbnr 5/680 - Ber om tilleggsdokumentasjon
13.03.2025 Gbnr 5/680 - Søknad om rammetillatelse
08.08.2022 Gbnr 5/680 - Nabomerknad - Vigdis Birkelid og Arne Birkelid