NewConstruction Igangsettingstillatelse Enebolig

To nye eneboliger med carporter i Bekkjarvikveien, Tertnes

Nøkkelinfo

Sakstype
Nybygg
Bygningstype
Enebolig
Bruksareal
380 m²
Boenheter
2
Kommune
Bergen
Fylke
Vestland
Saksnummer
BYGG-2024/15456
Fase
Igangsettingstillatelse

Om byggesaken

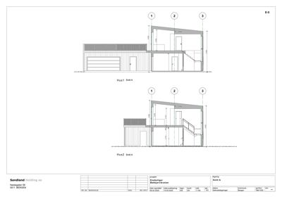
Prosjektet omfatter oppføring av to nye eneboliger på eiendom 186/1202 i Bekkjarvikveien, Tertnes, Bergen. Hver bolig har et bruksareal på ca. 180 m², fordelt på to etasjer med flatt tak (pulttak) og moderne arkitektur tilpasset terrenget. Boligene inneholder fem soverom, to bad, vaskerom, stue og kjøkken. Det bygges også to carporter med tilhørende uteareal og parkering. Tomten er på ca. 893 m² med en utnyttelsesgrad på ca. 43 %. Det er etablert støttemurer og grønn mur mellom boligene, samt tilpasset terreng og overvannshåndtering med fordrøyningskummer. Bygningene har trefasader og saltak på deler av bygget. Prosjektet inkluderer VA-ledninger, internvei og avkjørsel med godkjent utvidet bruk. Det er gjennomført nabovarsling uten merknader, og tiltaket er unntatt plankravet i kommuneplanen. Rammetillatelse er gitt, og igangsettingstillatelse for grunnarbeider foreligger.

Produkter og materialer

Dører Ytterdører og balkongdører i tre

🧱 Tre med glassfelt

Antall: 12

Ytterdører og dører til balkong/fransk balkong

Dører til inngang og balkonger/carporter

Garasjeport Carport med overbygget altan

🧱 Tre og glassrekkverk

Antall: 2

Carporter plassert som tilbygg til boligene med altan over

Carporter til to eneboliger med parkering og sykkelplass

Terrasse Uteareal med gangveier og grøntareal

Privat uteareal på ca. 100 m² per bolig med gangveier og grøntareal

Uteareal tilpasset boligene

Tak Flatt tak (pulttak) og saltak

🧱 Taktekking ikke spesifisert, antatt takpapp eller lignende

Antall: 2

Flatt tak på hoveddel, saltak på deler av bygget

Tak til to eneboliger med moderne design

Bad Bad og vaskerom

Bad og vaskerom med sanitærutstyr i boligene

Bad og vaskerom i to eneboliger

VVS Privat VA-anlegg med fordrøyningskummer

Antall: 2

Fordrøyningskummer på ca. 1,25 m3 hver for overvannshåndtering

Lokal overvannshåndtering i henhold til kommunale krav

Gulv Innvendige gulvflater

Gulv i boligene, type ikke spesifisert

Innvendige gulvflater i boligene

Elektro El-installasjoner i boligene

Standard elektriske installasjoner i boligene

Elektroarbeid i henhold til TEK17

Mur Hallingtorv grønn mur og støttemurer

🧱 Betong og Hallingtorv grønn mur

Grønn mur med 70 graders helning mellom boligene, støttemurer opptil 2,8 m høyde

Murer for terrengtilpasning og estetikk mellom boligene

Fasade Trepanel kledning

🧱 Tre

Antall: 2

Trefasader på begge eneboliger

Fasadebekledning i tre for to eneboliger

Vinduer Store vinduer i trefasade

🧱 Tre med 3-lags energiglass

Antall: 40

Store vinduer i varierende størrelser, inkludert fasadevinduer og takvinduer

Vinduer til to eneboliger med moderne arkitektur og god lysinnslipp

Grunnarbeid Graving, drenering, oppfylling og planering

Grunnarbeider for byggegrop, adkomst, parkering og utomhusanlegg

Grunnarbeid utført av Larsen Maskinentreprenør AS

Tømrer Bygging av boligkonstruksjoner

🧱 Tre

Oppføring av to eneboliger med trepanel, tak og innvendige konstruksjoner

Tømrerarbeid for boligene

Rekkverk Glassrekkverk til balkonger og altaner

🧱 Glass og metall

Antall: 3

Glassrekkverk på fransk balkong og altaner

Rekkverk for balkonger og altaner

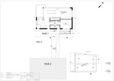
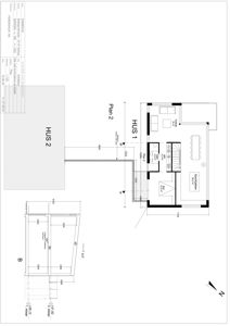
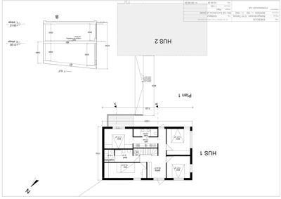
Plantegning

Enebolig 206.5 m²

Etasje 2 100.3 m²

Rom Areal Vinduer Dører
Spis/Kjøkken 201 38.5 m² 1 1
tvstue 202 18.0 m² 1 1
wic 203 5.3 m² 0 1
bad 204 4.9 m² 0 1
SOV 205 13.5 m² 1 1

Etasje 1 106.2 m²

Rom Areal Vinduer Dører
Sov 101 10.7 m² 1 1
Gang 102 16.6 m² 0 2
Sov 103 12.7 m² 1 1
Sov 104 13.4 m² 1 1
Vask/tekn 105 2.6 m² 0 1
Bad 106 6.0 m² 0 1
WIC 107 5.3 m² 0 1
Bad 108 4.9 m² 0 1
Sov 109 11.7 m² 1 1

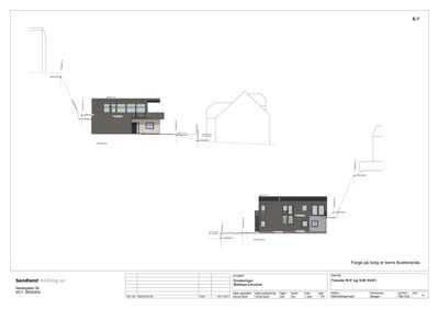
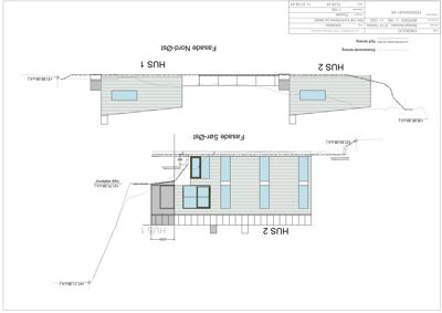
Fasader

Enebolig

Nord-Vest
Materiale
Tre
Taktype
Saltak
Vinduer
4
Dører
1
Synlige etasjer
2
Sør-Vest
Materiale
Tre
Taktype
Saltak
Vinduer
4
Dører
1
Synlige etasjer
2
Nordvest
Materiale
Tre
Taktype
Flatt tak
Høyde
3.3 m
Vinduer
5
Dører
1
Balkonger
1
Synlige etasjer
1
Sørøst
Materiale
Tre
Taktype
Flatt tak
Høyde
3.6 m
Vinduer
6
Dører
1
Synlige etasjer
1
Nord
Materiale
Tre
Taktype
Flatt tak
Vinduer
6
Dører
1
Balkonger
1
Synlige etasjer
2
Øst
Materiale
Tre
Taktype
Flatt tak
Vinduer
1
Dører
1
Synlige etasjer
1
Vest
Materiale
Tre
Taktype
Flatt tak
Vinduer
4
Dører
0
Balkonger
1
Synlige etasjer
2
Sør
Materiale
Tre
Taktype
Flatt tak
Vinduer
7
Dører
0
Synlige etasjer
2
Nord-Øst
Materiale
Tre
Taktype
Saltak
Vinduer
1
Dører
0
Synlige etasjer
1
Sør-Øst
Materiale
Tre
Taktype
Saltak
Vinduer
5
Dører
1
Synlige etasjer
1

Hendelser

14.01.2026 Bekreftelse fra Vestland Fylkeskommune - 186/1202/0/0 Bekkjarvikveien Tertnes, nytt bygg - Boligformål
14.01.2026 Igangsettingstillatelse (1), 186/1202, Bekkjarvikveien Tertnes
13.01.2026 Behov for tilleggsopplysninger - 186/1202/0/0 Bekkjarvikveien Tertnes, nytt bygg - Boligformål
07.01.2026 Søknad om igangsettingstillatelse 186/1202
26.08.2025 Tilleggsopplysninger- 186/1202/0/0 Bekkjarvikveien Tertnes, nytt bygg - Boligformål
14.08.2025 Fakturagrunnlag
14.08.2025 ubw ordre 20675130
24.07.2025 Avslag på søknad, 186/1202, Bekkjarvikveien Tertnes
08.07.2025 Søknad om endring av gitt tillatelse eller godkjenning 186/1202
20.03.2025 Ber om kopi faktura - 186/1202/0/0 Bekkjarvikveien Tertnes, nytt bygg - Boligformål
09.12.2024 Fakturagrunnlag
09.12.2024 Ubw ordre 20657181
02.12.2024 Rammetillatelse
29.11.2024 Tilleggsopplysninger - 186/1202/0/0 Bekkjarvikveien Tertnes, nytt bygg - Boligformål
25.11.2024 Fortsatt behov for tilleggsopplysninger - 186/1202/0/0 Bekkjarvikveien Tertnes, nytt bygg - Boligformål
11.10.2024 Reviderte tegninger - 186/1202/0/0 Bekkjarvikveien Tertnes, nytt bygg - Boligformål
20.09.2024 Forlenget frist til 07.10.24 - 186/1202/0/0 Bekkjarvikveien Tertnes, nytt bygg - Boligformål
13.09.2024 Behov for ytterligere tilleggsopplysninger, BYGG-2024/15456, 186/1202/0/0 Bekkjarvikveien Tertnes
31.08.2024 Tilleggsopplysninger - 186/1202/0/0 Bekkjarvikveien Tertnes, nytt bygg - Boligformål
21.08.2024 Behov for tilleggsopplysninger
14.08.2024 Bekreftelse på mottatt søknad
13.08.2024 Søknad om rammetillatelse 186/1202
13.08.2024 Vedtak - utvidet bruk av avkjørsel - 186/1202/0/0 Bekkjarvikveien Tertnes, nytt bygg - Boligformål