NewConstruction Igangsettingstillatelse Enebolig

Ny enebolig med integrert garasje på Bjøynnadrågje 3, Skjåk

📍 Bjøynnadrågje 3 , 2693 NORDBERG

Nøkkelinfo

Sakstype
Nybygg
Bygningstype
Enebolig
Bruksareal
260 m²
Boenheter
1
Kommune
Skjåk
Fylke
Innlandet
Gnr / Bnr
246 / 18
Saksnummer
2023/657
Fase
Igangsettingstillatelse

Om byggesaken

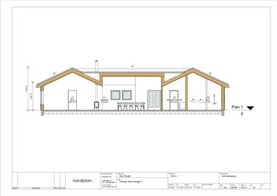
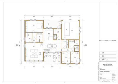
Ny enebolig på 260 m² BRA oppføres på eiendom Bjøynnadrågje 3 i Skjåk kommune. Boligen er en enetasjes bygning med saltak (takvinkel ca. 25 grader), gesimshøyde ca. 2,97 m og mønehøyde ca. 4,57 m. Bygget har en sammenhengende bygningskropp med integrert garasje på 40,3 m². Fasader er kledd med trekledning, og oppholdsrom har store vindusflater mot uteoppholdsareal, spesielt i sørfasaden med store glassflater mot uteplassen. Garasjen har port i fasaden og fremstår som en integrert del av volumet. Innvendig inneholder boligen blant annet stue, spisestue, kjøkken, kontor, vaskerom, bad, WC, badstue og tre soverom. Bygget er prosjektert med moderne detaljering og tilfredsstiller gjeldende tekniske krav og reguleringsplan. Uteareal, parkering og adkomst er ivaretatt på egen eiendom.

Produkter og materialer

Bad Bad og våtrom

Antall: 3

Bad, WC og badstue i boligen, uavhengig kontroll av våtrom av Nordplan AS

Bad og våtrom med sanitærinstallasjoner og kontroll

Vinduer Store vindusflater i oppholdsrom

🧱 Glass med trekarm

Antall: 13

Store vindusflater mot uteoppholdsareal, spesielt i sørfasade

Vinduer for oppholdsrom med god lysinnslipp

Betong Plasstøpte betongkonstruksjoner

🧱 Betong

Utført av NUK AS

Betongarbeid for fundament og konstruksjoner

Fasade Trekledning

🧱 Tre

Trekledning på alle fasader

Trekledning for utvendige fasader på enebolig

Mur Murarbeid

🧱 Murmaterialer

Utført av NUK AS

Murarbeid i forbindelse med bygging

VVS Sanitærinstallasjoner

Utført og prosjektert av Rørlegger Ottar Brustad

Sanitærinstallasjoner for enebolig

Garasjeport Garasjeport i fasade vest

Antall: 1

Port i integrert garasje

Garasjeport for integrert garasje

Dører Ytterdører og garasjeport

🧱 Tre eller tilsvarende

Antall: 7

Dører til inngang, garasjeport i fasade vest

Ytterdører og garasjeport integrert i bygningsvolumet

Rekkverk Rekkverk ute

Ikke spesifisert, men vanlig for uteområder

Rekkverk for uteområder og eventuelle trapper

Elektro Elektriske installasjoner

Ikke spesifisert i detalj, men nødvendig for bolig

Elektriske installasjoner for bolig

Gulv Innvendige gulv

Ikke detaljert i dokumentene

Innvendige gulv i bolig, antatt parkett/fliser i våtrom

Grunnarbeid Terrengtilpasning og grunnarbeid

Utført av Nordal Maskin AS, inkludert terrengtilpasning

Grunnarbeid og terrengtilpasning for enebolig og uteareal

Pipe Pipe

Antall: 1

Pipe tilknyttet bolig, angitt på fasadetegninger

Pipe for bolig

Tak Saltak

🧱 Takstein eller lignende

Saltak med takvinkel ca. 25 grader

Saltak med tradisjonell utforming og moderne detaljering

Ventilasjon Boligventilasjon inkl. kanalføringer

Prosjektert av Flexit AS, utført av NUK AS

Ventilasjon og klimainstallasjoner for bolig

Terrasse Uteplass/terrasse

Uteoppholdsareal med tilknytning til sørfasade med store glassflater

Terrasse/uteplass tilknyttet bolig

Tømrer Tømrerarbeid og montering av trekonstruksjoner

🧱 Tre

Utført av NUK AS

Tømrerarbeid for bygningskropp og tak

Plantegning

Enebolig 286.8 m²

Etasje 1 286.8 m²

Rom Areal Vinduer Dører
Stue 101 38.5 m² 4 1
Spisestue 102 25.8 m² 0 0
Kjøkken 103 14.0 m² 0 1
Entre 104 8.0 m² 0 1
Gang 105 4.5 m² 0 2
Kontor 106 7.9 m² 0 1
Bad 107 7.7 m² 0 1
WC 108 1.6 m² 0 1
Vaskerom/teknisk 109 6.7 m² 0 1
Bad 110 8.4 m² 0 1
Badstue 111 2.9 m² 0 1
Gang 112 5.4 m² 0 2
Sov 113 11.8 m² 1 1
Sov 114 11.8 m² 1 1
Sov 115 25.3 m² 2 1
Garasje 116 40.3 m² 1 1

Fasader

Enebolig

Nord
Materiale
Tre
Taktype
Saltak
Vinduer
3
Dører
0
Synlige etasjer
1
Sør
Materiale
Tre
Taktype
Saltak
Vinduer
2
Dører
0
Synlige etasjer
1
Øst
Materiale
Tre
Taktype
Saltak
Vinduer
6
Dører
1
Synlige etasjer
1
Vest
Materiale
Tre
Taktype
Saltak
Vinduer
4
Dører
1
Synlige etasjer
1

Hendelser

15.04.2026 vedtak - søknad om Igangsetjingsløyve - Nybygg bustadhus
13.04.2026 Bjøynnadrågje 3 Søknad om igangsettingstillatelse 246/18
05.03.2026 Vedtak - Søknad om rammeløyve - Oppføring av einebustad
27.01.2026 Bjøynnadrågje 3 Søknad om rammetillatelse 246/18
11.08.2025 Retur av tinglyst dokument - skjøte gbnr. 246/18
27.06.2025 Saka gjeld søknad om d-nummer
12.05.2025 Saken gjelder gnr. 246/18
22.04.2025 Retur av tinglyst dokument - Skjøte, gbnr. 246/18
07.06.2023 Retur av tinglyst skjøte, gnr. 246/18