NewConstruction Igangsettingstillatelse Enebolig

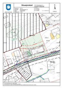
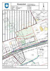
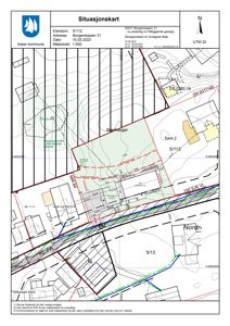
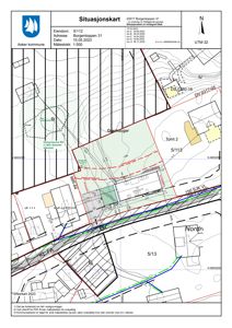
Ny enebolig med garasje på Borgentoppen 31, Asker

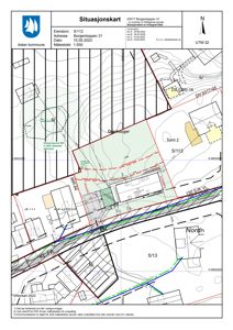
📍 Borgentoppen 31 , 1388 BORGEN

Nøkkelinfo

Sakstype
Nybygg
Bygningstype
Enebolig
Bruksareal
418 m²
Boenheter
1
Kommune
Asker
Fylke
Akershus
Gnr / Bnr
5 / 112
Saksnummer
23/2077
Fase
Igangsettingstillatelse

Om byggesaken

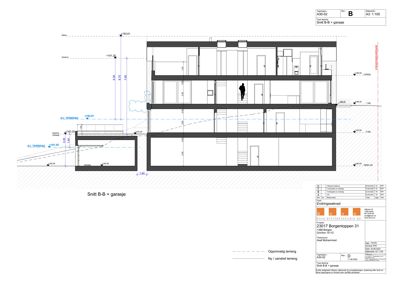
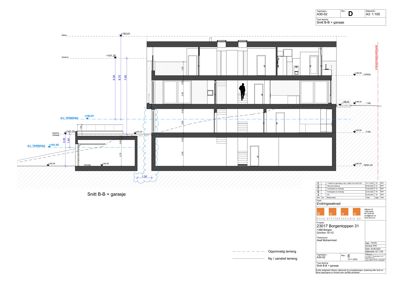
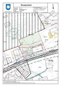
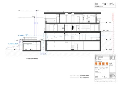
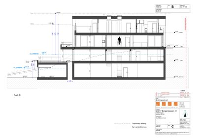
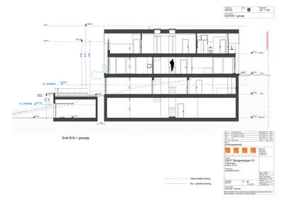
Ny enebolig med tilhørende frittliggende garasje oppføres på eiendommen Borgentoppen 31 i Asker kommune. Boligen har et bruttoareal på ca. 418 m² fordelt på kjeller, underetasje, 1. og 2. etasje, med flere soverom, bad, vaskerom, kontor, stuer, heis og balkong. Garasjen er på ca. 38 m² og er plassert under terreng med tilhørende teknisk rom og bod. Bygningen har saltak og fasader i tre, med gesimshøyde opptil 8 meter og mønehøyde opptil 13,6 meter. Prosjektet krever omfattende terrenginngrep, inkludert sprengning og utgraving av kjeller, og ligger i et område med automatisk fredet gravfelt og hensynssoner for kulturmiljø og naturmiljø. Det har vært flere klager og innsigelser knyttet til tiltakets størrelse, høyde, terrenginngrep og kulturminnehensyn. Kommunen har gitt rammetillatelse og igangsettingstillatelse, men endringssøknader har blitt avvist på grunn av kulturminnehensyn. Det pågår ulovlighetsoppfølging knyttet til terrenginngrep innenfor sikringssone for gravfeltet. Prosjektet har ansvarlige prosjekterende og utførende med ansvarsrett, og det er etablert tett dialog med kulturminnemyndighetene for å sikre tilpasning til kulturmiljøet.

Arbeidsomfang

- Nyoppføring av enebolig og garasje ved Borgentoppen 31 - Kulturminnehensyn vurderes for tiltaket (fylkeskommunen involvert) - Tilpasning av tidligere gitte tillatelser (rammetillatelse og igangsettingstillatelse)

Produkter og materialer

Gulv Parkett og fliser

🧱 Eikeparkett og fliser

Innvendige gulvflater i bolig

Mur Terrengmurer

🧱 Betong/mur

Terrengmurer i ulik høyde fra 0,1 til 1,8 meter

Terrengmurer rundt bygget og uteområder

Betong Plasstøpt betong

Plasstøpte betongkonstruksjoner inkl. radonmembran

Betongkonstruksjoner for kjeller og fundamentering

VVS Sanitærinstallasjoner

Sanitærinstallasjoner inkl. slukkevann, tilknytning til kommunalt vann- og avløpsnett

VVS-installasjoner for bolig og garasje

Vinduer Fasadevindu

🧱 Tre

Antall: 33

Fasadevinduer i tre i ulike rom og etasjer

Trapper Innvendig trapp

Antall: 1

Innvendig trapp mellom etasjer

Vinduer Balkongdør

🧱 Tre

Antall: 1

Dør til balkong i 2. etasje

Grunnarbeid Sprengningsarbeider og gravearbeider

Sprengning og utgraving av byggegrop for kjeller og fundamentering

Grunnarbeider med sprengning og utgraving

Terrasse Terrasse på terreng

🧱 Tre

Antall: 2

Terrasser på terreng og på tak av garasje

Annet Heis

Antall: 1

Heis i bolig

Bad Bad og våtrom

Antall: 5

Bad og våtrom i bolig, inkl. badstue

Ventilasjon Ventilasjons- og klimainstallasjoner

Ventilasjons- og klimainstallasjoner i bolig

Grunnarbeid Innmåling og utskifting

Innmåling av byggegrop, sikringssone og terreng, utført av sertifisert landmåler

Oppmåling og utstikking av tiltaket

VVS Vannforsynings- og avløpsanlegg

Ledningsnett for vannforsyning og avløp, inkl. overvannshåndtering med virvelkammer og sandfang

VA-anlegg på eiendommen

Dører Ytterdører

🧱 Tre

Antall: 15

Ytterdører til rom og innganger i boligen

Garasjeport Garasjeport

Antall: 1

Garasjeport til frittliggende garasje

Rekkverk Rekkverk på balkong og terrasse

🧱 Tre eller metall

Rekkverk på balkong og terrasser

Tak Saltak

🧱 Takstein/solceller/sink

Antall: 1

Saltak med takstein, mulighet for solcellepanel på sørsiden, sinktekking på nordside

Saltak på bolig og garasje

Kjøkken Kjøkkeninnredning

Antall: 1

Kjøkken i bolig

Fasade Trepanel

🧱 Tre

Trepanel på fasader

Trepanel som fasademateriale på bolig og garasje

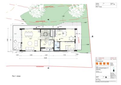
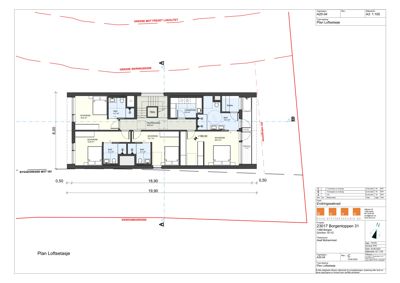
Plantegning

Enebolig 418.0 m²

Etasje 2 120.5 m²

Rom Areal Vinduer Dører
Soverom 201 12.6 m² 1 1
Bad 202 4.7 m² 0 1
Soverom 203 12.8 m² 1 1
Bad 204 4.1 m² 0 1
Bad 205 4.1 m² 0 1
Soverom 206 12.1 m² 1 1
Soverom 207 20.4 m² 1 1
Bad 208 13.4 m² 0 1
Badstu 209 0.0 m² 0 1
Vaskerom 210 6.5 m² 0 1
Trappegang 211 16.8 m² 0 0
Balkong 212 7.0 m² 0 1

Etasje 1 128.5 m²

Rom Areal Vinduer Dører
Finstue 101 45.6 m² 2 2
Kontor 102 11.7 m² 1 2
Kjøkken 103 28.3 m² 1 2
Kjøkkenbod 104 3.6 m² 0 1
TV-stue 105 15.1 m² 1 2
WC 106 5.4 m² 0 1
Trappegang 107 13.3 m² 0 2
Aitt 108 4.2 m² 0 1
Heis 109 0.0 m² 0 0
Terrasse 110 31.5 m² 0 1

Etasje 0 169.0 m²

Rom Areal Vinduer Dører
TV-STUE 001 47.2 m² 1 1
GANG/TRAPP 002 17.3 m² 0 2
V.F. 003 8.4 m² 0 1
WC 004 2.4 m² 0 1
GANG 005 4.2 m² 0 2
BAD 006 6.6 m² 0 1
SOV 007 12.5 m² 1 1
STUE/KJØKKEN 008 25.1 m² 1 1
Hybel 009 50.6 m² 1 1
Tak 0 159.2 m² 0 0
Garasje GARASJE 37.9 m² 0 1
Bod BOD 6.8 m² 0 1
Kjeller KJELLER 126.6 m² 0 1
Teknisk rom TEKNISK ROM 6.2 m² 0 1

Fasader

Enebolig

Nord-vest
Materiale
Tre
Taktype
Saltak
Høyde
8.0 m
Mønehøyde
13.6 m
Vinduer
5
Dører
2
Balkonger
1
Synlige etasjer
2
Syd-øst
Materiale
Tre
Taktype
Saltak
Høyde
6.7 m
Mønehøyde
9.0 m
Vinduer
7
Dører
2
Balkonger
1
Synlige etasjer
2
Nord-øst
Materiale
Tre
Taktype
Saltak
Høyde
6.7 m
Mønehøyde
9.0 m
Vinduer
4
Dører
2
Balkonger
1
Synlige etasjer
2
Syd-vest
Materiale
Tre
Taktype
Saltak
Høyde
6.7 m
Mønehøyde
9.0 m
Vinduer
6
Dører
1
Balkonger
1
Synlige etasjer
3
Nordvest
Materiale
Tre
Taktype
Flatt tak
Høyde
8.0 m
Mønehøyde
9.0 m
Vinduer
6
Dører
2
Balkonger
1
Synlige etasjer
2
Ukjent
Taktype
Saltak
Vinduer
6
Dører
1
Synlige etasjer
2
Nord
Materiale
Tre
Taktype
Saltak
Høyde
6.5 m
Mønehøyde
8.2 m
Vinduer
5
Dører
1
Balkonger
1
Synlige etasjer
2
Vest
Materiale
Tre
Taktype
Saltak
Høyde
6.5 m
Mønehøyde
8.2 m
Vinduer
6
Dører
1
Balkonger
1
Synlige etasjer
2
Sør
Materiale
Tre
Taktype
Saltak
Høyde
6.5 m
Mønehøyde
8.2 m
Vinduer
4
Dører
1
Synlige etasjer
2
Øst
Materiale
Tre
Taktype
Saltak
Høyde
6.5 m
Mønehøyde
8.2 m
Vinduer
2
Dører
1
Synlige etasjer
2

Hovedbygg

Ukjent
Taktype
Saltak
Vinduer
6
Dører
1
Synlige etasjer
2

Hendelser

31.03.2026 5/112 Borgentoppen 31 - Klage på vedtak - formell anmodning og avklaring klage
29.03.2026 5/112 Borgentoppen 31 - Avvisning av klage klage
20.03.2026 5/112 Borgentoppen 31 - Klage over beslutning om å ikke behandle endringssøknad (og behov for avklaring knyttet til status og tidligere tillatelser) klage
16.03.2026 5/112 Borgentoppen 31 - Klage på beslutning om å ikke behandle endringssøknad og behov for avklaring av tidligere tillatelser klage
11.03.2026 5/112 Borgentoppen 31 - Ny uttalelse om kulturminnehensyn (kopi)
04.03.2026 5/112 Borgentoppen 31 - Dokument oversendt til Akershus fylkeskommune
27.02.2026 5/112 Borgentoppen 31 - Kommunen beslutter at søknaden om endring ikke kan behandles - Nybygg bolig og garasje vedtak
24.02.2026 5/112 Borgentoppen 31 - Formell og rettslig anmodning om harmonisering av sikringssonen
19.02.2026 5/112 Borgentoppen 31 - Juridisk redegjørelse - Kulturminneloven, forvaltningsrett, likebehandling og økonomisk ansvar
19.02.2026 5/112 Borgentoppen 31 - Redegjørelse, dispensasjon og ansvar dispensasjon
12.02.2026 5/112 Borgentoppen 31 - Anmodning om at stoppordre oppheves (og status endringssøknad)
10.02.2026 5/112 Borgentoppen 31 - Enebolig med garasje - søknad om endring - kulturminnehensyn søknad
21.01.2026 5/112 Borgentoppen 31 - Oversendelse av ny søknad om endring for vurdering av kulturminnehensyn søknad
12.01.2026 5/112 Borgentoppen 31 - Ber om avklaring
01.12.2025 5/112 Borgentoppen 31 - Nabomerknad
28.11.2025 5/112 Borgentoppen 31 - Ber om å få oversendt ny søknad om endring for vurdering av kulturminnehensyn søknad
27.11.2025 5/112 Borgentoppen 31 - Kommentarer til nabomerknader - knyttet til oppfølging av endringssøknaden av omprosjektert tiltak ifm. igangsatt nybygg enebolig med garasje
21.11.2025 5/112 Borgentoppen 31 – Følgebrev ifm oppfølging av endringssøknaden av omprosjektert tiltak ifm. igangsatt nybygg enebolig med garasje
17.11.2025 5/112 Borgentoppen 31 - Forespørsel om avklaring
17.11.2025 5/112 Borgentoppen 31 - Forespørsel om godkjent tiltak er i strid med kommuneplanens bestemmelser
17.11.2025 5/112 Borgentoppen 31 - Kommentar til kommunens svar på krav om tilbaketrekking av tillatelse
07.11.2025 5/112 Borgentoppen 32 - Ufullstendig søknad 2 - Varsel om avslag avslag
24.09.2025 5/112 - Borgentoppen 31 - Svar på krav om tilbaketrekking av tillatelse
12.09.2025 5/112 Borgentoppen 31 - Kulturminnefaglig uttalelse
01.09.2025 5/112 Borgentoppen 31 - Vedrørende utstikking av godkjent tiltak, og oppheve stoppordre - del 2
01.09.2025 5/112 Borgentoppen 31 - Vedrørende utstikking av godkjent tiltak, og oppheve stopporde
29.08.2025 5/112 Borgentoppen 31- E-postdialog vedr. utstikking av godkjent tiltak, og oppheving av stoppordre
29.08.2025 5/112 Borgentoppen 31- Vedrørende utstikking av godkjent tiltak, og oppheving av stoppordre
29.08.2025 5/112 Borgentoppen 31 - Søknad om endring av gitt tillatelse - ber om ytterligere informasjon søknad
28.08.2025 5/112 Borgentoppen 31- Vedrørende utstikking av godkjent tiltak og oppheve stoppordre
27.08.2025 5/112 - Borgentoppen 31 - Behov for avklaringer før nødvendig sikringstiltak kan iverksettes
27.08.2025 5/112 Borgentoppen 31 - Redegjørelse rammetillatelse rammetillatelse
16.08.2025 5/112 Borgentoppen 31 - Søknad om endring av gitt tillatelse til uttalelse søknad
13.08.2025 5/112 Borgentoppen 31 - Supplering av søknad søknad
09.08.2025 5/112 Borgentoppen 31 - Gjennomføringsplan
09.08.2025 5/112 Borgentoppen 31 - Tiltakshavers dialog med fylkeskommunen etter henvendelse i anledning tilsynsrapporten tilsyn
07.08.2025 5/112 Søknad om endring av gitt tillatelse - Varsel om avslag avslag
07.08.2025 5/112 Borgentoppen 31 - Ulovlig fylling av masser innenfor automatisk fredet gravfelt (id 77405)
07.08.2025 5/112 Borgentoppen 31 - Kulturminnehensyn - ber om at videre behandling av saken sendes fylkeskommunen for vurdering
05.08.2025 5/112 Borgentoppen 31 - Ønsker avklaring om to punkter
07.07.2025 5/112 Borgentoppen 31 - Varsel om mulig ulovlig arbeid i pågående byggesak - Ber om tilsyn tilsyn
26.06.2025 5/112 Borgentoppen 31 - Søknad om endring av gitt tillatelse søknad
04.06.2025 5/112 Borgentoppen 31 - Berørte naboer har ikke blitt varslet
25.04.2025 5/112 Borgentoppen 31 - Ny tiltakshaver i pågående byggesak
11.04.2025 5/112 Borgentoppen 31- Igangsettingstillatelse igangsettingstillatelse
08.04.2025 5/112 Borgentoppen 31 - Vedrørende besvarelse av vilkår for Igangsettingstillatelse igangsettingstillatelse
23.03.2025 5/112 Borgentoppen 31 - Søknad om igangsettingstillatelse igangsettingstillatelse
26.08.2024 5/112 Borgertoppen 31 - Statsforvalterens vedtak i klagesak - Klagen har ikke ført frem klage