NewConstruction Ferdigattest Enebolig

Ny enebolig med sokkelleiligheter og garasje i Briskeveien 5, Hagan

📍 Briskeveien 5A , 1481 HAGAN

Nøkkelinfo

Sakstype
Nybygg
Bygningstype
Enebolig
Bruksareal
358 m²
Boenheter
3
Kommune
Nittedal
Fylke
Akershus
Gnr / Bnr
4 / 587
Saksnummer
24/00042
Fase
Ferdigattest

Om byggesaken

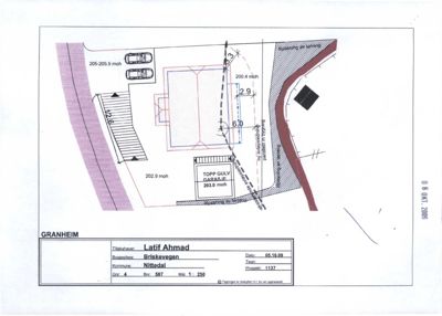
Ny enebolig med to sokkelleiligheter og frittstående garasje på eiendommen Briskeveien 5 i Hagan. Boligen har totalt 358,3 m² BRA fordelt på tre etasjer, inkludert sokkelleiligheter i underetasjen. Bygget har saltak med teglstein, trekledning, og flere balkonger. Innvendig inneholder boligen flere soverom, bad, kontor, bod, stue- og kjøkkenområder i hoved- og sokkeletasjer. Garasjen er plassert nær offentlig vei med dispensasjon for avstand. Bygget er tilpasset terrenget med senket plassering og endret fasade for bedre estetisk tilpasning. Det foreligger ferdigattest datert 26.03.2026 etter fullført bygging og oppfølging av avvik.

Produkter og materialer

Pipe Murpipe

🧱 Mur

Antall: 1

Pipe til bolig med ildsted

Pipe for ildsted i bolig

Tømrer Tømmerkasse og konstruksjon

🧱 Tre

Tømmerkasse for bolig, inkludert vegger og takstoler

Tømrerarbeid for bolig og garasje

Garasjeport Port til frittstående garasje

🧱 Tre/metall

Antall: 1

Garasjeport til frittstående garasje

Port for biloppstilling i garasje

Elektro Elektriske installasjoner

Elektriske installasjoner i bolig og garasje

Elektroarbeid for bolig og garasje

Maling Fasademaling

🧱 Utendørs maling

Maling av fasader som gjenstår etter midlertidig brukstillatelse

Utvendig maling av boligfasader

Dører Ytterdører og balkongdører

🧱 Tre med glassfelt

Antall: 15

Ytterdører og balkongdører i tre, inkludert inngangsdører og dører til balkonger

Dører til hovedinngang, sokkelleiligheter og balkonger

VVS Sanitær- og varmeanlegg

Sanitæranlegg innvendig og utvendig, inkludert vannklosett og varmeinstallasjoner

VVS-installasjoner for bolig

Rekkverk Rekkverk til balkonger og terrasse

🧱 Tre/metall

Rekkverk til balkonger og terrasse

Sikkerhetsrekkverk på balkonger og terrasse

Grunnarbeid Graving og fundamentering

Grunnarbeid for bolig og garasje, inkludert ringmur og støpt plate

Grunnarbeid og fundamentering for bolig og garasje

Trapper Innvendig trapp

🧱 Tre

Antall: 1

Innvendig trapp mellom etasjer

Trapp i bolig for etasjeadkomst

Betong Ringmur og støpt plate

🧱 Betong

Ringmur, støpt plate og fundamentering

Betongarbeider for fundament og bærende konstruksjoner

Terrasse Terrasse mot sør

🧱 Tre

Antall: 1

Terrasse større enn opprinnelig godkjent, med endret plassering

Terrasse på sørsiden av boligen

Vinduer Fasadevindu

🧱 Tre/aluminium

Antall: 40

Flere vinduer i tre med 2-lags energiglass, inkludert balkongvinduer

Vinduer til alle etasjer i eneboligen og sokkelleiligheter

Fasade Trekledning

🧱 Tre

Trekledning på alle fasader

Ytterkledning av tre for eneboligen

Tak Saltak med teglstein

🧱 Teglstein

Antall: 1

Saltak med teglstein som takmateriale

Taktekking for eneboligen

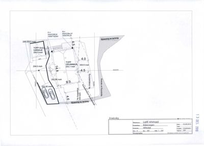
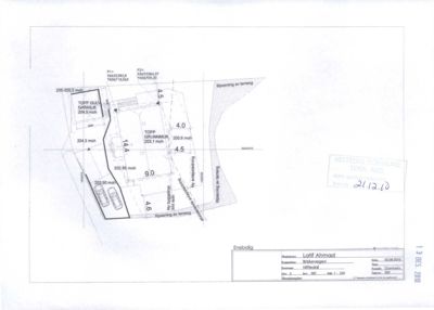
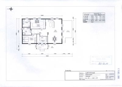
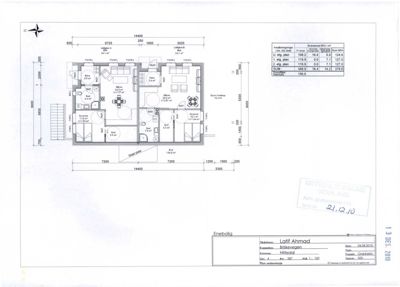
Plantegning

Enebolig 358.3 m²

Etasje 2 129.6 m²

Rom Areal Vinduer Dører
Allrom 201 42.1 m² 0 1
Soverom 2 202 13.4 m² 1 1
Kontor 203 7.8 m² 0 1
Bad 204 7.4 m² 0 1
Soverom 3 205 15.2 m² 1 1
Bod 206 10.3 m² 1 1
Soverom 4 207 15.2 m² 1 1
BRA 208 119.9 m² 0 0
Bad BAD 8.0 m² 0 1
Kontor KONTOR 11.8 m² 0 1
Sov 3 SOV 3 13.3 m² 0 1
Loftstue LOFTSTUE 46.0 m² 0 1
Sov 2 SOV 2 16.9 m² 0 1
Sov 4 SOV 4 16.2 m² 0 1
Bod BOD 8.5 m² 0 1
Boo BOO 8.5 m² 1 1

Etasje 1 120.5 m²

Rom Areal Vinduer Dører
Stue/Spisestue 101 54.5 m² 4 1
Kjøkken 102 17.0 m² 0 1
Vask 103 6.2 m² 0 1
Bad 104 8.6 m² 0 1
Sov 1 105 13.9 m² 2 1
Entre 106 8.9 m² 0 2
Hall 107 11.3 m² 0 0

Etasje 0 108.2 m²

Rom Areal Vinduer Dører
Stue 001 24.5 m² 3 1
Kjøkken 002 1.8 m² 0 1
Gang 003 3.9 m² 0 1
Bad 004 6.4 m² 0 1
Soverom 005 11.0 m² 1 1
Bod 006 5.9 m² 0 1
Trapp 007 0.0 m² 0 0
Stue/Kjøkken 101 30.9 m² 3 2
Gang 102 5.8 m² 0 2
Bad 103 5.8 m² 0 1
Bod 104 3.0 m² 0 1
Sov 1 105 10.6 m² 1 1
Gard 106 2.1 m² 0 1
Stue/Kjøkken 107 32.1 m² 3 2
Gang 108 5.8 m² 0 2
Bad 109 5.8 m² 0 1
Bod 110 3.4 m² 0 1
Sov 1 111 10.1 m² 1 1
STUE/KJØKKEN 4061 26.1 m² 2 2
SOVEROM SOV 1 11.6 m² 1 1
SOVEROM SOV 2 8.3 m² 1 1
BAD/VASKEROM BAD/VASK 5.0 m² 0 1
BOD BOD 3.0 m² 0 1
TRAPPETROM VF 3.5 m² 0 0
BAD BAD 5.8 m² 0 1
GARASJE/BOD GARD/BOD 3.6 m² 0 1
STUE/KJØKKEN STUE/KJØKKEN 32.1 m² 2 2

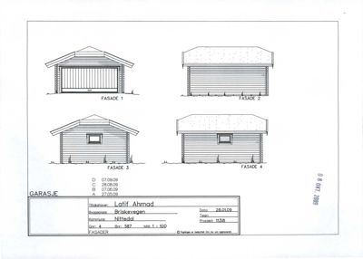
Fasader

Enebolig

Vest
Materiale
Tre
Taktype
Saltak
Takmat.
Tegl
Høyde
6.5 m
Mønehøyde
8.2 m
Vinduer
7
Dører
1
Balkonger
1
Synlige etasjer
2
Nord
Materiale
Tre
Taktype
Saltak
Høyde
6.5 m
Mønehøyde
8.2 m
Vinduer
6
Dører
1
Balkonger
1
Synlige etasjer
2
Ukjent
Materiale
Tre
Taktype
Saltak
Høyde
6.5 m
Mønehøyde
8.2 m
Vinduer
8
Dører
1
Balkonger
1
Synlige etasjer
2
Sør
Materiale
Tre
Taktype
Saltak
Høyde
6.5 m
Mønehøyde
8.2 m
Vinduer
7
Dører
1
Balkonger
1
Synlige etasjer
2
Øst
Materiale
Tre
Taktype
Saltak
Takmat.
Tegl
Høyde
6.5 m
Mønehøyde
8.2 m
Vinduer
12
Dører
1
Balkonger
1
Synlige etasjer
3

Hendelser

22.04.2026 24/00042-6 Kopi - Avslutning av sak - Ferdigstillelse av enebolig med 2 sokkel leiligheter - 4/587 - Briskeveien 5
11.02.2026 24/00042-5 Svar på spørsmål om kontroll, ansvar og kostnader - 4/587 - Briskeveien 5 - Ferdigattest
03.02.2026 24/00042-1 Kopi - Vedtak om pålegg om å sende inn søknad om ferdigattest - 4/587 - Briskeveien 5