NewConstruction UnderBehandling Enebolig

Ny enebolig med sekundærbolig i Brusetkollen 35A og 35B

📍 Brusetkollen 35A og 35B

Nøkkelinfo

Sakstype
Nybygg
Bygningstype
Enebolig
Bruksareal
289 m²
Boenheter
2
Kommune
Asker
Fylke
Akershus
Gnr / Bnr
29 / 294
Saksnummer
22/438
Fase
Under behandling

Om byggesaken

Prosjektet omfatter riving av eksisterende enebolig og oppføring av ny enebolig med tilhørende sekundærbolig på eiendommen Brusetkollen 35A og 35B i Asker kommune. Den nye bebyggelsen er i tre med saltak og moderne arkitektur, fordelt på flere plan med totalt bruksareal på ca. 289 m². Hovedboligen har blant annet stue/kjøkken, kontor, bad, soverom og dobbel garasje, mens sekundærboligen har egne boenheter. Bygget er tilpasset terrenget med heving for å sikre god overvannshåndtering. Utomhusplan inkluderer beplantning og terrengtilpasning. Prosjektet har gjennomgått flere faser med rammetillatelse, igangsettingstillatelser og endringstillatelser, og byggearbeidene er igangsatt.

Arbeidsomfang

- Riving av eksisterende enebolig (fysisk fjerning av bygning og grunnarbeider) - Oppføring av ny enebolig med sekundærenhet (nytt hovedhus og tilleggsdel) - Nytt inngangsparti og trappeløp mellom etasjene - Nytt takverk og takdekk (inkl. pipe og ventilasjon) - Nytt vindus- og dørutstyr - Nytt elektrisk og rørleggeranlegg - Nytt gulv- og golvbelegg - Nytt fasadebelegg og malerarbeider

Produkter og materialer

VVS Sanitærinstallasjoner

Sanitærinstallasjoner for boligene, inkl. vannforsyning og avløp

VVS-installasjoner for boligene

Fasade Trepanel

🧱 Tre

Antall: 1

Trepanel i jordfarger, moderne design med stramme linjer

Trepanel på fasader til hoved- og sekundærbolig

Garasjeport Dobbel garasjeport

🧱 Ikke spesifisert

Antall: 1

Dobbel garasjeport tilknyttet hovedbolig

Garasjeport til dobbel garasje

Tak Saltak

🧱 Tre med taktekking

Antall: 1

Saltak i tre med jordfarget takmateriale, tilpasset bevaringsområde

Saltak på hoved- og sekundærbolig

Grunnarbeid Terrengarbeid og overvannshåndtering

Heving av bygget for overvannshåndtering, terrengjustering, drenering og infiltrasjon på egen tomt

Grunnarbeid for overvannshåndtering og terrengtilpasning

Tømrer Tømrerarbeid og montering av trekonstruksjoner

🧱 Tre

Tømrerarbeid inkludert våtrom, tak, pipe/ildsted og ventilasjon

Tømrerarbeid for hele bygget

Vinduer Fasadevindu

🧱 Tre

Antall: 23

Vinduer i tre med moderne design, fordelt på hoved- og sekundærbolig

Fasadevindu i tre til hoved- og sekundærbolig

Rekkverk Glassrekkverk

🧱 Glass

Glassrekkverk ved inngangsparti

Rekkverk i glass ved inngangsparti

Gulv Gulvbelegg

Gulvbelegg i boligene, ikke nærmere spesifisert

Gulvbelegg i boligene

Mur Natursteinsmur og støttemur

🧱 Naturstein

Natursteinsmur ved inngangsparti og støttemurer i terreng

Murer for terreng og inngangsparti

Trapper Innvendige trapper

🧱 Tre

Antall: 2

To innvendige trapper i tre, inkludert trapperom i underetasje

Innvendige trapper i tre mellom etasjer

Elektro Ventilasjon og klimainstallasjoner

Ventilasjons- og klimainstallasjoner i boligene

Elektroarbeid for ventilasjon og klima

Betong Plasstøpte betongkonstruksjoner

🧱 Betong

Plasstøpte betongkonstruksjoner inkludert radontiltak

Betongarbeider for fundament og konstruksjon

Terrasse Balkong

Antall: 1

Balkong på 11.6 m² tilknyttet bolig

Balkong til bolig

Bad Baderomsinnredning

Antall: 4

Bad med sanitærutstyr i hoved- og sekundærbolig

Baderomsinnredning og sanitærutstyr

Maling Fasade- og dørmaling

Maling av fasader og dører i jordfarger og dempet blå farge på inngangsdør

Overflatebehandling av fasader og dører

Isolasjon Radontiltak

Radontiltak integrert i betongkonstruksjoner

Isolasjon og radonsikring

Kjøkken Kjøkkeninnredning

Antall: 2

Kjøkken i hovedbolig og sekundærbolig

Innredning for kjøkken i begge boenheter

Dører Ytterdører og balkongdører

🧱 Tre

Antall: 15

Ytterdører og balkongdører i tre, inkludert inngangsdør med dempet blå farge

Ytterdører og balkongdører i tre til hoved- og sekundærbolig

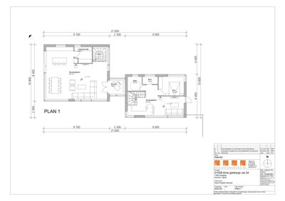
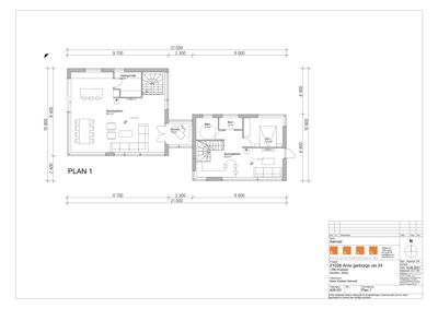
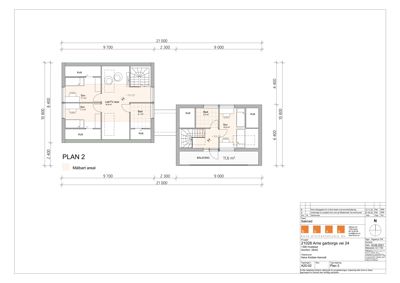
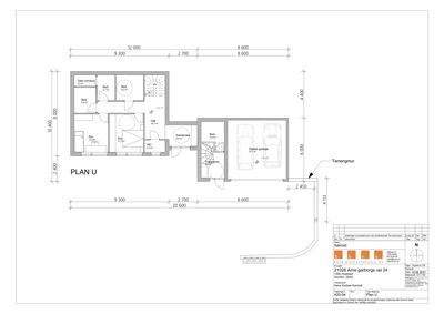
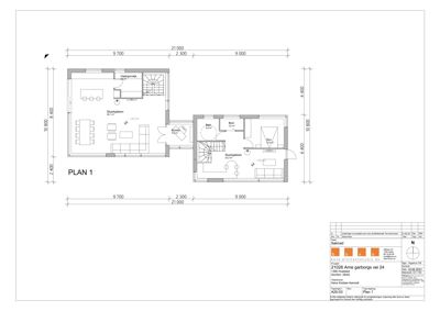
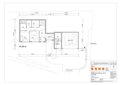
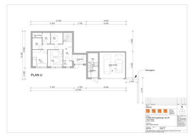
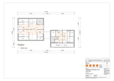
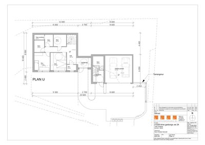
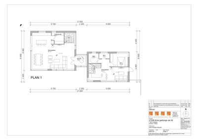
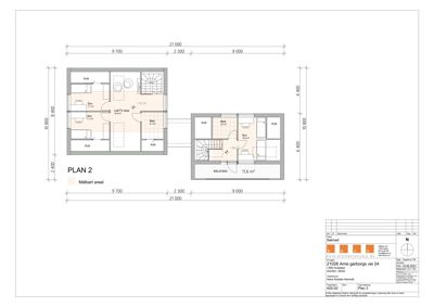
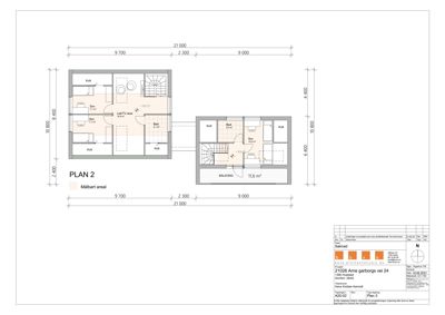
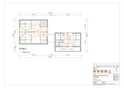
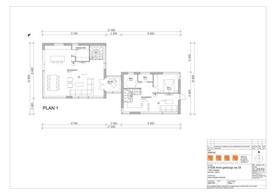
Plantegning

Enebolig 459.0 m²

Etasje 2 116.0 m²

Rom Areal Vinduer Dører
Sov 201 7.1 m² 1 1
Sov 202 7.1 m² 1 1
Lek/TV-stue 203 14.9 m² 0 2
Bad 204 4.1 m² 0 1
Kott 205 0.0 m² 1 1
Kott 206 0.0 m² 1 1
Kott 207 0.0 m² 1 1
Kott 208 0.0 m² 0 0

Etasje 3 116.0 m²

Rom Areal Vinduer Dører
Sov 301 10.0 m² 1 1
Bad 302 5.0 m² 0 1
Kott 303 0.0 m² 1 1
Kott 304 0.0 m² 1 1
Balkong 305 11.6 m² 0 1
Kott 306 0.0 m² 0 1

Etasje 0 120.5 m²

Rom Areal Vinduer Dører
Tekn.rom/bod U01 2.2 m² 0 1
Bod U02 5.0 m² 0 1
Bod U03 4.1 m² 0 1
Bad U04 6.2 m² 0 1
Sov U05 11.5 m² 1 1
Sov U06 11.7 m² 1 1
Hall U07 16.7 m² 0 2
WC U08 2.2 m² 0 1
Garderobe U09 5.9 m² 0 1
Bod U10 5.0 m² 0 1
Trapperom U11 6.4 m² 0 1
Dobbel garasje U12 31.1 m² 2 1
Hovedbolig Plan U 001 68.9 m² 0 0
Sekundærbolig Plan U 002 11.7 m² 0 0
Dbl. garasje 003 31.1 m² 0 0

Etasje 1 106.5 m²

Rom Areal Vinduer Dører
Stue/kjøkken 101 58.1 m² 2 2
Vask/grovkjøkken 102 5.8 m² 0 1
Kontor 103 5.3 m² 0 1
Bad 104 4.9 m² 0 1
Bod 105 2.5 m² 0 1
Sov 106 10.5 m² 1 1
Stue/kjøkken 107 23.2 m² 1 1

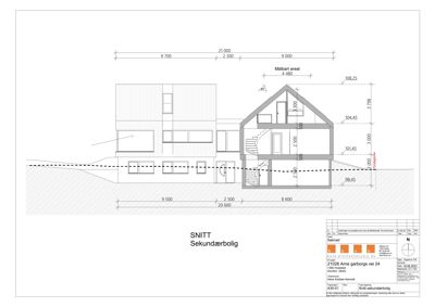
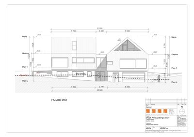
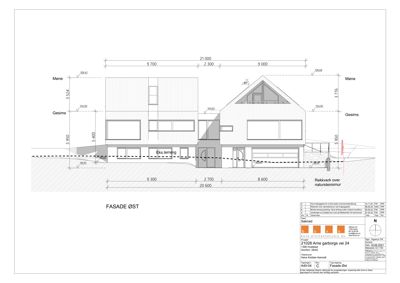
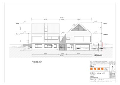
Fasader

Enebolig

Sør
Materiale
Tre
Taktype
Saltak
Høyde
6.0 m
Mønehøyde
9.5 m
Vinduer
4
Dører
1
Synlige etasjer
2
Vest
Materiale
Tre
Taktype
Saltak
Høyde
3.5 m
Mønehøyde
7.3 m
Vinduer
5
Dører
1
Synlige etasjer
2
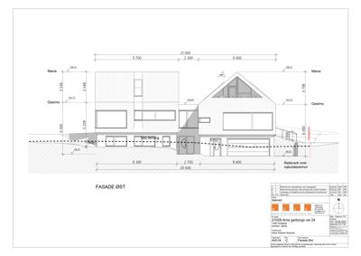
Øst
Materiale
Tre
Taktype
Saltak
Høyde
6.0 m
Mønehøyde
9.8 m
Vinduer
6
Dører
2
Synlige etasjer
2
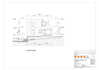
Nord
Materiale
Tre
Taktype
Saltak
Høyde
6.0 m
Mønehøyde
9.8 m
Vinduer
4
Dører
1
Synlige etasjer
2

Hendelser

08.04.2026 29/294 Brusetkollen 35A og 35B - Gjennomføringsplan
09.02.2026 29/294 Brusetkollen 35A og 35B - Endringstillatelse - Enebolig med sekundærenhet
09.02.2026 29/294 Brusetkollen 35A og 35B - Igangsettingstillatelse nr. 2 - Enebolig med sekundærenhet igangsettingstillatelse
19.01.2026 29/294 Brusetkollen 35A og 35B - Søknad om igangsettingstillatelse øvrige arbeider igangsetting
08.12.2025 29/294 Brusetkollen 25A og 35B - Søknad om endring av gitt tillatelse vedtak
10.09.2025 29/294 Brusetkollen 35A, 35B - Igangsettingstillatelse nr. 1 - Enebolig med sekundærenhet igangsettingstillatelse
09.09.2025 29/294 Brusetkollen 35A, 35B - Status - riving
08.09.2025 29/294 Brusetkollen 35A, 35B - Søknad om igangsettingstillatelse del 1 igangsettingstillatelse
09.09.2022 29/294 Rammetillatelse - Riving og nybygg - Enebolig med sekundærenhet rammetillatelse
08.08.2022 29/294 Kommentarer til varsel om avslag - Riving og nybygg - Enebolig med sekundærenhet avslag
11.07.2022 29/294 Anmodning om omprosjektering og varsel om avslag - Riving og nybygg - Enebolig med sekundærenhet avslag
31.05.2022 29/294 Uttalelse - Riving og nybygg - Enebolig med sekundærenhet
12.05.2022 29/294 Anmodning om uttalelse - Riving og nybygg - Enebolig med sekundæenhet
01.05.2022 29/294 Svar på mangelbrev - Riving og nybygg - Enebolig med sekundæenhet
13.04.2022 29/294 Ufullstendig søknad - Riving og nybygg - Enebolig med sekundærenhet søknad
09.02.2022 29/294 Kvitteringsbrev - Riving og nybygg - Enebolig med sekundæenhet
08.02.2022 29/294 Søknad om riving og nybygg - Enebolig med sekundærenhet søknad