NewConstruction Ferdigattest Enebolig

Ny enebolig med carport i Dælifaret 1, Asker

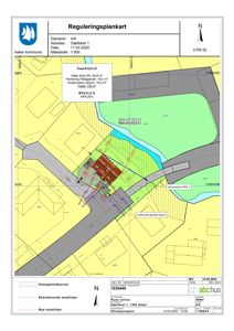
📍 Dælifaret 1 , 1383 ASKER

Nøkkelinfo

Sakstype
Nybygg
Bygningstype
Enebolig
Bruksareal
158 m²
Boenheter
1
Kommune
Asker
Fylke
Akershus
Gnr / Bnr
4 / 6
Saksnummer
25/1129
Fase
Ferdigattest

Om byggesaken

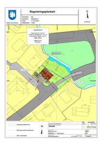
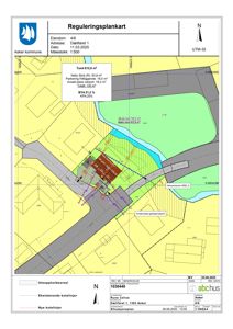
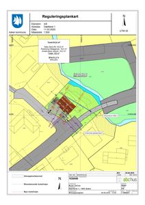
Ny enebolig på 158 m² BRA fordelt på to etasjer tilpasset skrånende terreng i Dælifaret 1, Asker. Boligen har saltak med takvinkel 22°, gesims- og mønehøyde på henholdsvis 3,3 m og 6,3 m, og fasader i tre med store vindusflater som gir godt lysinnslipp. Bygget har 7 soverom, 4 bad, to vaskerom, bod, gangarealer, stuer og kjøkken. Tomten på 613 m² har utearealer med bevaring av kantvegetasjon mot Hukenbekken, og det er etablert carport på 18,2 m² og parkeringsplass på terreng. Terrenginngrep er dispensasjonsbehandlet og tilpasset topografi og hensynssoner, med avbøtende tiltak for biologisk mangfold og overvannshåndtering. Boligen er fundamentert over kote +109,34 moh, over flomsone, og det foreligger geoteknisk vurdering som bekrefter stabilitet. Offentlig vann- og avløp er tilknyttet, og det er gjennomført nødvendige kontroller og godkjenninger. Ferdigattest er utstedt med mindre gjenstående arbeider knyttet til terreng og gårdsplass.

Produkter og materialer

Trapper Innvendig trapp

Antall: 1

Innvendig trapp mellom to etasjer

Trapp i bolig for intern kommunikasjon

Mur Puss- og flisarbeider, membran

Puss- og flisarbeider i våtrom, fuktsikring med membran

Våtromsarbeider

Tømrer Trekonstruksjoner og montering

🧱 Tre

Tømrerarbeid for bolig, inkludert montering av trekonstruksjoner og ventilasjon

Tømrerarbeid for boligoppføring

Rekkverk Rekkverk på murer og terreng

Rekkverk/gjerder på støttemurer og skjæringer ikke levert av ABChus

Sikkerhetsrekkverk på terrenginngrep

Garasjeport Carport/garasjeport

Antall: 1

Carport på 18,2 m² med dispensasjon for plassering nær vei

Carport tilknyttet bolig med parkeringsplass på terreng

Terrasse Utearealer og plen

Utearealer med plen og beplantning, tilpasset skrånende tomt

Opparbeidelse av utearealer med bevaring av kantsoner

Pipe Pipe og ildsted

Antall: 1

Pipe og ildsted prosjektert og utført

Pipe for vedovn/kamin

Gulv Fliser og parkett

Fliser i våtrom, eikeparkett i oppholdsrom (antatt)

Innvendige gulvflater med fliser og parkett

Grunnarbeid Grunnarbeider og terrenginngrep

Terrenginngrep med skjæringer opptil 1,5 m, tilpasset topografi

Grunnarbeid for boligfundament og utearealer, inkludert støttemurer

Overvann Overvannshåndtering

Nedsenket infiltrasjonsgrøft/vadi/plantebed på minimum 10 m², virvelkammer og sandfang

Lokal overvannshåndtering for tak- og overflatevann

Elektro Sikringsskap og elektriske installasjoner

Sikringsskap og elektriske installasjoner i bolig

Elektrisk anlegg iht. gjeldende forskrifter

Annet Fjerning av fremmede arter

Fjerning av fremmede arter som kanadagullris, rødhyll, skjermleddede og bulkemispel, med oppfølging i 3 år

Miljøtiltak for å bevare biologisk mangfold

Vinduer Store fasadevindu og mindre vinduer

🧱 Tre med 3-lags energiglass

Antall: 14

Store vindusflater, type Fastkarm, Sidehengslet og Toppsving

Vinduer i tre med energiglass tilpasset moderne enebolig

Betong Fundament og støttemurer

🧱 Betong

Betongfundament og støttemurer iht. geoteknisk prosjektering

Betongkonstruksjoner for stabilitet og bæreevne

Maling Innvendig maling

Innvendig maling av vegger og tak

Overflatebehandling innvendig

VVS Vann- og avløpsinstallasjoner

Tilknytning til offentlig vann- og avløpsnett, inkl. tilbakeslagsventil og vannmåler

Sanitærinstallasjoner innvendig og utvendig

Fasade Trekledning

🧱 Tre

Antall: 1

Liggende trekledning i jordtoner

Fasade i tre som harmonerer med naturomgivelsene

Tak Saltak med teglstein

🧱 Teglstein

Antall: 1

Saltak med takvinkel 22°, gesims 3,3 m, møne 6,3 m

Tradisjonelt saltak med teglstein som takmateriale

Dører Ytterdører og terrassedører

🧱 Tre

Antall: 5

Ytterdører og terrassedører i tre, inkludert inngangsdør

Dører tilpasset bolig med god isolasjon og sikkerhet

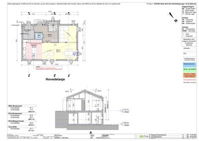
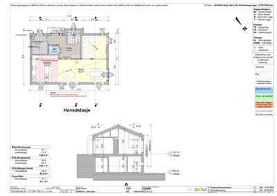
Plantegning

Enebolig 158.4 m²

Etasje 0 77.3 m²

Rom Areal Vinduer Dører
Sov2 001 7.0 m² 0 1
Sov3 002 8.2 m² 0 1
Bad2 003 5.5 m² 0 1
Bod 004 5.0 m² 0 1
Gang 005 7.3 m² 0 2
Stue2 006 14.8 m² 2 2
Vaskerom 007 6.5 m² 1 1
Bad1 008 3.6 m² 0 1
Sov1 009 12.9 m² 1 1

Etasje 1 81.1 m²

Rom Areal Vinduer Dører
Stue1 101 24.0 m² 2 1
Sov1 102 12.0 m² 1 1
Sov2 103 11.0 m² 1 1
Sov3 104 10.0 m² 1 1
Bad1 105 6.0 m² 0 1
Gang 106 10.0 m² 0 2
Kjøkken 107 10.0 m² 1 1
Vaskerom 108 8.1 m² 1 1

Fasader

Enebolig

Sørvest
Materiale
Tre
Taktype
Saltak
Takmat.
Tegl
Høyde
3.3 m
Mønehøyde
6.3 m
Vinduer
1
Dører
1
Synlige etasjer
2
Nordvest
Materiale
Tre
Taktype
Saltak
Takmat.
Tegl
Høyde
3.3 m
Mønehøyde
6.3 m
Vinduer
1
Dører
1
Synlige etasjer
2
Sørøst
Materiale
Tre
Taktype
Saltak
Takmat.
Tegl
Høyde
3.3 m
Mønehøyde
6.3 m
Vinduer
1
Dører
1
Synlige etasjer
2
Nordøst
Materiale
Tre
Taktype
Saltak
Takmat.
Tegl
Høyde
3.3 m
Mønehøyde
6.3 m
Vinduer
3
Dører
2
Synlige etasjer
2
Ukjent
Materiale
Tre
Taktype
Saltak
Vinduer
7
Dører
2
Synlige etasjer
2

Hendelser

10.04.2026 4/6 Dælifaret 1 - Bekreftelse på ferdigmelding VA
31.03.2026 4/6 Dælifaret 1 - Bekreftelse på ferdigstilt arbeid - Ferdigattest kan utstedes
25.03.2026 4/6 Dælifaret 1 - Supplering til søknad om ferdigattest - Beliggenhetskontroll
25.03.2026 4/6 Dælifaret 1 - Søknad om ferdigattest
01.10.2025 4/6 Dælifaret 1 - Godkjent dispensasjon og tillatelse til tiltak i ett trinn for oppføring av enebolig på ubebygd eiendom
15.09.2025 4/6 Dælifaret 1 - Supplering av søknad
29.08.2025 4/6 Dælifaret 1 - Tilbakemelding på e-post av 27.08.25
03.08.2025 4/6 Dælifaret 1 - Reviderte tegninger - Plassering av carport/garasje
16.07.2025 4/6 Dælifaret 1 - Svar på supplering av dokumentasjon - utgående e-post
10.07.2025 4/6 Dælifaret 1 - Ufullstendig søknad om oppføring av enebolig på ubebygd eiendom
07.07.2025 4/6 Dælifaret 1 - Svar på mangelbrev
07.07.2025 4/6 Dælifaret 1 - Supplering av dokumentasjon
20.06.2025 4/6 Dælifaret 1 - Informasjon vedrørende fjerning av fremmedarter på eiendommen
20.06.2025 4/6 Dælifaret 1 - Ber om tilbakemelding
16.05.2025 4/6 Dælifaret 1 - Purring på saksbehandling
01.04.2025 4/6 Dælifaret 1 - Søknad om oppføring av enebolig på ubebygd eiendom