NewConstruction Igangsettingstillatelse Enebolig

Ny enebolig med utomhusanlegg på Gnr 12 Bnr 1786, Askøy

📍 Eidsvikvegen 11 , 5302 STRUSSHAMN

Nøkkelinfo

Sakstype
Nybygg
Bygningstype
Enebolig
Bruksareal
191 m²
Boenheter
1
Kommune
Askøy
Fylke
Vestland
Gnr / Bnr
12 / 1786
Saksnummer
2023/15539
Fase
Igangsettingstillatelse

Om byggesaken

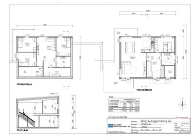
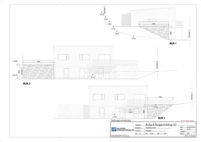
Ny enebolig på totalt 191,2 m² BRA fordelt på to etasjer med kjeller og hovedetasje. Bygget har flatt tak på enkelte fasader og saltak på andre, med gesimshøyde rundt 6-6,5 meter og mønehøyde opp til 8,2 meter. Fasaden er i treverk, og boligen inneholder blant annet fire soverom, to bad, vaskerom, teknisk rom, bod, kjellerstue, kjøkken/stue og utvendig bod. Det er en trapp innvendig, flere balkonger og vinduer fordelt på alle fasader. Utomhusanlegg og murer inngår i prosjektet. Bygget er plassert nær nabogrense med godkjent avstandserklæring. Det gjenstår mindre innvendige arbeider og utvendig puss av mur, samt finisharbeider før ferdigstillelse.

Produkter og materialer

Annet Trykkknapp WC og propper til vinduer

🧱 Sort plast

Montering av sort trykkknapp til WC og sorte propper i vinduer.

Ventilasjon Ventilasjonsanlegg

Instilling av ventilasjonsanlegg gjenstår.

Ventilasjonsanlegg som krever ferdigstilling og innstilling.

Dører Ytterdør og balkongdør

🧱 Tre

Antall: 9

Ni dører totalt, inkludert ytterdører, balkongdører og dører til utvendig bod.

Mur Forstøtningsmur og murer ved parkeringsplass

🧱 Betong/murstein

Murer som inngår i utomhusanlegget, inkludert forstøtningsmur og mur ved parkeringsplass.

Gulv Gulvlister

🧱 Tre

Montering og fuging av gulvlister ved trapp og inngang.

Fasade Trepanel

🧱 Tre

Trepanel som fasademateriale på alle fasader.

VVS Sanitærinstallasjoner

Sanitærinstallasjoner i bad, vaskerom og teknisk rom.

Maling Innvendig og utvendig maling

Sparkling og maling av trapp, vegg mot kjøkken og utvendig puss av mur.

Tak Saltak og flatt tak

🧱 Taktekking ikke spesifisert

Saltak på hovedfasader og flatt tak på enkelte fasader.

Trapper Innvendig trapp

🧱 Tre/stål

Antall: 1

Innvendig trapp mellom etasjer, med behov for sparkling og maling som del av finisharbeid.

Grunnarbeid Opparbeidelse av privat veg

Opparbeidelse av privat veg frem til offentlig veg i henhold til reguleringsplan 180 - Gnr. 12 Bnr. 1130, Marikoven

Opparbeidelse av privat adkomstveg som del av utomhusanlegget.

Vinduer Fasadevindu

🧱 Tre med 3-lags glass

Antall: 21

Totalt 21 fasadevindu fordelt på alle etasjer og fasader, inkludert vinduer i kjeller, stue, soverom og bad.

Plantegning

Enebolig 191.2 m²

Etasje 0 93.8 m²

Rom Areal Vinduer Dører
Kjellerstue 101 25.5 m² 2 2
Soverom 3 102 11.8 m² 1 1
Soverom 4 103 11.5 m² 1 1
Bod 104 5.9 m² 1 1
Teknisk 105 5.0 m² 0 1
Vaskerom 106 9.0 m² 1 1
Bad 107 7.2 m² 1 1
BRA 108 93.7 m² 0 0

Etasje 1 97.4 m²

Rom Areal Vinduer Dører
Kjøkken/stue 201 50.9 m² 2 1
Soverom 1 202 13.0 m² 1 1
Bad 203 7.3 m² 1 1
Utv.bod 204 5.0 m² 1 1
BRA 205 97.4 m² 0 0

Fasader

Enebolig

Sørvest
Materiale
Tre
Taktype
Flatt tak
Vinduer
2
Dører
2
Synlige etasjer
1
Nordøst
Materiale
Tre
Taktype
Flatt tak
Vinduer
5
Dører
1
Balkonger
1
Synlige etasjer
2
Vest
Materiale
Tre
Taktype
Saltak
Høyde
6.5 m
Mønehøyde
8.2 m
Vinduer
4
Dører
1
Balkonger
1
Synlige etasjer
2
Sør
Materiale
Tre
Taktype
Saltak
Høyde
6.5 m
Mønehøyde
8.2 m
Vinduer
4
Dører
1
Balkonger
1
Synlige etasjer
2
Øst
Materiale
Tre
Taktype
Saltak
Høyde
6.5 m
Mønehøyde
8.2 m
Vinduer
4
Dører
1
Balkonger
1
Synlige etasjer
2
Sørøst
Materiale
Tre
Taktype
Saltak
Høyde
6.0 m
Mønehøyde
8.0 m
Vinduer
2
Dører
0
Balkonger
1
Synlige etasjer
2
Nordvest
Materiale
Tre
Taktype
Saltak
Høyde
6.0 m
Mønehøyde
8.0 m
Vinduer
2
Dører
1
Balkonger
1
Synlige etasjer
2

Hendelser

15.04.2026 Gbnr 12/1786 - Supplering av søknad
17.03.2026 Gbnr 12/1786 - Supplering av søknad
17.07.2025 Gbnr 12/1786 - Midlertidig brukstillatelse
14.07.2025 Gbnr 12/1786 - Tilleggsdokumentasjon
07.07.2025 Gbnr 12/1786 - Ber om tilleggsinformasjon
07.07.2025 Gbnr 12/1786 - Tilleggsinformasjon
04.07.2025 Gbnr 12/1786 - Supplering av søknad
04.07.2025 Gbnr 12/1786 - Søknad om midlertidig brukstillatelse
31.10.2024 Gbnr 12/1786 - Supplering av søknad
02.09.2024 Gbnr 12/1786 - Tvist om privat vegrett
23.02.2024 Gbnr 12/1786 - Ber om redegjørelse
20.02.2024 Gbnr 12/1786 - Klage
20.09.2023 Gbnr 12/1786 - Tillatelse til tiltak
14.09.2023 Gbnr 12/1786 - Behov for tilleggsopplysninger
25.08.2023 Gbnr 12/1786 - Behov for tilleggsdokumentasjon
25.08.2023 Gbnr 12/1786 - Supplering av søknad
22.08.2023 Gbnr 12/1786/0/0 - Søknad om tillatelse i ett trinn