NewConstruction Ferdigattest Enebolig

Ny enebolig i Engjadalsvegen 71, Gaupne

📍 Engjadalsvegen 71 , 6868 GAUPNE

Nøkkelinfo

Sakstype
Nybygg
Bygningstype
Enebolig
Bruksareal
352 m²
Boenheter
1
Kommune
Luster
Fylke
Vestland
Gnr / Bnr
77 / 69
Saksnummer
2025/1061
Fase
Ferdigattest

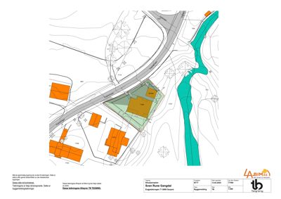
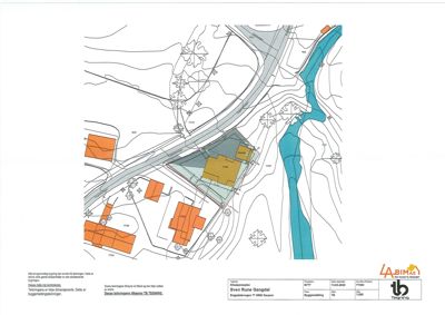
Om byggesaken

Ny enebolig i to etasjer med totalt bruksareal på 352,4 m² og bebygd areal på 225,9 m² oppført på Engjadalsvegen 71 i Gaupne. Boligen har en romslig planløsning med stue/kjøkken på 71 m² i første etasje, fire soverom, to bad, vaskerom, garderobe, bod og teknisk rom. Det er overbygde arealer i begge etasjer samt en stor terrasse på 56,7 m² i andre etasje. Bygget er utført i trekonstruksjon med trevinduer og ytterdør, og har en trapp mellom etasjene. Bygget er plassert i henhold til reguleringsplan og med tilpasset adkomst fra kommunal veg. Prosjektet er gjennomført med selvbyggeransvar og uavhengig kontroll, og ferdigattest er utstedt.

Produkter og materialer

Tak Saltak med taktekking

Tak med saltakskonstruksjon og egnet taktekking

Bad Bad og WC med sanitærutstyr

Antall: 2

To bad med komplett sanitærutstyr og membran

Tømrer Bygging av trekonstruksjon

🧱 Tre

Tømrerarbeid for reisverk, takstoler og innvendige konstruksjoner

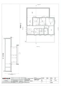
Trapper Innvendig trapp mellom etasjer

Antall: 1

Innvendig trapp som forbinder første og andre etasje

Gulv Parkett og fliser

🧱 Eikeparkett og fliser

Innvendige gulv med eikeparkett og fliser på bad og vaskerom

Vinduer Fasadevindu i tre

🧱 Tre

Antall: 14

Totalt 14 fasadevinduer i tre, fordelt på begge etasjer

VVS Sanitærinstallasjoner og vannbåren varme

Vannbåren gulvvarme, sanitærutstyr på bad og vaskerom

Installasjon av sanitærutstyr, vannbåren gulvvarme og tilknytning til offentlig vann og avløp

Elektro Elektriske installasjoner

Elektriske installasjoner i henhold til forskrift

Overflater Maling og overflatebehandling

Innvendig og utvendig maling og overflatebehandling

Dører Ytterdør i tre

🧱 Tre

Antall: 2

To ytterdører i tre, en i hver etasje

Terrasse Åpen terrasse i andre etasje

Antall: 1

Stor terrasse på 56,7 m² i andre etasje

Betong Fundament og grunnmur

🧱 Betong

Betongfundament og grunnmur for bolig

Fasade Trepanel

🧱 Tre

Trepanel som ytterkledning på fasaden

Varmepumpe Luft-til-luft varmepumpe

Antall: 1

Varmepumpe for oppvarming av bolig

Grunnarbeid Tomtearbeid og fundamentering

Grunnarbeid og fundamentering for ny enebolig

Ventilasjon Mekanisk ventilasjon

Ventilasjonsanlegg for bolig

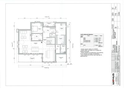
Plantegning

Enebolig 352.4 m²

Etasje 1 225.9 m²

Rom Areal Vinduer Dører
Stue/Kjøkken 101 71.0 m² 4 1
Bad 102 8.4 m² 0 1
Soverom 1 103 14.1 m² 1 1
Vaskerom 104 13.2 m² 1 1
Gang 105 8.3 m² 0 2
WC 106 2.1 m² 0 1
Garderobe 107 10.1 m² 0 1
Bod 108 4.0 m² 1 1
Bod/Teknisk 109 5.1 m² 0 1
Overbygd areal 110 19.4 m² 0 0
Overbygd areal 111 8.8 m² 0 0
Overbygd areal 112 5.1 m² 0 0

Etasje 2 126.5 m²

Rom Areal Vinduer Dører
Stue 201 13.2 m² 3 1
Korridor 202 6.4 m² 0 1
Soverom 2 203 14.1 m² 1 1
Soverom 3 204 10.6 m² 1 1
Soverom 4 205 11.3 m² 1 1
Bad 206 5.2 m² 0 1
Gang/Inngang 207 14.5 m² 1 1
Overbygget areal 208 8.1 m² 0 0
Terrasse 209 56.7 m² 0 0

Fasader

Enebolig

Ukjent
Materiale
Tre
Vinduer
5
Dører
1
Synlige etasjer
2

Hendelser

16.04.2026 Søknad om ferdigattest - gbnr. 77/68 - Engjadalsvegen 71 - bustadhus
16.04.2026 Ferdigattest - ny einebustad - gbnr. 77/69 - Engjadalsvegen 71
11.07.2025 Tilsynsrapport - Engjadalsvegen 71 - gbnr. 77/69
04.04.2025 Notat etter telefonsamtale 03.04.2025 - oppdater situasjonsplan - endra plassering av bustadhus - gbnr. 77/69 - Engjadalsvegen 711
03.04.2025 Oppdatert situasjonsplan - bygging av bustadhus - endra plassering - flytta huset 2,9 meter mot sør - gbnr. 77/69
01.04.2025 Byggeløyve - einebustad - Gbnr. 77/69 - Engjadalsvegen 71 - ansvarsrett som sjølvbyggar
01.04.2025 Fakturagrunnlag - Gbnr. 77/69 - Engjadalsvegen 71 - Oppføring av einebustad
26.03.2025 Søknad om tiltak på gbnr. 77/69 - Engjadalsvegen 71 - nytt bustadhus
26.03.2025 Vedlegg til søknad om tiltak - innkøyrsle - gbnr. 77/69 - Engjadalsvegen 71