NewConstruction Rammetillatelse Enebolig

Ny enebolig med integrert garasje i Fagertunveien, Asker

📍 Fagertunveien 1 , 3477 BÅTSTØ

Nøkkelinfo

Sakstype
Nybygg
Bygningstype
Enebolig
Bruksareal
218 m²
Boenheter
1
Kommune
Asker
Fylke
Akershus
Gnr / Bnr
246 / 283
Saksnummer
26/40
Fase
Rammetillatelse

Om byggesaken

Ny enebolig på 120,2 m² BRA med integrert garasje på totalt 37,8 m², oppført i ett plan med saltak tekket med teglstein. Boligen har tre soverom, to bad, vaskerom, hall, gang, bod og sportsbod. Fasaden er i tre med saltak og flere vinduer fordelt på alle fasader, samt pipe. Garasjen har to parkeringsplasser med garasjeporter. Utearealet inkluderer drivhus på 14,1 m² og utebod på 11,7 m², begge under søknadspliktig størrelse. Tomten er på 1186 m² med bearbeidet terreng, uteoppholdsareal på over 380 m², og lokal overvannshåndtering med fordrøyningsvolum på over 14 m³. Bygget er tilpasset kupert terreng med terrengprofiler og solstudier dokumentert. Det er etablert god adkomst med regulert avkjørsel og snuareal.

Arbeidsomfang

- Oppføring av ny enebolig med saltak og integrert garasje på eiendommen Gnr 246 Bnr 283. - Terrengbearbeiding for å tilpasse boligen til den kupert topografien. - Oppføring av et drivhus. - Oppføring av en utebod. - Anleggelse av snuareal og parkeringsanlegg (2 plasser i garasje + 1 terreng). - Utforming av uteoppholdsarealer på over 380 m² mot øst/sørovest og vest/sørvest.

Produkter og materialer

Vinduer Fasadevindu

🧱 Tre med 3-lags energiglass

Antall: 26

Fordelt på fasader, inkludert 4 vinduer på nordøst, 3 på nordvest, 4 på nord, 3 på sør, 3 på vest, 2 på øst, 5 på sørvest, 1 på sørøst

Fasadevinduer i tre med energiglass for naturlig lys og ventilasjon

Terrasse Støpt platting og veranda

🧱 Betong og tre

Støpt platting og veranda med fall bort fra bygg

Uteareal med terrasse og platting

Mur Grunnmur og forstøtningsmurer

🧱 Mursystem godkjent for trehus

Grunnmur og forstøtningsmurer under 2 meter høyde

Murarbeid for grunnmur og støttemurer

Grunnarbeid Tomtebearbeiding og fundamentering

Terreng bearbeidet med fall bort fra bygg, terrengendringer inntil 1 meter, støttemurer under 2 meter

Grunnarbeid for tilpasning til kupert terreng og fundamentering

Dører Ytterdører og garasjeporter

🧱 Tre og metall

Antall: 12

Inkluderer 2 dører på nordøst, 1 på nordvest, 1 på nord, 1 på sør, 1 på vest, 1 på øst, 1 på sørvest, 1 på sørøst, 2 garasjeporter på sør og sørøst

Ytterdører i tre og garasjeporter i metall for bolig og garasje

Tak Saltak med teglstein

🧱 Teglstein

Antall: 1

Saltak med gesimshøyde 6m og mønehøyde 8m

Saltak tekket med teglstein i henhold til reguleringsbestemmelser

Grunnarbeid Overvannshåndtering

Fordrøyningsvolum på over 14 m³ med regnbed/grønn forsenkning, lokal overvannshåndtering uten tilknytning til kommunalt nett

Overvannshåndtering på tomt med flomveier opprettholdt

Bad Våtromsinnredning og membran

Antall: 2

To bad med membranarbeid og våtromsinnredning

Bad med membran og sanitærutstyr

VVS Rørleggerarbeid innvendig og utvendig

Prosjektering og utførelse av rørleggerarbeid innvendig og utvendig

VVS-installasjoner for bolig og garasje

Tømrer Byggeteknikk og montering

🧱 Tre

Tømrerarbeid for bolig og garasje, inkludert montering av ventilasjonskanaler og membranarbeid i våtrom

Tømrerarbeid for oppføring av bolig og garasje

Gulv Innvendige gulvflater

Gulv i stue, kjøkken, soverom, bad og vaskerom

Innvendige gulvflater i bolig

Elektro Elektriske installasjoner

Elektriske installasjoner i bolig og garasje

Elektroarbeid for bolig og garasje

Fasade Trepanel

🧱 Tre

Trepanel på fasader i henhold til fasadetegninger

Fasadebekledning i tre

Garasjeport Port til integrert garasje

🧱 Metall

Antall: 2

To garasjeporter på sør og sørøst fasade

Garasjeporter til integrert garasje

Ventilasjon Balansert ventilasjon

Prosjektering og montering av balansert ventilasjonsanlegg

Ventilasjonssystem for bolig

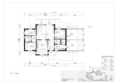
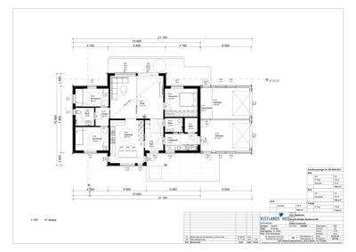
Plantegning

Enebolig 120.2 m²

Etasje 1 120.2 m²

Rom Areal Vinduer Dører
Stue H-01 31.7 m² 1 2
Kjøkken H-02 20.4 m² 1 2
Soverom H-03 12.8 m² 1 2
Soverom H-04 10.8 m² 1 2
Soverom H-05 8.3 m² 1 2
Bad H-06 4.6 m² 0 2
Bad H-07 3.4 m² 0 2
Vaskerom H-08 7.8 m² 0 2
Hall H-09 8.0 m² 0 3
Gang H-10 3.6 m² 0 2
Bod H-11 2.5 m² 0 2
Sportsbod H-12 5.0 m² 1 2
Garasje H-13 16.4 m² 1 2
Garasje H-14 21.4 m² 1 2

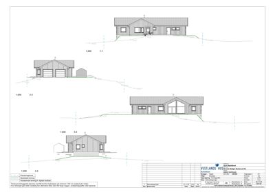
Fasader

Enebolig

Nordøst
Materiale
Tre
Taktype
Saltak
Takmat.
Tegl
Vinduer
4
Dører
2
Synlige etasjer
1
Nordvest
Materiale
Tre
Taktype
Saltak
Takmat.
Tegl
Vinduer
3
Dører
1
Synlige etasjer
1
Nord
Materiale
Tre
Taktype
Saltak
Takmat.
Tegl
Høyde
6.0 m
Mønehøyde
8.0 m
Vinduer
4
Dører
1
Synlige etasjer
1
Sør
Materiale
Tre
Taktype
Saltak
Takmat.
Tegl
Høyde
6.0 m
Mønehøyde
8.0 m
Vinduer
3
Dører
1
Synlige etasjer
1
Vest
Materiale
Tre
Taktype
Saltak
Takmat.
Tegl
Høyde
6.0 m
Mønehøyde
8.0 m
Vinduer
3
Dører
1
Synlige etasjer
1
Øst
Materiale
Tre
Taktype
Saltak
Takmat.
Tegl
Høyde
6.0 m
Mønehøyde
8.0 m
Vinduer
2
Dører
1
Synlige etasjer
1
Sørvest
Materiale
Tre
Taktype
Saltak
Takmat.
Tegl
Vinduer
5
Dører
1
Synlige etasjer
1
Sørøst
Materiale
Tre
Taktype
Saltak
Takmat.
Tegl
Vinduer
1
Dører
1
Synlige etasjer
1

Hendelser

07.04.2026 246/283 Fagertunveien - Kommentar til tillatelse til tiltak byggetillatelse
30.03.2026 246/283 Fagertunveien - Tillatelse til tiltak i ett trinn for nybygg enebolig med integrert garasje byggetillatelse
29.03.2026 246/283 Fagertunveien - Svar på innsendte kommentar
25.03.2026 246/283 Fagertunveien - Svar vedrørende overvannshåndtering
23.03.2026 246/283 Fagertunveien - Spørsmål om overvannshåntering
17.03.2026 248/283 Fagertunveien - Supplering av søknad søknad
10.03.2026 246/283 Fagertunveien - Supplering av søknad søknad
05.03.2026 246/283 Fagertunveien - Ufullstendig søknad med varsel om avslag - Nybygg enebolig med integrert garasje samt drivhus og utebod avslag
06.01.2026 246/283 Fagertunveien - Søknad om tillatelse i ett trinn - Nybygg enebolig med integrert garasje samt drivhus og utebod søknad