NewConstruction Ferdigattest Enebolig

Ny enebolig med kjeller på Fennavegen 315, Voss

📍 Fennastølsvegen 108 , 5709 VOSS

Nøkkelinfo

Sakstype
Nybygg
Bygningstype
Enebolig
Bruksareal
149 m²
Boenheter
1
Kommune
Voss
Fylke
Vestland
Gnr / Bnr
167 / 1
Saksnummer
2024/5553
Fase
Ferdigattest

Om byggesaken

Ny enebolig med totalt bruksareal på ca. 149 m² oppføres på Fennavegen 315 i Voss. Bygget har en uinnredet kjeller på 73,8 m² og et hovedplan på 75 m² med stue/kjøkken, bad/vaskerom, hall, to soverom og bod. Bygningen har saltak og tre som fasademateriale, med totalt 10 vinduer fordelt på fire fasader og pipe. Det gamle kårhuset på ca. 40 m² rives før nybygging. Prosjektet inkluderer grunnarbeider, betongarbeider, sanitærinstallasjoner, ventilasjon, våtromsarbeider, samt et minirenseanlegg med utslippstillatelse. Skredfarevurdering er utført og tiltaket tilfredsstiller krav til sikkerhet mot skred. Ferdigattest er gitt, og prosjektet er gjennomført i henhold til godkjent dokumentasjon.

Produkter og materialer

Trapper Innvendig trapp

🧱 Tre

Antall: 1

Trapp mellom kjeller og hovedplan

Innvendig trapp i tre mellom etasjer

Dører Innvendige dører

🧱 Tre

Antall: 7

Innvendige dører til rom som stue/kjøkken, bad, hall, soverom og bod

Innvendige dører i tre for ny enebolig

Maling Innvendig og utvendig maling

Antall: 1

Maling av trefasader og innvendige overflater

Maling for fasade og innvendige flater

Garasjeport Ingen garasje

Antall: 0

Ingen garasje eller garasjeport i prosjektet

Ingen garasje eller garasjeport

Varmepumpe Varmepumpe

Antall: 0

Ingen opplysninger om varmepumpe

Ingen varmepumpe oppgitt

VVS Sanitærinstallasjoner

Antall: 1

Sanitærinstallasjoner i bolig, inkludert bad og vaskerom

Sanitærinstallasjoner for ny enebolig

Annet Minirenseanlegg med infiltrasjon

Antall: 1

Minirenseanlegg Biovac Dynamic 1 med etterpolering i infiltrasjonsanlegg, utslippstillatelse for 5 pe

Avløpsrenseanlegg for bolig

Tak Saltak

🧱 Tre, taktekking ikke spesifisert

Antall: 1

Saltak på to etasjer

Saltak for ny enebolig

Solceller Solcelleanlegg

Antall: 0

Ingen opplysninger om solceller

Ingen solcelleanlegg oppgitt

Isolasjon Isolasjon for bolig

Antall: 1

Isolasjon iht. TEK17 krav

Isolasjon for vegger, tak og gulv i ny enebolig

Betong Betongkonstruksjoner og kjellermurer

🧱 Betong

Antall: 1

Betonggulv i kjeller, kjellermurer

Betongarbeider for kjeller og fundamentering

Vinduer Fasadevindu

🧱 Tre/Aluminium

Antall: 10

Vinduer fordelt på fasader: Nord 2, Sør 4, Øst 2, Vest 2

Fasadevinduer i tre/aluminium for ny enebolig

Pipe Murpipe

🧱 Mur

Antall: 1

Pipe på alle fasader

Murpipe for ny enebolig

Grunnarbeid Grunnarbeider for ny enebolig

Antall: 1

Inkluderer utstikking, plassering, grunnarbeider og miljøsanering av gammelt hus

Grunnarbeid for ny enebolig med kjeller, inkludert riving og miljøsanering av eksisterende kårbolig

Bad Våtrom og flis

🧱 Fliser

Antall: 1

Våtromsarbeider og flislegging i bad/vaskerom

Bad og vaskerom med flis og våtromsarbeid

Tømrer Tømrerarbeid for enebolig

🧱 Tre

Antall: 1

Tømrerarbeid for oppføring av enebolig med saltak og trefasader

Tømrerarbeid for ny enebolig med saltak og trefasade

Ventilasjon Ventilasjonsanlegg

Antall: 1

Ventilasjonsanlegg for bolig

Ventilasjonsanlegg for ny enebolig

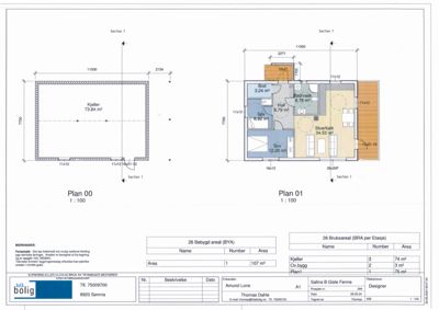
Plantegning

Enebolig 148.8 m²

Etasje 0 73.8 m²

Rom Areal Vinduer Dører
Kjeller 001 73.8 m² 0 0

Etasje 1 75.0 m²

Rom Areal Vinduer Dører
Stue/kjøk 101 34.5 m² 1 1
Bad/vask 102 6.8 m² 0 1
Hall 103 8.8 m² 0 2
Sov 104 6.9 m² 0 1
Sov 105 12.2 m² 0 1
Bod 106 3.2 m² 0 1

Fasader

Enebolig

Nord
Materiale
Tre
Taktype
Saltak
Vinduer
2
Dører
0
Synlige etasjer
2
Sør
Materiale
Tre
Taktype
Saltak
Vinduer
4
Dører
0
Synlige etasjer
2
Øst
Materiale
Tre
Taktype
Saltak
Vinduer
2
Dører
0
Synlige etasjer
2
Vest
Materiale
Tre
Taktype
Saltak
Vinduer
2
Dører
0
Synlige etasjer
2

Hendelser

20.04.2026 Ferdigattest - Rive kårhus & bygge nytt bygg - bustad - gbnr. 167/1 - Fennavegen 315
20.04.2026 Supplering av søknad - gbnr. 167/1 - Fennavegen 315
20.04.2026 Søknad om ferdigattest - gbnr. 167/1- Fennevagen 315
02.01.2025 Igangsetjingsløyve - Rive kårhus & bygge nytt bygg - bustad - Gbnr 167/1 - Fennavegen 315
30.12.2024 Søknad om løyve - revidert - rive kårhus og bygge nytt bygg - bustad - gbnr. 167/1 - Fennavegen 315
23.09.2024 Rammeløyve - Rive kårhus & bygge nytt bygg - bustad - Gbnr 167/1 - Fennavegen 315
13.09.2024 Søknad om endring til rammeløyve - bustad - gbnr. 167/1 - Fennavegen 315
11.09.2024 Vedr. utsleppsløyve ved Fennavegen 315
17.07.2024 Riving kårhus & bygge nytt bygg - Gbnr 167/1
05.07.2024 Supplering av søknad - gbnr. 167/1 - Fennavegen 315
05.07.2024 Tilbakemelding om manglar - Rive kårhus & bygge nytt bygg - bustad - Gbnr 167/1 - Fennavegen 315
02.07.2024 Søknad om løyve - rive kårhus & bygge nytt bygg - bustad - Gbnr 167/1 - Fennavegen 315
02.07.2024 Stadfesting av motteken søknad - Rive kårhus & bygge nytt bygg - bustad - Gbnr 167/1 - Fennavegen 315