NewConstruction Igangsettingstillatelse Enebolig

Ny enebolig med hybel og utomhusanlegg på Florvåg Øen 106

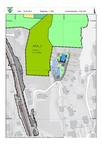
📍 Florvågøen 106B , 5305 FLORVÅG

Nøkkelinfo

Sakstype
Nybygg
Bygningstype
Enebolig
Bruksareal
338 m²
Boenheter
1
Kommune
Askøy
Fylke
Vestland
Gnr / Bnr
6 / 82
Saksnummer
2022/13042
Fase
Igangsettingstillatelse

Om byggesaken

Ny enebolig på totalt 338,36 m² BRA fordelt på to etasjer bygges på Florvåg Øen 106, Askøy. Boligen har en hybeldel i kjelleretasjen som gir fleksibel bruk, samt fire soverom, flere bad, stue/kjøkken i begge etasjer, vaskerom, sportsbod og gjesterom. Bygget har saltak og tre som fasademateriale, med natursteinsmurer mot sjøen. Utomhusanlegget inkluderer terrengarbeider med forstøtningsmurer, opparbeidet uteareal og adkomstveg. Bygget plasseres nær sjøen med minste avstand 26,8 meter, med dispensasjon fra byggegrense. Det stilles krav om uavhengig kontroll av geoteknikk for sprengningsarbeider og byggegrop. Tiltaket er i tråd med kommuneplanens arealformål, men krever dispensasjon for byggegrense mot sjø. Det er gitt rammetillatelse og igangsettingstillatelse for grunnarbeider. Det foreligger dokumentasjon på rettigheter for adkomst og tilknytning til offentlig VA. Kulturminner og naturmangfold er vurdert og hensyntatt i planleggingen.

Produkter og materialer

Ventilasjon Balansert ventilasjon

Systemair AS ansvarlig for balansert ventilasjon

Ventilasjonsanlegg for bolig

Gulv Innvendige gulv

Innvendige gulv i bolig, standard ikke spesifisert

Tak Saltak

🧱 Tre og taktekking

Antall: 1

Saltak med gesimshøyde ca 6,88 m

Rekkverk Altanrekkverk

Antall: 2

Rekkverk på to altaner i 2. etasje

VVS Vann- og avløpsledninger

Tilknytning til offentlig vann- og avløpsnett, godkjent av VA-myndighet

VA-ledninger og tilkobling til offentlig nett

Dører Ytterdører og balkongdører

🧱 Tre

Antall: 11

Ytterdører og dører til altaner i tre

Vinduer Fasadevindu

🧱 Tre

Antall: 19

Fasadevindu i tre, fordelt på øst, nord, vest og sør fasader

Tømrer Bygging av bolig

🧱 Tre

Tømrerarbeid for bolig og utvendige konstruksjoner

Utendørs Terrengarbeid og uteoppholdsareal

Opparbeidelse av uteareal, terrengheving og planering

Utomhusanlegg med uteareal og adkomstveg

Mur Forstøtningsmur

🧱 Naturstein

Antall: 2

Natursteinsmur med stedlige masser i forkant mot sjø

Forstøtningsmurer mot sjø for terrengopparbeidelse

Grunnarbeid Sprengning og planering

Sprengningsarbeider og planering av tomt og naboeiendom for massebalanse

Grunnarbeider med sprengning, planering og opparbeidelse av uteareal

Elektro El-installasjoner

Elektriske installasjoner iht TEK17

Bad Våtromsarbeider

Antall: 3

Våtrom i bolig, inkludert bad og vaskerom

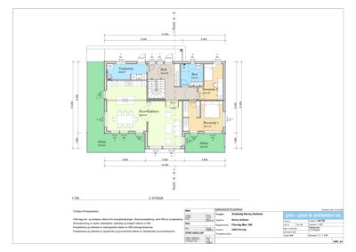
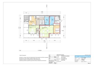
Plantegning

Enebolig 338.4 m²

Etasje 2 115.2 m²

Rom Areal Vinduer Dører
Vaskerom 201 8.6 m² 1 1
Hall 202 14.2 m² 0 4
Bad 203 6.9 m² 0 1
Soverom 2 204 10.4 m² 1 1
Stue/Kjøkken 205 49.6 m² 3 2
Soverom 1 206 16.1 m² 1 1
Altan 207 31.8 m² 3 0
Altan 208 10.2 m² 1 0

Etasje 1 223.2 m²

Rom Areal Vinduer Dører
Sykkelbod 101 5.0 m² 0 1
Soverom 3 102 11.9 m² 1 1
Gang 103 10.1 m² 0 2
Bad 104 7.1 m² 0 1
Bad 105 8.6 m² 0 1
Sportsbod 106 6.7 m² 1 1
Gjesterom/ Tv stue 107 12.8 m² 2 1
Entre 108 2.7 m² 0 1
Stue/Kjøkken 109 28.5 m² 2 1
Soverom 4 110 11.7 m² 2 1

Fasader

Enebolig

Øst
Materiale
Tre
Taktype
Saltak
Høyde
6.9 m
Vinduer
9
Dører
2
Balkonger
2
Synlige etasjer
2
Nord
Materiale
Tre
Taktype
Saltak
Vinduer
3
Dører
1
Synlige etasjer
1
Vest
Materiale
Tre
Taktype
Saltak
Vinduer
3
Dører
1
Balkonger
1
Synlige etasjer
1
Sør
Materiale
Tre
Taktype
Saltak
Vinduer
3
Dører
1
Balkonger
1
Synlige etasjer
1

Hendelser

15.04.2026 Gbnr 6/82 - Anmodning av heving av stop dato
13.04.2026 Gbnr 6/82 - Søknad om utsettelse av tidsbegrensning for grunnarbeider
04.02.2026 Gbnr 6/82 - Igangsettingstillatelse 1
16.01.2026 Gbnr 6/82 - Søknad om igangsettingstillatelse
09.09.2025 Gbnr 6/82 - Rammetillatelse
02.09.2025 Gbnr 6/82 - Mangelbrev
02.09.2025 Gbnr 6/82 - Svar på mangelbrev
19.08.2025 Gbnr 6/82 - Anmodning om uttale fra kart og oppmåling
04.07.2025 Gbnr 6/82 - Oppfølging etter mottatt redegjørelse om veirett
04.07.2025 Gbnr 6/82 – Anmodning om dokumentasjon på privatrettslige rettigheter
04.07.2025 Gbnr 6/82 - Tilbakemelding om veirett
03.07.2025 Gbnr 6/82 - Anmodning om uttale fra kart og oppmåling
03.07.2025 Gbnr 6/82 – Svar på anmodning om dokumentasjon på privatrettslige rettigheter
01.07.2025 Gbnr 6/82 – Merknad - Anmodning om dokumentasjon på privatrettslige rettigheter
20.06.2025 Gbnr 6/82 - Supplering av søknad
16.05.2025 Gbnr 6/82 - Ber om tilleggsdokumentasjon
07.04.2025 Gbnr 6/82 - Søknad om rammetillatelse
10.10.2024 Gbnr 6/82 - Dispensasjonsvedtak
08.10.2024 Gbnr 6/82 - Oversendelse av uttaler
08.10.2024 Gbnr 6/82 - Redegjørelse 2
08.10.2024 Gbnr 6/82 - Redegjørelse
08.10.2024 Gbnr 6/82 - Ber om å få oversendt uttaler
30.09.2024 Gbnr 6/82 - Kulturminnefaglig uttale
10.09.2024 Gbnr 6/82 - Uttale - Dispensasjon
27.08.2024 Gbnr 6/82 - Uttale
21.08.2024 Gbnr 6/82 - Uttale fra miljø og landbruk
20.08.2024 Gbnr 6/82 - Anmodning om uttale
20.08.2024 Gbnr 6/82 - Intern oversendelse - notat
06.08.2024 Gbnr 6/82 - Søknad om dispensasjon for oppføring av bolig
14.06.2023 Gbnr 6/82 - Svar på henvendelse om deponering av masser
14.06.2023 Gbnr 6/82 - Spørsmål om deponering av masser
08.12.2022 Gbnr 6/82 - Vilkår for igangsetting er oppfylt
05.12.2022 Gbnr 6/82 - Ber om redegjørelse
14.11.2022 Gbnr 6/82 - Tilleggsdokumentasjon
14.11.2022 Gbnr 6/82 - Tilleggsdokumentasjon
14.11.2022 Gbnr 6/82 - Tilleggsopplysninger til løyve om utvidet bruk av avkjørsel - fv 5252
14.11.2022 Gbnr 6/82 - Oppdatert - Erklæring om ansvarsrett
11.11.2022 Gbnr 6/82 - Vedrørende manglende dokumentasjon