NewConstruction Rammetillatelse Enebolig

Ny enebolig med garasje og avløpsanlegg på Frafjordstraen 5, Dirdal

📍 Frafjordstraen 5 , 4335 DIRDAL

Nøkkelinfo

Sakstype
Nybygg
Bygningstype
Enebolig
Bruksareal
129 m²
Boenheter
1
Kommune
Gjesdal
Fylke
Rogaland
Gnr / Bnr
55 / 19
Saksnummer
24/02402
Fase
Rammetillatelse

Om byggesaken

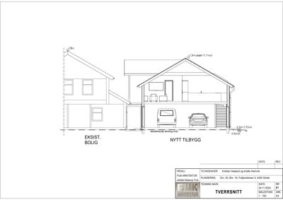
Ny to-etasjes enebolig med tilhørende garasje og bod på totalt 129,4 m² BRA oppføres på eiendommen Frafjordstraen 5 i Dirdal. Bygget har saltak med teglstein, og fasader i tre. Første etasje inneholder garasje (44,4 m²), vaskerom, bod og gang, mens andre etasje inneholder kjøkkenstue, to rom, gang og bad. Boligen er arkitektonisk tilpasset eksisterende bolig på tomten, med takoverbygg som forbinder bygningene. Tomten er på 1747 m² med en utnyttelsesgrad på 18,5 %. Det etableres et Votec minirenseanlegg for sanitært avløpsvann på tomten, med dokumentert utslippstillatelse. Flomfarevurdering viser at boligen ligger trygt over modellert flomnivå, og det foreligger dispensasjon fra kommuneplanens krav om reguleringsplan og maks enebolig per eiendom. Prosjektet har full ansvarsrett for prosjektering og utførelse innen relevante fagområder.

Produkter og materialer

Fasade Trepanel

🧱 Tre

Trepanel på fasader

Garasjeport Garasjeport i fasade vest og sør

Antall: 1

Garasjeport tilknyttet garasje i første etasje

Vinduer Vanlige fasadevindu

🧱 Trekarmer

Antall: 8

Vanlige fasadevindu i 1. og 2. etasje

Maling Innvendig og utvendig maling

Maling av innvendige og utvendige flater

Dører Ytterdører og garasjeport

🧱 Tre og metall

Antall: 7

Ytterdører til bolig og garasjeport

VVS Minirenseanlegg for sanitært avløpsvann

🧱 Votec 5 PE GPP1 minirenseanlegg

Antall: 1

SINTEF godkjent, kapasitet 5 personekvivalenter

Minirenseanlegg for rensing av sanitært avløpsvann på tomten

VVS Tilkobling til septiktank

Antall: 1

Tilkobling til eksisterende septiktank og renseanlegg

Gulv Gulv i bolig og garasje

Gulv i bolig og garasje, materialvalg ikke spesifisert

Trapper Innvendig trapp

Antall: 1

Innvendig trapp mellom 1. og 2. etasje

Elektro Elektriske installasjoner

Elektriske installasjoner i bolig og garasje

Betong Betongarbeider

Betongarbeider for fundamenter og eventuelle støttemurer

Vinduer Store vinduspartier i loftsetasje

🧱 Trekarmer

Antall: 4

Store vinduspartier i loftsetasje for god utsikt og lysinnslipp

Tømrer Trekonstruksjoner

🧱 Tre

Trekonstruksjoner for bolig og garasje

Grunnarbeid Tomtearbeid og fundamentering

Grunnarbeid for ny bolig og garasje, inkludert fundamentering

Tak Saltak med teglstein

🧱 Teglstein

Antall: 1

Saltak med 30 graders takvinkel

Saltak med teglstein som takmateriale

Bad Bad med toalett og sanitærutstyr

Antall: 1

Bad med toalett, dusj og sanitærutstyr i andre etasje

VVS Drikkevannstilknytning

Antall: 1

Tilkobling til eksisterende drikkevannskilde på eiendommen

Tilkobling til eksisterende drikkevannskilde godkjent av vannverk

Plantegning

Enebolig 129.4 m²

Etasje 1 64.7 m²

Rom Areal Vinduer Dører
Garasje 1.1 44.4 m² 0 0
Vaskerom 1.2 7.3 m² 0 1
Bod 1.3 14.2 m² 0 1
Gang 1.4 2.1 m² 0 1

Etasje 2 64.7 m²

Rom Areal Vinduer Dører
Kjøkkenstue 2.1 36.9 m² 0 1
Rom 1 2.2 7.3 m² 0 1
Rom 2 2.3 7.0 m² 0 1
Gang 2.4 7.1 m² 0 1
Bad 2.5 6.8 m² 0 1

Fasader

Enebolig

Øst
Materiale
Tre
Taktype
Saltak
Takmat.
Tegl
Høyde
6.5 m
Mønehøyde
7.2 m
Vinduer
4
Dører
2
Synlige etasjer
2
Vest
Materiale
Tre
Taktype
Saltak
Takmat.
Tegl
Høyde
6.5 m
Mønehøyde
8.0 m
Vinduer
1
Dører
2
Synlige etasjer
2
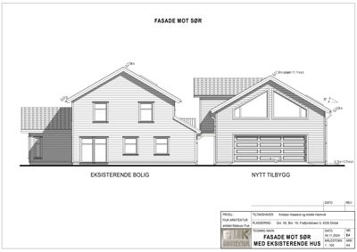
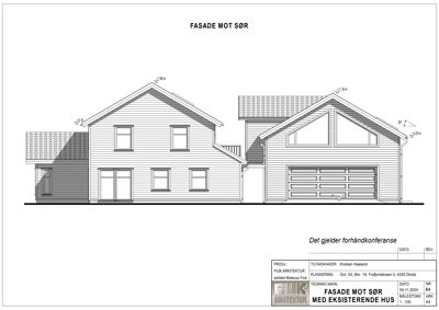
Sør
Materiale
Tre
Taktype
Saltak
Takmat.
Tegl
Høyde
5.2 m
Mønehøyde
8.0 m
Vinduer
2
Dører
0
Balkonger
1
Synlige etasjer
2
Nord
Materiale
Tre
Taktype
Saltak
Takmat.
Tegl
Vinduer
5
Dører
0
Balkonger
1
Synlige etasjer
2

Eksisterende bolig

Sør
Materiale
Tre
Taktype
Saltak
Høyde
5.2 m
Mønehøyde
8.0 m
Vinduer
4
Dører
1
Synlige etasjer
2

Nytt tilbygg

Sør
Materiale
Tre
Taktype
Saltak
Høyde
4.2 m
Mønehøyde
7.2 m
Vinduer
2
Dører
1
Synlige etasjer
2

Hendelser

13.04.2026 24/02402-8 GODKJENT - søknad fra Kristian Haaland om dispensasjon fra kommuneplanen for oppføring av enebolig og avløpsanlegg på gnr. 55, bnr. 19, Frafjordstraen 5, Frafjord
13.04.2026 24/02402-9 Revidert situasjonskart med riktig plassert avløpsanlegg, gnr. 55, bnr. 19, Frafjordstraen 5, Frafjord
09.12.2025 24/02402-7 Svar på siste innsendte dokumenter til søknad om oppføring av bolig, gnr. 55, bnr. 19, Frafjordstraen 5, Frafjord
01.12.2025 24/02402-6 Supplering av søknad fra Kristian Haaland om dispensasjon fra kommuneplanen for oppføring av bolig, gnr. 55, bnr. 19, Frafjordstraen 5, Frafjord
02.09.2025 24/02402-5 Eposter om eksisterende septikanlegg på gnr. 55, bnr. 19, Frafjordstraen 5, Frafjord
27.05.2025 24/02402-4 Melding om mangler/behov for avklaringer - søknad om oppføring av bolig med garasje, gnr. 55, bnr. 19, Frafjordstraen 5, Frafjord
12.05.2025 24/02402-3 Søknad fra Kristian Haaland om dispensasjon fra reguleringsplanen for oppføring av bolig på gnr. 55, bnr. 19, Frafjordstraen 5, Frafjord
30.12.2024 24/02402-2 Avklaringer aktsomhetssone for flom og kvikkleire, gnr. 55, bnr. 19; Frafjordstraen 5, Frafjord
10.12.2024 24/02402-1 Veiledning - oppføring av bolig, gnr. 55, bnr. 19, Frafjordstraen 5, Frafjord