NewConstruction UnderBehandling Enebolig

Ny enebolig med garasje på Furubakken 51, Drammen

📍 Furubakken 51 , 3057 SOLBERGELVA

Nøkkelinfo

Sakstype
Nybygg
Bygningstype
Enebolig
Bruksareal
175 m²
Boenheter
1
Kommune
Drammen
Fylke
Buskerud
Gnr / Bnr
245 / 376
Saksnummer
25/40121
Fase
Under behandling

Om byggesaken

Ny enebolig i to etasjer med integrert garasje på totalt ca. 174,7 m² BRA oppføres på Furubakken 51 i Drammen. Boligen har valmet saltak, klassisk/herskapelig arkitektur, og er tilpasset tomtens skrånende terreng med minimal terrenginngrep. Planløsningen inkluderer 3 soverom, bad, vaskerom, tv-stue, sportsbod og garasje. Fundamentering skjer på undersprengt fjell med pukkfundament, og geoteknisk rapport dokumenterer stabile grunnforhold uten kvikkleirefare. Overvann håndteres lokalt med infiltrasjonsløsninger og drenering. Eiendommen er regulert, og tiltaket har avkjørselstillatelse og tilknytning til offentlig vann og avløp. Det er varslet naboer og mottatt en merknad som er vurdert. Prosjektet har ansvarlige foretak for prosjektering, geoteknikk og overvannshåndtering.

Produkter og materialer

Tak Saltak

🧱 Takstein eller tilsvarende

Antall: 1

Valmet saltak med takvinkel 24 grader

Tak med valmet saltak i klassisk stil

VVS Drenering og overvannshåndtering

🧱 Drensrør, infiltrasjonsanlegg, sluk

Drensledning rundt bolig, infiltrasjonsmagasin, slukløsninger for overvann, taknedløp med infiltrasjon

System for håndtering av overvann og drenering på tomten

Fasade Trepanel

🧱 Tre

Antall: 1

Trepanel på alle fasader

Trepanel som fasademateriale

Betong Sålefundament og ringmur

🧱 Betong

Betongfundamenter med bredde ca. 0,5 m på pukkfundament

Betongfundamenter for bæring av bolig

Elektro Ventilasjonssystem

Ventilasjonskanaler i bolig, inkludert ventilasjonskanalkasse

Ventilasjon for bolig

Terrasse Støpt platting

🧱 Betong

Antall: 1

Støpt platting foran bolig

Uteplass i betong foran bolig

Vinduer Fasadevindu

🧱 Tre med 3-lags energiglass

Antall: 11

Vinduer i stue/kjøkken og soverom, inkludert 6 vinduer på sørfasade og 3 på vestfasade

Fasadevindu i tre med energiglass for naturlig lys og isolasjon

Grunnarbeid Fundamentering på undersprengt fjell

🧱 Pukk, fiberduk, geonett

Direktefundamentering på pukkfundament på undersprengt fjell, med komprimering og kontroll av PRO geoteknikk

Grunnarbeid med utgraving, komprimering og fundamentering på fjell

Trapper Innvendig trapp

🧱 Tre eller betong

Antall: 1

Innvendig trapp mellom etasjer

Trapp i bolig for etasjeadkomst

Dører Ytterdør og garasjeport

🧱 Tre ytterdør, garasjeport i tre eller metall

Antall: 4

1 ytterdør, 1 dør til sportsbod, 1 dør til vaskerom, 1 garasjeport

Ytterdører og garasjeport tilpasset bolig og garasje

Garasjeport Port til integrert garasje

🧱 Tre eller metall

Antall: 1

Garasjeport til integrert garasje på 32,2 m²

Port for biladkomst til garasje

Gulv Betongdekke og parkett

🧱 Betong i underetasje, eikeparkett i oppholdsrom

Betongdekke i underetasje, parkett i stue og soverom

Gulv i bolig med betong og parkett

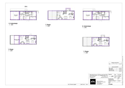
Plantegning

Bolig med garasje 106.1 m²

Etasje 0 106.1 m²

Rom Areal Vinduer Dører
garasje 007 27.2 m² 0 1
sportsbod 013 5.0 m² 0 1
sov 1 001 9.8 m² 1 1
bad 006 6.9 m² 0 1
tv-stue 002 16.2 m² 1 2
vaskerom 005 3.9 m² 0 1
sov 3 004 9.1 m² 1 1
sov 2 003 8.9 m² 1 1

Enebolig 207.1 m²

Etasje 0 93.7 m²

Rom Areal Vinduer Dører
Garasje BRA garasje 32.2 m² 0 1
Bod BRA Underetasje 61.5 m² 0 1

Etasje 1 113.4 m²

Rom Areal Vinduer Dører
Gang BRA AOA 1.etasje 18.1 m² 0 1
Stue BRA 1. Etasje 62.9 m² 3 2
Stue/kjøkken 101 49.0 m² 3 2
Gang 102 7.0 m² 0 2
WC 103 2.2 m² 0 1
Trapp 104 3.4 m² 0 0

Fasader

Bolig med garasje

Sør
Materiale
Tre
Taktype
Saltak
Høyde
2.4 m
Mønehøyde
8.2 m
Vinduer
6
Dører
1
Balkonger
1
Synlige etasjer
2
Øst
Materiale
Tre
Taktype
Saltak
Høyde
2.4 m
Mønehøyde
8.2 m
Vinduer
3
Dører
0
Synlige etasjer
2

Enebolig

Nord
Materiale
Tre
Taktype
Saltak
Vinduer
2
Dører
1
Balkonger
1
Synlige etasjer
1
Vest
Materiale
Tre
Taktype
Saltak
Vinduer
3
Dører
1
Balkonger
1
Synlige etasjer
2

Hendelser

09.04.2026 Furubakken 51, tilbakemelding om mottatt informasjon
24.03.2026 Furubakken 51, ønsker oppdatering på status i saken
13.02.2026 Furubakken 51, vi trenger flere opplysninger for å behandle søknaden din
28.01.2026 Furubakken 51 Supplering av søknad 245/376
26.01.2026 Furubakken 51, vi vurderer å avslå søknaden
19.01.2026 Furubakken 51 Supplering av søknad 245/376
14.11.2025 Furubakken 51 Søknad om rammetillatelse 245/376