NewConstruction Rammetillatelse Enebolig

Ny enebolig med to garasjer på Furubakken 9B, Hvalstad

📍 Furubakken 9B , 1395 HVALSTAD

Nøkkelinfo

Sakstype
Nybygg
Bygningstype
Enebolig
Bruksareal
239 m²
Boenheter
2
Kommune
Asker
Fylke
Akershus
Gnr / Bnr
34 / 205
Saksnummer
25/4294
Fase
Rammetillatelse

Om byggesaken

Ny enebolig over to etasjer med integrert sekundær boenhet (hybel) i hovedetasjen på Furubakken 9B, Hvalstad. Boligen har et bebygd areal på 139,2 m² og et bruksareal på 238,6 m², med 5 soverom, 3 bad, stuer, kjøkken, sportsbod/vaskerom og toalettrom. Det bygges også to enkle garasjer på 20 m² hver med takform som boligen. Boligen har pulttak uten takutstikk, liggende trekledning og stålpipe. Tomten er på 732,7 m² med 69,9 % grøntareal, og bebyggelsen utnytter 24,5 % av tomten. Overvann håndteres lokalt med regnbed og vadi, og det er etablert nødvendig avstand til kommunal vannledning. Eiendommen ligger i et etablert boligområde med varierende byggestil, og tiltaket er tilpasset området med moderne uttrykk og god terrengtilpasning. Det foreligger godkjent dispensasjon fra plankravet i kommuneplanen, og Bane NOR har ingen innvendinger til tiltaket.

Produkter og materialer

Gulv Innvendige gulvflater

🧱 Flis og eikeparkett

Flis i våtrom, eikeparkett i øvrige rom

Innvendige gulvflater i bolig

Grunnarbeid Drenering og overvannshåndtering

Regnbed på minimum 24 m², vadi, avskjærende grøft, drenskum med infiltrasjon på tomtens lavside

Overvannshåndtering på tomt

Grunnarbeid Graving, oppfylling og komprimering

Graving for byggegrop, adkomst og utomhusanlegg, inkl. drenering

Grunnarbeid for bolig og garasjer

Bad Bad og toalettrom

Antall: 3

Flislagte bad, membran, sanitærutstyr

Bad og toalettrom i bolig

Ventilasjon Ventilasjonsanlegg

Ventilasjonskasse i bolig

Ventilasjon i bolig

Fasade Liggende trekledning

🧱 Tre

Liggende trekledning på alle fasader

Fasadebekledning på eneboligen

Terrasse Veranda

🧱 Tre

Antall: 1

Veranda med rekkverk, utgang fra stue

Utendørs veranda på bolig

Tak Pulttak med flatt tak

🧱 Taktekking ikke spesifisert, stålpipe

Antall: 1

Flatt pulttak uten takutstikk, stålpipe montert

Tak på eneboligen

Tømrer Tømrerarbeid for bolig og garasjer

🧱 Tre

Alt tømrerarbeid inkl. montering av ventilasjon og trekonstruksjoner for garasjer

Tømrerarbeid for bolig og garasjer

Betong Plasstøpte betongkonstruksjoner inkl. radonløsning

🧱 Betong

Fundamenter og grunnmur, radonsperre

Betongarbeid for bolig og garasjer

Elektro Sikringsskap og elektriske installasjoner

Sikringsskap i bolig, utvendig el-skap

Elektriske installasjoner i bolig og uteområder

Pipe Stålpipe

🧱 Stål

Antall: 1

Stålpipe montert på bolig med pulttak

Pipe for ildsted i bolig

Dører Ytterdører og terrassedører

🧱 Tre

Antall: 6

Inkluderer dører til inngang, hybel og utgang til hage

Ytterdører og terrassedører i eneboligen

VVS Innvendig og utvendig sanitær- og VA-anlegg

Inkluderer vannmåler, tilkobling til kommunalt nett, spillvann, overvannshåndtering

VVS-installasjoner for bolig og utomhus

Isolasjon Isolasjon i vegger og tak

Isolasjon iht. TEK17 krav

Isolasjon i bolig

Rekkverk Rekkverk på veranda og trapper

🧱 Tre eller metall

Rekkverk iht. forskriftskrav

Rekkverk på veranda og trapper

Garasjeport Garasjeport til enkelgarasjer

Antall: 2

Garasjeporter til to enkeltgarasjer, underordnet boligens takform

Garasjeporter til to garasjer på 20 m² hver

Vinduer Toppsving, fastkarm og sidehengslet vinduer

🧱 Tre med 3-lags energiglass

Antall: 14

TS - Toppsving, FK - Fastkarm, SH - Sidehengslet, støydempende, gass- og røyktett

Vinduer i eneboligen, varierende størrelser, totalt 14 stk

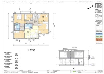
Plantegning

Enebolig 114.5 m²

Etasje 2 114.5 m²

Rom Areal Vinduer Dører
Sov2 Sov2 15.4 m² 1 1
Sov1 Sov1 7.8 m² 1 1
Sov4 Sov4 15.0 m² 1 1
Sov5 Sov5 15.3 m² 1 1
Sov3 Sov3 11.7 m² 1 1
Bad3 Bad3 5.5 m² 0 1
Bad2 Bad2 5.7 m² 0 1
Omkledning Omkledning 4.4 m² 0 1
Stue2 Stue2 21.4 m² 2 1
Gang2 Gang2 8.2 m² 0 1

Fasader

Enebolig

Nord-Vest
Materiale
Tre
Taktype
Flatt tak
Høyde
6.8 m
Mønehøyde
8.5 m
Vinduer
4
Dører
2
Synlige etasjer
2
Nord-Øst
Materiale
Tre
Taktype
Flatt tak
Høyde
6.8 m
Mønehøyde
8.5 m
Vinduer
3
Dører
1
Synlige etasjer
2
Sør-Øst
Materiale
Tre
Taktype
Flatt tak
Høyde
6.8 m
Mønehøyde
8.5 m
Vinduer
4
Dører
1
Synlige etasjer
2
Sør-Vest
Materiale
Tre
Taktype
Flatt tak
Høyde
6.8 m
Mønehøyde
8.5 m
Vinduer
3
Dører
1
Synlige etasjer
2

Hendelser

21.04.2026 34/205 Furubakken 9B - Godkjent dispensasjon og tillatelse til tiltak i ett trinn for nybygg enebolig og to enkeltgarasjer
17.04.2026 34/205 Furubakken 9B - Uttalelse til byggesak
25.03.2026 34/205 Furubakken 9B - Spørsmål om uttalelse fra Bane NOR har innkommet
16.03.2026 34/205 Furubakken 9B - Ber Bane NOR om uttalelse til byggesak - Nybygg enebolig og to garasjer
16.03.2026 34/205Furubakken 9B - Supplering av søknad
13.03.2026 34/205 Furubakken 9B - Krever uttalelse fra BANE NOR / tillatelse fra jernbaneloven § 10 - Nybygg enebolig og to enkelt-garasjer
12.03.2026 34/205 Furubakken 9B - Supplering av søknad
18.02.2026 34/205 Furubakken 9B - Ufullstendig søknad om nybygg enebolig og to enkelgarasjer
16.12.2025 34/205 Furubakken 9B - Søknad om tillatelse i ett trinn - Nybygg enebolig og to enkelgarasjer