NewConstruction UnderBehandling Enebolig

Ny enebolig med garasje og svømmebasseng i Grandeveien 16

📍 Grandeveien 16A , 1443 DRØBAK

Nøkkelinfo

Sakstype
Nybygg
Bygningstype
Enebolig
Bruksareal
442 m²
Boenheter
1
Kommune
Frogn
Fylke
Akershus
Gnr / Bnr
86 / 949
Saksnummer
26/00291
Fase
Under behandling

Om byggesaken

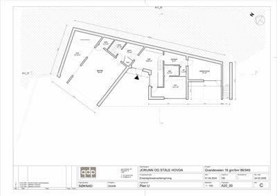
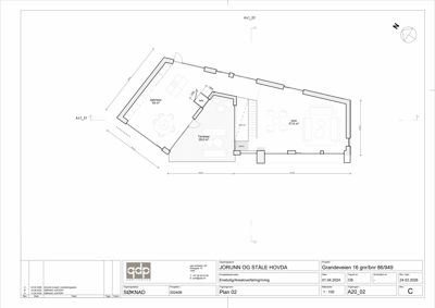
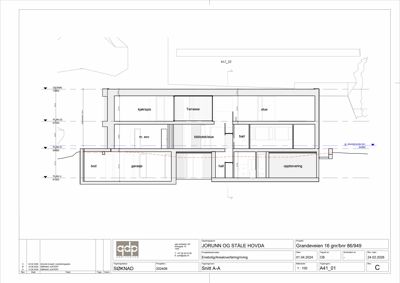
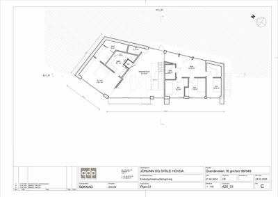
Ny enebolig på totalt 442,5 m² BRA fordelt på fire etasjer, inkludert underetasje, hovedetasje, andre og tredje etasje. Boligen har en smal form i midten for å ivareta et stort hult eiketre på naboeiendommen, med gesimshøyde på 5,9 meter og saltak med trepanel på fasadene. Underetasjen inneholder garasje på ca. 79,8 m², bod, teknisk rom, vaskerom og spa/bad. Hovedetasjen og øvrige etasjer har flere soverom, bad, stuer, kjøkken, bibliotek, heis og terrasse på 28,6 m². Bygget fundamenteres på fjell for å unngå skade på treets rotsone, og det er planlagt tiltak for sikring av treet under anleggsfasen. Fasader er i tre med mange vinduer og flere dører, og det er planlagt to trapper i bygget. Det er også et svømmebasseng tilknyttet prosjektet.

Produkter og materialer

Ventilasjon Mekanisk ventilasjon

Ventilasjonsanlegg for bolig med varmegjenvinning.

Fasade Trepanel

🧱 tre

Trepanel på alle fasader

Fasader kledd med trepanel.

Trapper Innvendige trapper

Antall: 2

To innvendige trapper i boligen for forbindelse mellom etasjer.

Vinduer Fasadevindu

🧱 tre

Antall: 39

Fasadevindu i tre, fordelt på flere etasjer og fasader, inkludert store vindusflater i stuer og soverom.

Annet Marksikringsgjerde

Antall: 1

Fysisk gjerde rundt hensynssone for hult eiketre, låsbart og festet i bakken.

Gjerde for sikring av hult eiketre under byggearbeid.

Grunnarbeid Fundamentering på fjell og rotvennlig bærelag

Fundamentering på fjell for å unngå skade på rotsone til hult eiketre, oppbygging av rotvennlig bærelag i innkjørsel.

Grunnarbeid med sikring av rotsone for hult eiketre, inkludert bærelag og skånsom graving.

Garasjeport Garasjeport til underetasje

Antall: 1

Garasjeport til garasje under terreng på ca. 79,8 m².

Tak Saltak med sedumtak

🧱 tre og sedum

Antall: 1

Saltak med sedumtak på deler av bygget

Saltak i tre med sedumtak som taktekking.

Dører Ytterdører og terrassedører

🧱 tre

Antall: 22

Ytterdører og terrassedører i tre, inkludert dører til terrasse og inngangspartier.

VVS Svømmebasseng og spa/bad

Antall: 1

Svømmebasseng og spa/bad i boligen.

Gulv Parkett og fliser

Innvendige gulv i parkett og fliser i våtrom.

Isolasjon Bygningsisolasjon

Isolasjon i vegger, tak og gulv for energikrav og komfort.

Elektro Heisinstallasjon

Antall: 1

Heis i boligen for etasjeadkomst.

Maling Innvendig og utvendig maling

Maling av innvendige og utvendige flater i treverk og vegger.

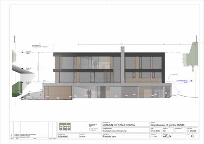
Fasader

Enebolig

Sør
Materiale
Tre
Taktype
Saltak
Høyde
6.5 m
Vinduer
5
Dører
1
Synlige etasjer
2
Nord
Materiale
Tre
Taktype
Saltak
Høyde
3.3 m
Vinduer
4
Dører
1
Synlige etasjer
2
Vest
Materiale
Tre
Høyde
5.9 m
Vinduer
10
Dører
2
Balkonger
1
Synlige etasjer
3
Øst
Materiale
Tre
Høyde
3.5 m
Vinduer
10
Dører
2
Synlige etasjer
2

Hendelser

16.04.2026 26/00291-10 Regelbrudd i skolereglementet
14.04.2026 26/00291-4 Komplettering av søknad - 86/949/0/0 - Grandeveien 16 A - dispensasjon - nytt bygg - enebolig med garasje - svømmebasseng
08.04.2026 26/00291-9 Tilskudd til kommunalt forebyggings­program for barn og unge - søknadsfrist 22. april 2026
27.03.2026 26/00291-8 Informasjon om mulighet for å søke om tilskudd til innkjøp av fysiske læremidler og digitale læremidler for elever med dysleksi eller lesevansker, skoleåret 2026/2027
25.03.2026 26/00291-7 Informasjon - studiepermisjon for videreutdanning i samisk 2026/2027
11.03.2026 26/00291-6 Obligatorisk arbeidslivsfag på 8. til 10. trinn
06.03.2026 26/00291-5 Invitasjon til prosjektet Kommunen i bevegelse
26.02.2026 26/00291-3 Komplettering av søknad - 86/949/0/0 - Grandeveien 16 A - dispensasjon - nytt bygg - enebolig med garasje - svømmebasseng
05.02.2026 26/00291-2 Behov for komplettering og avklaring - 86/949/0/0 - Grandeveien 16 A - dispensasjon - nytt bygg - enebolig med garasje - svømmebasseng
09.01.2026 26/00291-1 Trygge digitale læringsmiljø i skolen