NewConstruction Rammetillatelse Enebolig

Ny enebolig med carport på Grunnavågen 22, Bømlo

📍 Grunnavågen 22 , 5440 MOSTERHAMN

Nøkkelinfo

Sakstype
Nybygg
Bygningstype
Enebolig
Bruksareal
142 m²
Boenheter
1
Kommune
Bømlo
Fylke
Vestland
Gnr / Bnr
17 / 141
Saksnummer
2024/4129
Fase
Rammetillatelse

Om byggesaken

Ny enebolig i to etasjer med totalt 142,5 m² BRA, inkludert carport på 24,7 m² og sportsbod på 6,5 m². Boligen har saltak og trekledning med mørk grå/svart farge, og inneholder blant annet stue/kjøkken på 37,3 m², to soverom, to bad, vaskerom/teknisk rom, kontor, entré, gang med trapp og terrasse på 33,8 m². Bygget har 3-lags isolerglassvinduer, yttervegger med 150 mm + 50 mm mineralull, og fundamentert med ringmur og plate på mark. Det er pipe og garasjeport. Ventilasjon og våtrom er prosjektert og kontrollert. Bygget er plassert i henhold til reguleringsplan med godkjent avkjørsel og tilknytning til offentlig vann og avløp.

Produkter og materialer

Rekkverk rekkverk til trapp og terrasse

Rekkverk 0,9 m og 1 m høyde med håndløper på begge sider

Sikkerhetsrekkverk for trapp og terrasse

Dører ytterdører og innerdører

🧱 tre, farge NCS S 8500-N

Antall: 11

Ytterdør i glass på sørfasade, øvrige dører i bolig og sportsbod

Dører tilpasset bolig og sportsbod, inkludert terrassedør

Elektro elektriske installasjoner

Elektriske installasjoner prosjektert og utført iht gjeldende forskrifter

El-installasjoner i bolig

Vinduer 3-lags isolerglassvinduer

🧱 tre med NCS S 8500-N farge

Antall: 14

U-verdi 1,0 W/(m²K), inkludert takvindu Velux FK06 (antatt fra dokumenttekst)

Vinduer i bolig med god isolasjonsevne og mørk grå/svart farge på karmene

Fasade trekledning

🧱 tre, malt i NCS S 8500-N

Antall: 1

Trekledning i mørk grå/svart farge, beslag og blekk i samme farge

Utvendig kledning og beslag for fasade og vindusomramming

Isolasjon mineralull isolasjon

🧱 mineralull klasse 34

150 mm + 50 mm i yttervegger, 300 mm i himling mot kaldt loft

Isolasjon for vegger og tak for energieffektiv bolig

Betong plate på mark

🧱 betong

Antall: 1

Støpt plate på mark med isolasjon og fundamentering

Betongplate som bærende gulv for bolig

VVS vann og avløp, ventilasjon

Tilkopling til offentlig vann og avløp, ventilasjon iht TEK17, kontrollert av VVS Bømlo AS

VVS-installasjoner for bolig, inkludert vann, avløp og ventilasjon

Tak saltak med taktekking

🧱 ukjent, antatt takstein eller metall

Antall: 1

Saltak med mørk grå/svart farge, takhøyde ca. 7,3 m møne

Tak med isolasjon og ventilasjon iht TEK17

Gulv innvendige gulv

Gulv med isolasjon og overflate tilpasset boligstandard

Innvendige gulv i bolig

Garasjeport garasjeport til carport

Antall: 1

Garasjeport på carport med 24,7 m² areal

Port for carport tilknyttet bolig

Grunnarbeid ringmur og plate på mark

🧱 betong, Jackon Thermomur under terreng

Antall: 1

Ringmur og plate med 250 mm trykkfast isolasjon klasse 38

Fundamentering av bolig med isolert plate på mark og ringmur

Trapper innvendig trapp

Antall: 1

Innvendig trapp mellom etasjer i bolig

Trapp i bolig for etasjeadkomst

Terrasse terrasse på bakkeplan

Antall: 1

Terrasse på 33,8 m² tilknyttet bolig

Utendørs terrasseareal for bolig

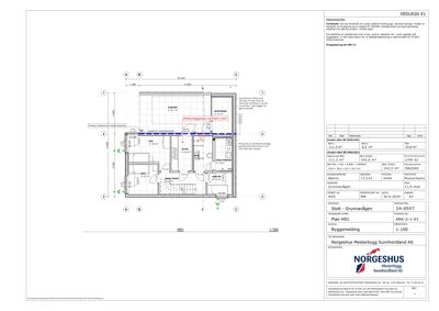
Plantegning

Enebolig 142.5 m²

Etasje 0 142.5 m²

Rom Areal Vinduer Dører
STUE/KJØKKEN H02 37.3 m² 2 1
SOV S01 12.6 m² 1 1
BAD B01 4.5 m² 0 1
TERRASSE T01 33.8 m² 0 1
Carport CARPORT 24.7 m² 0 0
Sportsbod SPORTSBOD 6.5 m² 1 1
Sov rom SOV 10.9 m² 2 1
Entré ENTRE 6.6 m² 0 1
Bad BAD 5.0 m² 0 1
Vaskerom / Teknisk rom VASK/TEKNISK 5.0 m² 0 1
Gang / Trapp GANG/TRAPP 9.9 m² 0 2
Kontor KONTOR 4.9 m² 1 1

Fasader

Enebolig

Nord
Materiale
Tre
Taktype
Saltak
Vinduer
2
Dører
0
Synlige etasjer
1
Vest
Materiale
Tre
Taktype
Saltak
Vinduer
3
Dører
0
Balkonger
1
Synlige etasjer
2
Sør
Materiale
Tre
Taktype
Saltak
Vinduer
4
Dører
1
Synlige etasjer
2
Øst
Materiale
Tre
Vinduer
1
Dører
1
Synlige etasjer
1

Hendelser

15.04.2026 Innmålingsdata 17/241
13.04.2026 Innmålingsdata 17/141
04.09.2024 Godkjent - Ett-trinns søknad - einebustad - 17/141 - Grunnavågen 22
03.09.2024 tegninger 17-141
16.08.2024 Stadfesting på mottatt søknad - Nytt bygg - bustadføremål - 17/141
14.08.2024 Eitt-trinns søknad - Nytt bygg - bustadføremål - 17/141 - Grunnavågen 22