NewConstruction Rammetillatelse Enebolig

Ny enebolig og dobbel garasje i Hafellveien 9, Råde

📍 Hafellveien 9 , 1643 RÅDE

Nøkkelinfo

Sakstype
Nybygg
Bygningstype
Enebolig
Bruksareal
187 m²
Boenheter
1
Kommune
Råde
Fylke
Østfold
Gnr / Bnr
100 / 30
Saksnummer
2026/4359
Fase
Rammetillatelse

Om byggesaken

Ny enebolig i én etasje på ca. 141,5 m² BRA med saltak teglstein og trekledning, inneholdende gang, bad, stue, kjøkken, bod, to soverom, hobbyrom, vaskerom/teknisk rom og WC. Bygget har pipe og mønehøyde på 5,1-6,5 meter. Dobbel garasje på 45,1 m² med saltak og tilhørende gårdsplass for parkering. Tomten er på ca. 984 m² med opparbeidet uteareal, markterrasse og lokal overvannshåndtering via regnbed. Bygget er plassert i henhold til reguleringsplan med godkjent utnyttelsesgrad på 21,8 % BYA. Prosjektet inkluderer grunnarbeider, mur- og betongarbeider, flis- og membranarbeider, VVS, og uavhengig kontroll av våtrom og lufttetthet.

Produkter og materialer

Terrasse Markterrasse

Opparbeidet markterrasse på tomt

Terrasse for uteopphold

Flis Flis og membranarbeider

Flislegging og membranarbeider utført av Jan E Fjeld Flis og Mur AS

Flis og membranarbeider i våtrom

Tak Saltak med teglstein

🧱 Teglstein

Antall: 2

Saltak teglstein på enebolig og dobbel garasje

Taktekking med teglstein på enebolig og dobbel garasje

Garasjeport Dobbel garasjeport

Antall: 1

Dobbel garasjeport til garasje på 45,1 m²

Garasjeport for dobbel garasje

Vinduer Fasadevindu

🧱 Tre

Antall: 8

Fasadevindu i trekarm, fordelt på fasader nord, øst, sør og vest

Vinduer i trekarm for enebolig, totalt 8 stk fordelt på alle fasader

Dører Ytterdør

🧱 Tre

Antall: 3

Ytterdører i tre, plassert på øst, sør og vest fasade

Ytterdører i tre til enebolig, 3 stk

Grunnarbeid Sprengning og grunnarbeid

Sprengning og grunnarbeid på tomt, utført av Dillerud Anlegg AS

Grunnarbeid og sprengning for fundamentering av bolig og garasje

Fasade Trekledning

🧱 Tre

Trekledning på alle fasader av enebolig

Trekledning som ytterkledning på eneboligen

VVS Rørleggerarbeider og innvendig VA

Rørleggerarbeider og innvendig VA utført av Storm VVS AS

VVS-installasjoner i bolig

Ventilasjon Lufttetthet og våtromskontroll

Uavhengig kontroll av våtrom og lufttetthet av Aktiva Takst AS

Kontroll av ventilasjon og tetthet i våtrom

Overflate Innvendige gulv og overflater

Gulv med mindre avvik i høyde, justert til 49,9 kote for bedre terrengtilpasning

Innvendige gulv i bolig

Betong Fundament og ringmur

🧱 Betong

Fundamentering og ringmur for bolig og garasje

Betongarbeider for fundament og ringmur

Mur Murarbeider

Murarbeider utført av EG Murservice AS

Murarbeider i prosjektet

Grunnarbeid Overvannshåndtering

Lokal overvannshåndtering med regnbed og infiltrasjon på egen tomt

Overvannshåndtering i henhold til LOD-prinsipper

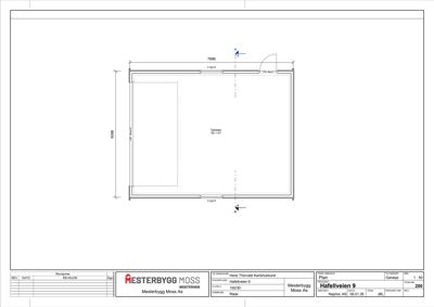
Plantegning

Garasje 45.1 m²

Etasje 1 45.1 m²

Rom Areal Vinduer Dører
Garasje 45.1 m² 0 0
Garasje Garasje 45.1 m² 0 0

Fasader

Enebolig

Nord
Materiale
Tre
Taktype
Saltak
Takmat.
Tegl
Høyde
3.2 m
Mønehøyde
5.1 m
Vinduer
1
Dører
0
Synlige etasjer
1
Øst
Materiale
Tre
Taktype
Saltak
Takmat.
Tegl
Vinduer
3
Dører
1
Synlige etasjer
1
Sør
Materiale
Tre
Taktype
Saltak
Takmat.
Tegl
Høyde
4.9 m
Mønehøyde
6.5 m
Vinduer
2
Dører
1
Synlige etasjer
1
Vest
Materiale
Tre
Taktype
Saltak
Takmat.
Tegl
Høyde
4.9 m
Mønehøyde
6.5 m
Vinduer
2
Dører
1
Synlige etasjer
1

Hendelser

15.04.2026 Redegjørelse for mindre avvik – ferdig gulv - gnr 100 bnr 30 - Hafellveien 9
09.04.2026 Vedrørende byggetillatelse - gnr 100 bnr 30 - Hafellveien 9
09.04.2026 Svar på spørsmål om toleransegrenser - gnr. 100 bnr. 30 - Hafellveien 9
17.03.2026 Byggetillatelse - enebolig og dobbel garasje - gnr. 100 bnr. 30 - Hafellveien 9
12.03.2026 Svar på etterspørsel om tilleggsdokumentasjon - ny enebolig og garasje - gnr 100 bnr 90 - Hafellveien 9
10.03.2026 Etterspørsel om tilleggsdokumentasjon - ny enebolig og garasje - gnr. 100 bnr. 30 - Hafellveien 9
04.03.2026 Supplering Byggesak - Gnr 100 bnr 30 - Hafellveien 9
03.03.2026 Ettersendte tegninger - gnr 100 bnr 30 - Hafellveien 9
03.03.2026 Supplering av søknad - gnr 100 bnr 30 - Hafellveien 9
25.02.2026 Revidert situasjonsplan til byggesak - Gnr 100 bnr 30 - Hafellveien 9
26.01.2026 Søknad om tillatelse i ett trinn - gnr 100 bnr 30 - Hafellveien 9