NewConstruction UnderBehandling Enebolig

Ny enebolig med garasje på Hålandsosen 22, Erfjord

📍 Hålandsosen 22 , 4233 ERFJORD

Nøkkelinfo

Sakstype
Nybygg
Bygningstype
Enebolig
Bruksareal
276 m²
Boenheter
1
Kommune
Suldal
Fylke
Rogaland
Gnr / Bnr
167 / 26
Saksnummer
2026/89
Fase
Under behandling

Om byggesaken

Ny enebolig på 276 m² BRA fordelt på to etasjer bygges på eiendommen Hålandsosen 22. Boligen har saltak og trekledning, med en integrert garasje på 28,8 m². Første etasje inneholder garasje, bod, entre, gang/trapp, vaskerom og to soverom, mens andre etasje har kjøkken/stue, terrasse, åpent overbygg, soverom, gang/garderobe og bad. Det planlegges riving av eksisterende bolig og garasje. Ny bolig plasseres ca. 0,6 meter nærmere riksveg 13 enn dagens bygg, men uten å påvirke trafikksikkerhet eller frisikt. Det er krav om geoteknisk vurdering og vurdering av støy og uteareal iht. T-1442.

Produkter og materialer

Dører Ytterdører

🧱 Tre

Antall: 6

Ytterdører til bolig, bod, garasje og terrasse

Vinduer Takvindu

Antall: 1

Takvindu i åpent overbygg

Garasjeport Garasjeport

Antall: 1

Garasjeport til integrert garasje på 28,8 m²

Terrasse Åpen terrasse

Antall: 1

29,4 m² åpen terrasse

Åpen terrasse i andre etasje

Vinduer Fasadevindu

🧱 Tre/aluminium ramme

Antall: 16

Fasadevindu i ulike rom, totalt 16 stk fordelt på begge etasjer

Gulv Gulvbelegg og parkett

Gulvbelegg i våtrom og parkett i øvrige rom

Elektro Elektrisk anlegg

Elektrisk anlegg for bolig

VVS Sanitær og varmeinstallasjoner

VVS-installasjoner for bolig, inkludert bad og vaskerom

Terrasse Overbygget terrasse

Antall: 1

11,3 m² overbygget terrasse

Overbygget terrasse i andre etasje

Fasade Trekledning

🧱 Tre

Trekledning på alle fasader

Grunnarbeid Grunnarbeid for ny bolig

Geoteknisk vurdering kreves for grunnforhold og rasfare

Grunnarbeid med geoteknisk vurdering for trygg byggegrunn og rasfare

Isolasjon Isolasjon for vegger og tak

Isolasjon for å oppnå energikrav

Maling Utvendig og innvendig maling

Maling av trefasader og innvendige overflater

Bad Bad med sanitærutstyr

Antall: 1

Bad på 7,3 m² i andre etasje

Bad med nødvendig sanitærutstyr og fliser

Tak Saltak

🧱 Trekonstruksjon med takstein eller lignende

Saltak på bolig og garasje

Trapper Innvendig trapp

Antall: 1

Innvendig trapp mellom etasjer

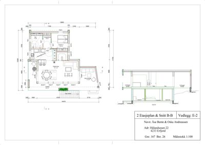
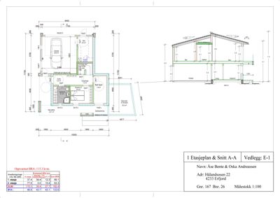
Plantegning

Enebolig 276.0 m²

Etasje 1 89.1 m²

Rom Areal Vinduer Dører
Garasje Garasje 28.8 m² 1 1
Bod Bod 8.4 m² 1 1
Entre Entre 5.6 m² 1 1
Gang/trapp Gang/trapp 7.2 m² 0 1
Bod/ Sport Bod/ Sport 7.8 m² 1 1
Soverom 2 Soverom 2 8.5 m² 1 1
Vaskerom Vaskerom 6.1 m² 1 1

Etasje 2 186.9 m²

Rom Areal Vinduer Dører
Kjøkken/stue 201 47.1 m² 4 1
Terrasse 202 29.4 m² 0 0
Åpent overbygg 203 11.3 m² 1 0
Soverom 1 204 12.0 m² 1 1
Gang/garderobe 205 4.9 m² 0 1
Bad 206 7.3 m² 0 1

Fasader

Enebolig

Sør
Materiale
Tre
Taktype
Saltak
Vinduer
6
Dører
1
Balkonger
1
Synlige etasjer
2
Øst
Materiale
Tre
Taktype
Saltak
Vinduer
3
Dører
1
Synlige etasjer
1
Nord
Materiale
Tre
Taktype
Saltak
Vinduer
1
Dører
1
Synlige etasjer
2

Hendelser

21.04.2026 Søknad om dispensasjon frå byggegrense mot veg - gnr 167 bnr 26
13.03.2026 Spørsmål om dispensasjon fra byggegrense mot rv. 13 gnr. 167 bnr. 26 - dykkar sak 26/89-2 26/1888
03.03.2026 Gnr 167 Bnr 26 - Svar på høyring - Dispensasjon frå byggegrense mot rv. 13 - Hålandsosen 22
30.01.2026 Oversender søknad om dispensasjon frå byggegrense mot veg til uttale - 167/26 - Hålandsosen
21.01.2026 Gnr 167 Bnr 26 Fnr - Søknad om dispensasjon frå byggegrense mot veg