NewConstruction UnderBehandling Enebolig

Ny enebolig med tilknytning i Handelandsvegen 98, Sandvoll

📍 Handelandsvegen 96 , 5452 SANDVOLL

Nøkkelinfo

Sakstype
Nybygg
Bygningstype
Enebolig
Bruksareal
145 m²
Boenheter
1
Kommune
Kvinnherad
Fylke
Vestland
Gnr / Bnr
183 / 31
Saksnummer
2026/1129
Fase
Under behandling

Om byggesaken

Ny enebolig på totalt 145,45 m² BRA fordelt på to etasjer bygges på Handelandsvegen 98 i Sandvoll. Boligen har en grunnflate på ca. 122 m² og inkluderer stue/kjøkken, soverom, bad, WC, kontor, teknisk rom i første etasje, samt to boder og gang i andre etasje. Bygget har trekledning og kombinasjon av saltak og flatt tak, med pipe på alle fasader. Det etableres ny tilknytning til offentlig vann- og avløpsnett med godkjent utslippstillatelse. Adkomst skjer via privat vei med godkjent utvidet bruk av avkjørsel fra fylkesvei. Byggetomten er på 6102 m² med lav utnyttelsesgrad på 2,59%. Skredfarevurdering er utført og området tilfredsstiller krav til sikkerhetsklasse S1 og S2. Prosjektet omfatter også grunnarbeider, betong, tømrerarbeid, rørleggerarbeid, innmåling og uavhengig kontroll.

Produkter og materialer

Fasade Trekledning

🧱 Tre

Trekledning på alle fasader.

Fasade med trekledning og kombinasjon av saltak og flatt tak.

Veier og adkomst Privat vei og avkjørsel

Privat vei med godkjent utvidet bruk av avkjørsel fra fylkesvei 548, inkl. krav til sikt og snuplass.

Adkomst via privat vei med godkjent avkjørsel.

Betong Fundament og betongarbeid

🧱 Betong

Betongarbeid for fundamentering og støttemurer utført av Ersland Forskaling AS.

Betongarbeid for fundament og støttemurer i boligprosjektet.

Tak Saltak og flatt tak

🧱 Tre og taktekking

Saltak på øst- og nordvestfasade, flatt tak på vest- og nordøstfasade

Kombinasjon av saltak og flatt tak med trekledning og pipe.

Elektro Elektriske installasjoner

Elektriske installasjoner i bolig, ansvarlig søker Øybygg AS.

Grunnarbeid Tomtearbeid og grunnarbeid

Grunnarbeid inkludert terrengplanering, drenering og fundamentering i henhold til skredfarevurdering og geoteknisk rapport.

Grunnarbeid for bolig på tomt med skredfarevurdering som dokumenterer sikkerhet mot skred.

VVS Rørleggerarbeid

Rørleggerarbeid inkludert tilknytning til offentlig vann- og avløpsnett, installasjon av slamavskiller og vannmåler, utført av Johansen Rør AS.

VVS-installasjoner for bolig med offentlig tilknytning og utslippstillatelse.

Gulv Innvendige gulv

Innvendige gulv i bolig, type og materiale ikke spesifisert.

Dører Ytterdører og innerdører

🧱 Tre

Antall: 11

Ytterdører og innerdører i tre, inkludert 2 dører i stue/kjøkken, 1 i soverom, 1 i bad, 1 i WC, 2 i gang, 1 i kontor, 1 i teknisk rom, og 3 i boder og gang i 2. etasje.

Vinduer Fasadevindu

🧱 Tre

Antall: 14

Fasadevinduer i tre fordelt på to etasjer, inkludert 4 i stue/kjøkken, 1 i soverom, 1 i kontor, 1 i bod 1, 2 i bod 2, og øvrige i gang og teknisk rom.

Pipe Murt pipe

🧱 Mur

Antall: 1

Pipe på alle fasader, tilknyttet bolig.

Ventilasjon Ventilasjonsanlegg

Ventilasjonsanlegg i bolig i henhold til TEK17 krav.

Tømrer Tømrerarbeid

🧱 Tre

Tømrerarbeid for bolig utført av Øybygg AS.

Tømrerarbeid for oppføring av bolig med trekledning og konstruksjoner.

Avløp Slamavskiller og utslipp

Antall: 1

3-kammer slamavskiller på 4 m³ med utslipp til kommunal sjøledning på 20 meters dyp.

Avløpsanlegg med slamavskiller og godkjent utslippstillatelse.

Bad Baderomsinnredning og våtrom

Bad og WC med våtromsstandard, uavhengig kontroll av våtrom utføres av Byggmester Kvernenes AS.

Innmåling og utstikking Oppmåling

Innmåling og utstikking utført av Byggservice AS.

Oppmålingsarbeid for plassering av bygg og tomtegrenser.

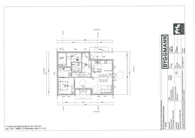
Plantegning

Enebolig 145.4 m²

Etasje 1 86.2 m²

Rom Areal Vinduer Dører
Stue / Kjøkken 101 39.6 m² 4 2
Soverom 102 11.8 m² 1 1
Bad 103 4.6 m² 0 1
WC 104 4.1 m² 0 1
Gang 105 11.9 m² 0 2
Kontor 106 1.6 m² 1 1
Teknisk 107 5.0 m² 0 1

Etasje 2 59.2 m²

Rom Areal Vinduer Dører
Bod 1 201 25.8 m² 1 1
Gang 202 7.3 m² 0 1
Bod 2 203 25.4 m² 2 1

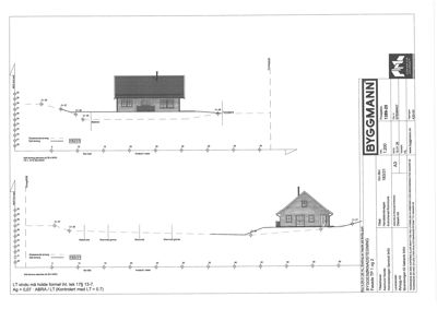
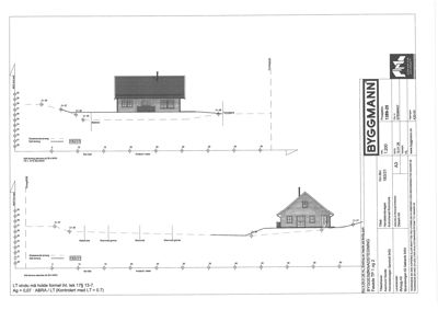
Fasader

Enebolig

Vest
Materiale
Tre
Taktype
Flatt tak
Vinduer
3
Dører
1
Synlige etasjer
1
Øst
Materiale
Tre
Taktype
Saltak
Vinduer
3
Dører
1
Synlige etasjer
1
Nord-Øst
Materiale
Tre
Taktype
Flatt tak
Høyde
26.4 m
Vinduer
4
Dører
1
Synlige etasjer
1
Nord-Vest
Materiale
Tre
Taktype
Saltak
Høyde
26.4 m
Vinduer
2
Dører
1
Synlige etasjer
1

Hendelser

13.04.2026 Løyve til tiltak - Nytt bygg – bustadformål - 183/31
10.04.2026 Godkjenning av søknad om utsleppsløyve - 183/31
26.03.2026 Svar på søknad om utvida bruk av avkjørsle frå fv. 548 - 183/31 Sandvoll
19.03.2026 Mangel ved søknad om utsleppsløyve - 183/31
27.02.2026 Godkjenning av søknad om ny tilknytning til offentleg vass- /avløpsanlegg - 183/31
26.02.2026 Supplering av søknad - 183/31
20.02.2026 Vedkjem avkøyrsel - 183/31
18.02.2026 Uttale - nytt bygg - 183/31
13.02.2026 Ber om vurdering- Einebustad - 183/31
13.02.2026 Mangelbrev - Eitt-trinns søknad - 183/31
04.02.2026 Stadfesting på mottatt søknad - Eitt-trinns søknad - 183/31
04.02.2026 Søknad om tiltak - Eitt-trinns - 183/31