NewConstruction UnderBehandling Enebolig

Riving og ny enebolig med sekundær boenhet i Hofstadåsen 19A, Asker

📍 Hofstadåsen 19A , 1384 ASKER

Nøkkelinfo

Sakstype
Nybygg
Bygningstype
Enebolig
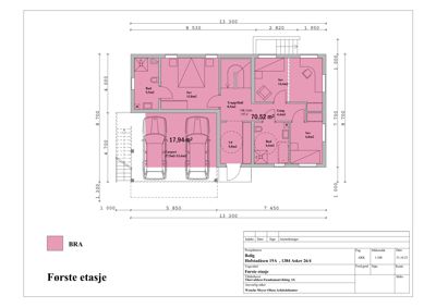
Bruksareal
225 m²
Boenheter
2
Kommune
Asker
Fylke
Akershus
Gnr / Bnr
26 / 4
Saksnummer
23/1609
Fase
Under behandling

Om byggesaken

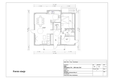
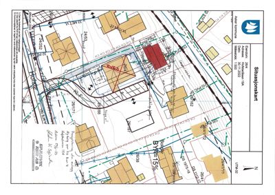
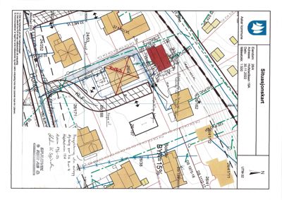
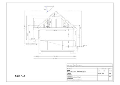
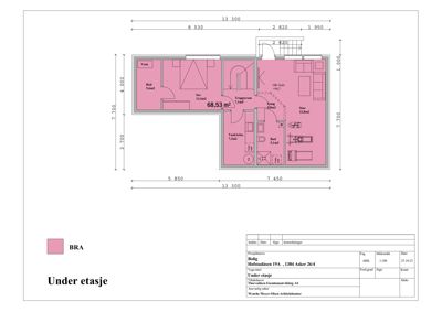
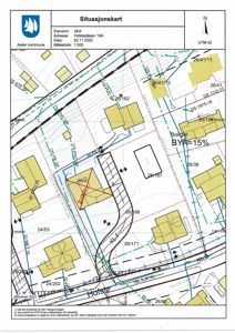
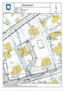
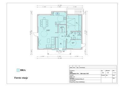
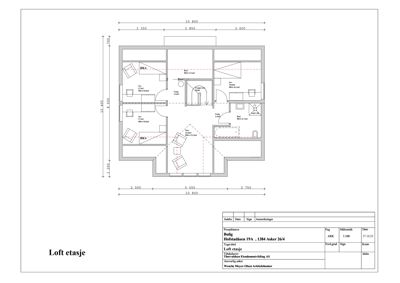
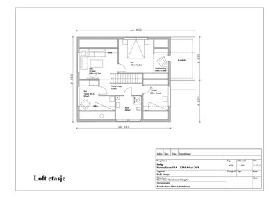
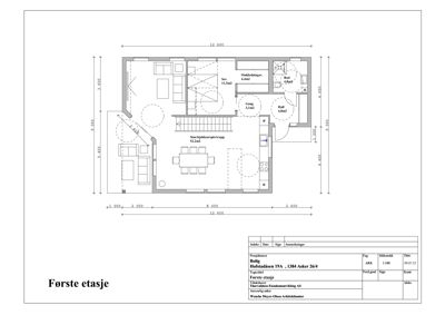
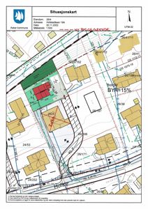
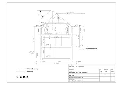
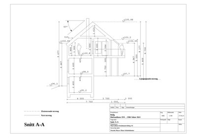
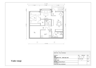
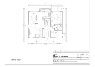
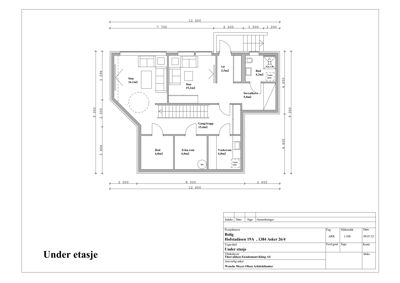
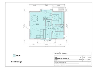
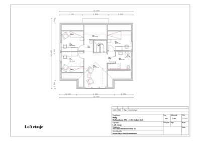
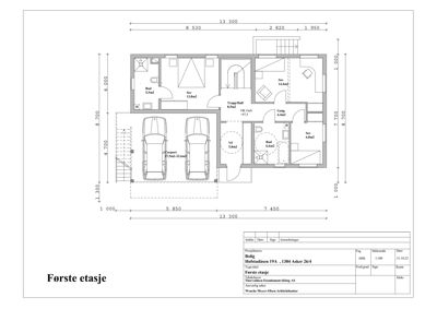
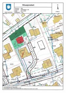
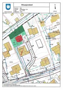
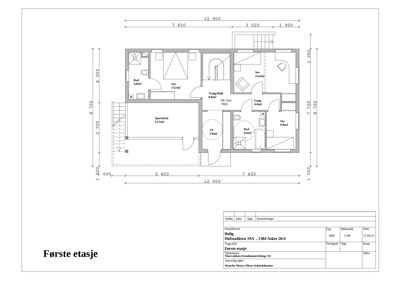
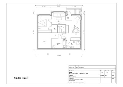
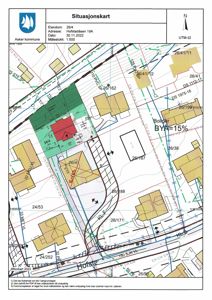
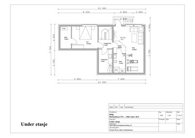
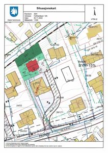
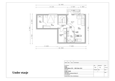
Ny enebolig på totalt 225,2 m² BRA fordelt på underetasje, første etasje og loftsetasje oppføres på Hofstadåsen 19A i Asker. Boligen har saltak med takstein, trepanel på fasader og tilpasset volum og høyder i tråd med reguleringsplan og kommuneplan. Det etableres sekundær boenhet i underetasjen med egen inngang, samt carport på 30,6 m². Tomten er på 703 m² etter deling, med byggegrense som ivaretar kantsonen mot bekk og hensyn til rødlistet piggsvin. Overvann håndteres lokalt med infiltrasjon og fordrøyning. Terrenginngrep er begrenset, og mer enn 60 % av tomten forblir uberørt. Boligen har 2 trapper, 14 vinduer og 6 dører, og det er planlagt sportsbod og garasje. Det foreligger rammetillatelse med vilkår, og igangsettingstillatelser for grunnarbeider og øvrige fagområder er søkt. Det er gjennomført miljøkartlegging med funn av asbest og andre miljøfarlige materialer som skal saneres av godkjente firmaer.

Produkter og materialer

Fasade Trepanel

🧱 Tre

Liggende og stående trepanel, tilpasset områdets karakter

Trepanel på fasader, tilpasset eksisterende bebyggelse

Maling Farlig avfall maling, lim, lakk

Farlig avfall fra maling, lim, lakk og kjemikalier under rivearbeid

Håndtering av farlig avfall fra maling og kjemikalier

Isolasjon Miljøsanering og asbestsanering

Sanering av asbestholdige materialer i veggfliser, vinylfliser, eternittplater, rørisolasjon, eternittkanaler, bakelittkomponenter, brannslange, pipeløp, sparkelmasse

Miljøsanering av asbest og andre miljøfarlige stoffer i eksisterende bygg før riving

Betong Fundamenter, såle og grunnmur

🧱 Betong

Betongfundamenter på sprengsteinsputer, ringmur, grunnmur

Betongarbeider for fundamenter og grunnmur

Terrasse Terrasseplatting i impregnert treverk

🧱 CCA-impregnert treverk

Antall: 13

Terrasseplatting ca 13-15 m² i CCA-impregnert treverk som skal leveres som farlig avfall

Terrasseplatting i impregnert treverk som skal fjernes og leveres som farlig avfall

Tak Saltak med takstein

🧱 Takstein

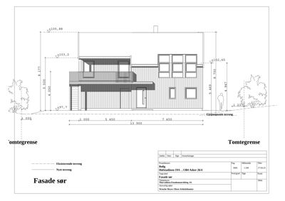
Saltak med takstein, takvinkel 22-40 grader, gesimshøyde 3,5-5,8 m, mønehøyde ca 7,9-8,7 m

Saltak med takstein til bolig og garasje

VVS Sanitærinstallasjoner

Innvendig og utvendig sanitæranlegg, rørleggerarbeider

Sanitærinstallasjoner for bolig

Ventilasjon Ventilasjonsanlegg

Ventilasjonsanlegg prosjektert og utføres av Flexit AS og Langsø Bygg

Ventilasjonsanlegg for bolig

Trapper Innvendige trapper

🧱 Tre

Antall: 2

To innvendige trapper i bolig, i underetasje og mellom etasjer

Innvendige trapper i tre mellom etasjer

Vinduer Isolerglassvindu

Antall: 21

Isolerglassvinduer fra 1965-1975 med PCB i fuger, nyere isolerglass med ftalater i fuger, koblede vinduer med kitt uten asbest

Vinduer i tre med isolerglass, ulike typer med miljøfarlige fugematerialer som krever spesiell håndtering ved riving

Garasjeport Dobbel garasje/carport

Antall: 1

Carport på 30,6 m² integrert i boligvolum

Carport for to biler

Grunnarbeid Grunnarbeider og oppmåling

Grunnarbeider med sprengstein, drenerende masser, fiberduk, oppmåling for ny tomt

Grunnarbeider for bolig og vei, inkludert drenering og oppmåling

Tømrer Tømrerarbeider og utvendig kledning

🧱 Tre

Tømrerarbeider for ny bolig, utvendig kledning i trepanel

Tømrerarbeider for oppføring av ny bolig

Dører Ytterdører og terrassedører

🧱 Tre

Antall: 7

Ytterdører i tre, inkludert utgangsdør mot vest, dører til carport og terrasser

Ytterdører i tre til bolig og carport

Gulv Vinyl og linoleumsbelegg

Vinyl gulvbelegg og linoleumsbelegg med ftalater, klorparafiner og tungmetaller, asbest i vinylfliser

Farlig avfall fra gulvbelegg som må saneres av godkjent firma

Elektro Elektriske installasjoner og EE-avfall

Alt elektrisk utstyr, kabler, lysarmaturer, sikringsskap, hvitevarer, batterier skal demonteres og leveres som EE-avfall

Demontering og håndtering av elektrisk og elektronisk avfall

Rekkverk Vindski og vannbord i impregnert treverk

🧱 CCA-impregnert treverk

Antall: 80

Vindski og vannbord ca 80 lm i CCA-impregnert treverk som skal leveres som farlig avfall

Vindski og vannbord i impregnert treverk som skal fjernes og leveres som farlig avfall

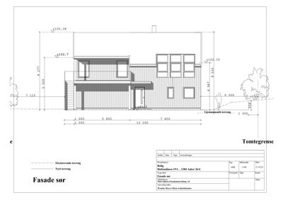
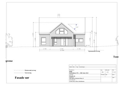
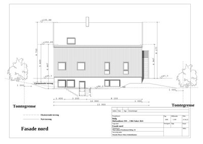
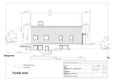
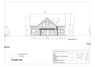
Fasader

Enebolig

Sør
Materiale
Tre
Taktype
Saltak
Høyde
3.5 m
Mønehøyde
7.9 m
Vinduer
5
Dører
2
Synlige etasjer
1
Nord
Materiale
Tre
Taktype
Saltak
Høyde
5.2 m
Mønehøyde
7.9 m
Vinduer
8
Dører
1
Synlige etasjer
2
Vest
Materiale
Tre
Taktype
Saltak
Høyde
5.8 m
Mønehøyde
8.7 m
Vinduer
4
Dører
1
Balkonger
1
Synlige etasjer
2
Øst
Materiale
Tre
Taktype
Saltak
Høyde
5.9 m
Mønehøyde
8.8 m
Vinduer
2
Dører
2
Synlige etasjer
2

Hovedbygg

Sør
Taktype
Saltak
Vinduer
5
Dører
1
Synlige etasjer
2

Hendelser

15.04.2026 26/4 Hofstadåsen 19A (bolig 1) - Søknad om igangsettingstillatelse 1 for deler av tiltaket - Grunnarbeider, betong, oppmåling og rørleggerarbeider
10.04.2026 26/4 Hofstadåsen 19A - Statsforvalterens melding om saksbehandlingstid i klagesak
30.03.2026 26/4 Hofstadåsen 19A - Søknad om igangsettingstillatelse
16.03.2026 26/4 Hofstadåsen 19A - Oversendelse av klage til Statsforvalter
19.02.2026 26/4 Hofstadåsen 19A - Kvittering på mottatt klage og vurdering av utsettende virkning
19.02.2026 26/4 Hofstadåsen 19A - Anmodning om uttalelse til klage
11.02.2026 26/4 Hofstadåsen 19A - Klage på rammetillatelse - anmodning om utsatt iverksetting
02.02.2026 26/4 Hofstadåsen 19A - Korrespondanse angående kommende saker på eiendommen - Vurdering av bestemmelser
25.01.2026 26/4 Hofstadåsen 19A - Rammetillatelse for riving og oppføring av enebolig
22.01.2026 26/4 Hofstadåsen 19A - Merknad til nabovarsel
21.01.2026 26/4 Hofstadåsen 19A - Ettersender informasjon om eksisterende bolig og bekreftelse fra panthaver
21.01.2026 26/4 Hofstadåsen 19A - Oversender generalfullmakt
21.01.2026 26/4 Hofstadåsen 19A - Ettersender informasjon til søknad og ny gjennomføringsplan
15.01.2026 26/4 Hofstadåsen 19A - Behov for tilbakemeldinger i sak
16.12.2025 26/4 Hofstadåsen 19A - Forespørsel om sak og saksbehandler
21.11.2025 26/4 Hofstadåsen 19A - Ber om status i saken
31.10.2025 26/4 Hofstadåsen 19A - Redegjørelse om piggsvin
29.10.2025 26/4 Hofstadåsen 19A - Endring av bolig
28.10.2025 26/4 Hofstadåsen 19A - Merknad til nabovarsel
17.10.2025 26/4 Hofstadåsen 19 - Utnyttelsesgrad 26/4
08.10.2025 26/4 Hofstadåsen 19 - Ber om tilbakemelding
10.09.2025 26/4 Hofstadåsen 19A - Svar på varsel om avslutning av byggesak - usatt frist
04.09.2025 26/4 Hofstadåsen 19A - Svar på varsel om avslutning av byggesak - ber om usatt frist
03.09.2025 26/4 Hofstadåsen 19A - Varsel om avslutning av byggesak
27.05.2025 26/4 Hofstadåsen 19A - Merknad til byggesak
21.02.2024 26/4 Hofstadåsen 19 - Sak legges i ro for komplettering - ark tak
29.01.2024 26/4 Hofstadåsen 19A - Uriktige opplysninger
18.01.2024 26/4 Hofstadåsen 19A - Omprosjektert tiltak
16.01.2024 26/4 Hofstadåsen 19A - Tilbakemelding
05.01.2024 26/4 Hofstadåsen 19 A - Varsel om avslag på søknad om dispensasjon
03.01.2024 26/4 Hofstadåsen 19A - Søknad om endring av tiltakshaver
28.12.2023 26/4 Hofstadåsen 19A - Tilbakemelding på varsel om avslag på søknad om dispensasjon
13.12.2023 26/4 Hofstadåsen 19A - Ber om utsettelse av frist for tilbakemelding
27.11.2023 26/4 Hofstadåsen 19A - Riving av eksisterende og nybygg bolig - Merknader til nabovarsel
27.11.2023 26/4 Hofstadåsen 19A - Søknad om dispensasjon
26.10.2023 26/4 Hofstadåsen 19A - Ber om utsettelse av frist for tilbakemelding - Riving av eksisterende og nybygg bolig
04.10.2023 26/4 Nabomerknad (kopi) - Riving av eksisterende og nybygg bolig
03.10.2023 26/4 Nabomerknad (kopi) - Riving av eksisterende og nybygg bolig
03.10.2023 26/4 Søknad om fristutsettelse - Riving av eksisterende og nybygg bolig
31.07.2023 26/4 Søknad om riving av eksisterende og nybygg bolig - Endrede forutsetninger i ny kommuneplan
31.07.2023 26/4 Informasjon - Riving av eksisterende og nybygg bolig
04.07.2023 26/4 Etterlyser svar på spørsmål fra ansvarlig søker - Riving av eksisterende og nybygg bolig
03.07.2023 26/4 Etterlyser svar på spørsmål fra ansvarlig søker
06.06.2023 26/4 Tilleggsmerknader - Riving av eksisterende og nybygg bolig
06.06.2023 26/4 Nabomerknader - Riving av eksisterende og nybygg bolig
05.06.2023 26/4 Kvitteringsbrev - Riving av eksisterende og nybygg bolig
05.06.2023 26/4 Søknad om riving av eksisterende og nybygg bolig
30.05.2023 26/4 Nabomerknader - Deling og arealoverføring Riving av eksisterende og nybygg bolig
26.05.2023 26/4 Ber om utsatt frist for innsending av ytterligere nabomerknader Riving av eksisterende og nybygg bolig