NewConstruction Unknown Enebolig

Ny enebolig med to plan i Høgliveien 55, Mysen

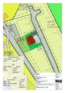
πŸ“ Høgliveien 55 , 1850 MYSEN

NΓΈkkelinfo

Sakstype
Nybygg
Bygningstype
Enebolig
Bruksareal
207 mΒ²
Boenheter
1
Kommune
Indre Østfold
Fylke
Østfold
Gnr / Bnr
156 / 293
Saksnummer
2025/6295
Fase
Unknown

Om byggesaken

Ny enebolig med to etasjer oppføres på tomt i Høgliveien 55, Mysen, med et samlet bruksareal på ca. 207 m² og bebygd areal på ca. 167 m². Boligen har rom som stue, kjøkken, kontor, bad, WC, flere soverom, walk-in garderober, bod og sportsbod. Bygget har saltak med maksimal gesimshøyde på 7 meter, og fasader tilpasses terrenget med grovplanert uteområde. Det etableres skorstein med vedovn, ventilasjonsanlegg, sanitærinstallasjoner og utvendig VA-anlegg. Tomten på ca. 850 m² har uteoppholdsareal, parkeringsplasser og felles renovasjonsanlegg. Bygget er prosjektert og utført av flere ansvarlige foretak med godkjent ansvarsrett, og midlertidig brukstillatelse er gitt med gjenstående utearealarbeider.

Produkter og materialer

Bad Bad og WC

Antall: 2

Bad og WC iht. plantegninger

Bad og WC med sanitærutstyr

Grunnarbeid Vei og grunnarbeider

Grunnarbeider og vei iht. prosjektering

Grunnarbeider og opparbeidelse av uteareal

Betong Fundamenter og plasstøpte konstruksjoner

🧱 Betong

Plasstøpte betongfundamenter og radonsperre

Fundamentering og grunnmur

Gulv Innvendige gulvflater

Innvendige gulvflater i bolig

Ventilasjon Ventilasjonsanlegg

Antall: 1

Ventilasjonsanlegg inkl. kanalføringer for boenheten

Ventilasjonsanlegg for bolig

VVS Varmeinnstallasjoner

Antall: 1

Vedovn med skorstein

Varmeinstallasjon med vedovn og skorstein

Vinduer Fasadevindu

Fasadevindu i boligen iht. fasadetegninger

Tømrer Trekonstruksjoner

🧱 Tre

Tømrerarbeider og montering av trekonstruksjoner

Bærekonstruksjon og innvendige trekonstruksjoner

Tak Saltak

Antall: 1

Maks gesimshøyde 7 meter, saltak iht. snitt og fasadetegninger

Saltak med takstoler og bjelkelag

VVS Sanitærinstallasjoner

Sanitærinstallasjoner i henhold til prosjektering

Vann og avløp, sanitærinstallasjoner

Fasade Kledning

Fasade med kledning tilpasset terreng og reguleringsplan

Renovasjon Felles renovasjonsanlegg

Felles renovasjonsanlegg med nedfelte avfallsdunker

Renovasjonsløsning for boligfeltet

Mur Utvendig VA-anlegg

Utvendig vann- og avløpsanlegg

VA-anlegg for tilknytning til offentlig nett

Terrasse Terrasse og uteoppholdsareal

Terrasse og uteoppholdsareal iht. situasjonsplan

Opparbeidelse av uteareal og terrasse

Dører Ytterdør og innerdører

Ytterdør og innerdører iht. planløsning og fasadetegninger

Hendelser

17.04.2026 Gbnr 156/293 - Høgliveien 55 - Enebolig - Midlertidig brukstillatelse
01.04.2026 Gbnr 156/293 - Høgliveien 55 - Tilleggsdokumentasjon
16.03.2026 Gbnr 156/293 - Høgliveien 55 - Enebolig - Søknad om midlertidig brukstillatelse
04.09.2025 Gbnr 156/293 - Høgliveien 55 - Enebolig - Svar angående faktura
04.09.2025 Gbnr 156/293 - Høgliveien 55 - Spørsmål vedrørende faktura - Oppføring av ny enebolig
26.08.2025 Gbnr 156/293 - Høgliveien 55 - Enebolig - Tillatelse til tiltak
04.08.2025 Gbnr 156/293 - Enebolig - Oversendelse av etterspurt dokumentasjon
16.07.2025 Gbnr 156/293 - Enebolig - Tilbakemelding om mangler
04.07.2025 Gbnr 156/293 - Søknad om oppføring av enebolig