NewConstruction UnderBehandling Enebolig

Ny enebolig med parkering på Hollund 26, Urangsvåg

📍 Hollund 26 , 5427 URANGSVÅG

Nøkkelinfo

Sakstype
Nybygg
Bygningstype
Enebolig
Bruksareal
151 m²
Boenheter
1
Kommune
Bømlo
Fylke
Vestland
Gnr / Bnr
89 / 51
Saksnummer
2025/6058
Fase
Under behandling

Om byggesaken

Ny enebolig på 151,25 m² BRA fordelt på to etasjer med flatt tak og funkisarkitektur, plassert på tomt på 2303,7 m² i Hollund 26, Urangsvåg. Boligen har 1 trapp, 10 rom inkludert stue (29 m²), kjøkken (14 m²), bad, vaskerom, bod, WC, kontor og soverom. Fasader i tre med stående kledning i mørke gråtoner og saltak. Det etableres 2 parkeringsplasser på terreng (36 m²) med tilknytning til eksisterende avkjørsel. Vann og avløp kobles til eksisterende anlegg på tomten. Bygget følger TEK17 og Norsk Standard, og er tilpasset terrenget og omkringliggende bebyggelse.

Produkter og materialer

Mur Fundament og grunnmur

Mur- og trekonstruksjon ansvarlig utførende Larsens Byggeservice AS

Fundament og grunnmur for bolig

VVS Innvendig rørinstallasjon og sanitæranlegg

Innvendig rørinstallasjon og utvendig kobling vann og avløp utført av TECA AS

VVS-installasjoner for bolig

Bad Bad og våtrom

Antall: 1

Bad på 8 m² med vindu, våtromsstandard iht TEK17

Bad med våtromsstandard

Grunnarbeid Tomtearbeid og fundamentering

Grunnarbeid og fundamentering for ny bolig på tomt 2303,7 m²

Grunnarbeid og fundamentering for bolig

Trapper Innvendig trapp

🧱 Ikke spesifisert

Antall: 1

Innvendig trapp i bolig, 1 stk

Innvendig trapp mellom etasjer

Vinduer Fasadevindu

🧱 Ikke spesifisert

Antall: 14

Vinduer i fasade, antall 14 fordelt på rom

Fasadevindu i trehus, antall 14 stk

Dører Ytterdører og innerdører

🧱 Ikke spesifisert

Antall: 11

Dører totalt 11 stk, inkludert inngangsdør og innerdører

Ytterdører og innerdører i bolig

Fasade Stående kledning i tre

🧱 Tre, mørke gråtoner

Fasader i tre med stående kledning, tilpasset terreng og omkringliggende bebyggelse

Yttervegger med stående trekledning i mørke gråtoner

Tak Saltak

🧱 Ikke spesifisert

Saltak på enebolig, arkitektur i funkisstil

Saltak på bolig med funkisarkitektur

Parkering Parkeringsplass på terreng

🧱 Grus

Antall: 2

2 parkeringsplasser på terreng på 36 m² med gruset plass

Parkeringsplasser på terreng med grusdekke

Tømrer Tømrerarbeid

Tømrerarbeid inkludert våtrom og ventilasjon utført av Larsens Byggeservice AS

Tømrerarbeid for bolig

Terrasse Terrasse på terreng

Antall: 1

Terrasse på 12,4 m² iht tegninger

Terrasse tilknyttet bolig

Gulv Gulvbelegg og overflater

Gulvbelegg og overflater ikke spesifisert, men nødvendig for bolig

Gulvbelegg og overflater i bolig

Elektro Elektroinstallasjoner

Elektroinstallasjoner ikke spesifisert, men nødvendig for bolig

Elektroinstallasjoner for bolig

Plantegning

Enebolig 151.2 m²

Etasje 1 151.2 m²

Rom Areal Vinduer Dører
Stue 101 29.0 m² 3 1
Kjøkken 102 14.0 m² 0 1
Bod 103 5.0 m² 0 1
WC 104 4.0 m² 0 1
Gang/Hall/Trapp 105 28.0 m² 0 3
Vaskerom 106 10.0 m² 1 1
Ulv. bod 107 7.0 m² 1 1
Soverom 108 17.0 m² 2 1
Kontor 109 7.0 m² 1 1
Bad 110 8.0 m² 1 1

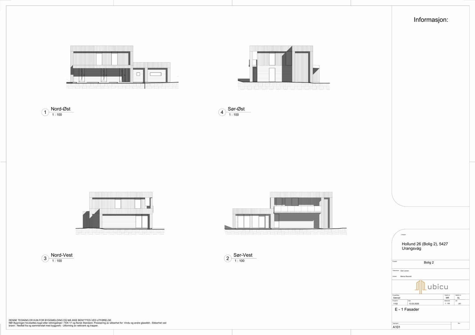
Fasader

Enebolig

Nord-Øst
Materiale
Tre
Taktype
Saltak
Vinduer
2
Dører
1
Synlige etasjer
2
Sør-Øst
Materiale
Tre
Taktype
Saltak
Vinduer
2
Dører
1
Synlige etasjer
2
Nord-Vest
Materiale
Tre
Taktype
Saltak
Vinduer
2
Dører
1
Synlige etasjer
2
Sør-Vest
Materiale
Tre
Taktype
Saltak
Vinduer
2
Dører
1
Synlige etasjer
2

Hendelser

16.04.2026 Utgåande brev - Eit-trinns søknad - bustadføremål - 89/51 - Hollund 26
16.12.2025 Utgåande brev - Saksnummer 2025/6058 v/ Pernille Stavland
08.12.2025 Saksnummer 2025/6058 v/ Pernille Stavland
09.09.2025 Mangelbrev - Ett-trinns søknad - Nytt bygg - bustadføremål - 89/51
22.08.2025 Eitt-trinns søknad - Nytt bygg - bustadføremål - 89/51 - Hollund 26