NewConstruction Ferdigattest Enebolig

Ny enebolig med garasje på Ingebjørgsmyra 26, Vanse

📍 Ingebjørgsmyra 26 , 4560 VANSE

Nøkkelinfo

Sakstype
Nybygg
Bygningstype
Enebolig
Bruksareal
425 m²
Boenheter
1
Kommune
Farsund
Fylke
Agder
Gnr / Bnr
83 / 0
Saksnummer
25/01796
Fase
Ferdigattest

Om byggesaken

Ny enebolig med garasje på totalt 425,3 m² BRA fordelt på flere etasjer. Boligen har to trapper, teknisk rom, vaskerom, kjøkken, stue, flere soverom og bad. Garasjen er på ca. 47,7 m². Bygget har trekledning og saltak med teglstein. Fasader har flere vinduer og dører, inkludert garasjeport på vestfasaden. Oppvarming skjer med varmepumpe og elektriske panelovner. Bygget er prosjektert og utført med ansvarlige foretak, og ferdigattest er gitt i 2025.

Produkter og materialer

Pipe Elementpipe

Antall: 1

Elementpipe montert i bolig

Pipe for ildsted i bolig

Fasade Trekledning

🧱 Tre

Trekledning på alle fasader

Trekledning som ytterkledning på bolig

Bad Bad og dusjrom

Antall: 2

Bad på ca. 13,8 m² og dusjrom på 4,2 m² med vinduer og dører

Bad og dusjrom med sanitærinstallasjoner

Tømrer Bygningskonstruksjon

🧱 Tre

Tømrerarbeid for bolig og garasje, inkludert bjelkelag, vegger og takstoler

Tømrerarbeid for ny enebolig med garasje

Betong Fundament og grunnmur

🧱 Betong

Antatt betongfundament og grunnmur for bolig og garasje

Betongfundament og grunnmur for ny enebolig med garasje

Garasjeport Port til garasje

Antall: 1

Garasjeport på vestfasade

Garasjeport til frittstående garasje på 47,7 m²

Dører Ytterdør og terrassedør

🧱 Tre eller tilsvarende

Antall: 8

Ytterdører i fasader øst (1), sør (1), vest (1), teknisk rom, inngang, dusj, vaskerom og garasje

Ytterdører og terrassedør til bolig og teknisk rom

VVS Sanitæranlegg og varmepumpe

Varmepumpe luft-til-vann, elektriske panelovner, sanitæranlegg prosjektert og utført av OLTO VVS AS

Oppvarming og sanitæranlegg for bolig

Vinduer Fasadevindu

🧱 Tre med 3-lags energiglass

Antall: 22

Vinduer i fasader øst (5), sør (3), nord (4), vest (4) og i garasje (2)

Fasadevinduer i tre med energiglass til bolig og garasje

Trapper Innvendige trapper

Antall: 2

To innvendige trapper i bolig

Innvendige trapper mellom etasjer

Elektro Elektrisk anlegg

Elektrisk anlegg med panelovner og øvrig installasjon

Elektrisk installasjon for bolig

Gulv Innvendige gulv

Antatt standard innvendige gulv i bolig (ikke spesifisert i dokumenter)

Innvendige gulv i bolig

Tak Saltak med teglstein

🧱 Teglstein

Antall: 1

Saltak med teglstein som takmateriale på bolig og garasje

Taktekking med teglstein på saltak

Grunnarbeid Grunn- og terrengarbeid

Grunn- og terrengarbeid utført av Brødrene Thorkildsen AS

Grunnarbeid for bolig og garasje

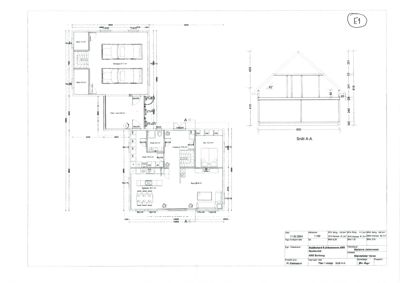
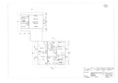
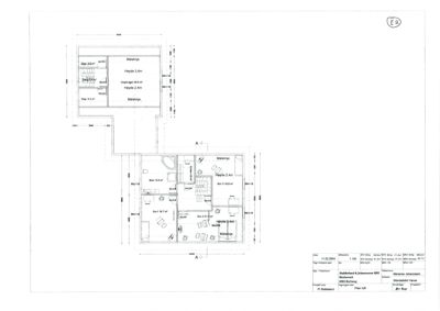
Plantegning

Enebolig 425.3 m²

Etasje 1 169.3 m²

Rom Areal Vinduer Dører
Bod Bod 3.3 m² 3.3 m² 0 1
Bod Bod 4.6 m² 4.6 m² 0 1
Garasje Garasje 47.7 m² 47.7 m² 0 0
Teknisk rom Tekn. rom 9.9 m² 9.9 m² 1 1
Inngang Inngang 13.5 m² 13.5 m² 0 2
Bad Dusj 4.2 m² 4.2 m² 1 1
Vaskerom Vask 10.2 m² 10.2 m² 0 1
Kjøkken Kjøkken 19.1 m² 19.1 m² 2 0
Stue Stue 28.8 m² 28.8 m² 3 1
Soverom Sov 12.3 m² 12.3 m² 1 1
Bod 01 3.3 m² 0 1
Bod 02 4.6 m² 0 1
Garasje 03 47.7 m² 2 1
Teknisk rom 04 9.9 m² 0 1
Inngang 05 13.5 m² 0 2
Dusj 06 4.2 m² 0 1
Vaskerom 07 10.2 m² 0 1
Kjøkken 08 19.1 m² 1 1
Stue 09 26.8 m² 3 1
Sov 10 12.3 m² 1 1

Etasje -1 38.6 m²

Rom Areal Vinduer Dører
Distribusjonsrom Disp 3.0 m² 3.0 m² 1 1
Gang Gang 5.4 m² 5.4 m² 0 1
Distribusjonsrom Disp 5.2 m² 5.2 m² 1 0
Målelinje Målelinje 26.0 m² 0 0

Etasje 3 105.6 m²

Rom Areal Vinduer Dører
Bad Bad 13.8 m² 13.8 m² 1 1
Kontor Kontor 4.6 m² 4.6 m² 0 1
Soverom Sov 3 18.8 m² 18.8 m² 2 1
Soverom Sov1 16.7 m² 16.7 m² 1 1
Soverom Sov 2 21.3 m² 21.3 m² 1 1

Etasje 2 111.8 m²

Rom Areal Vinduer Dører
Sov 1 201 16.7 m² 1 1
Sov 2 202 21.3 m² 1 1
Sov 3 203 18.8 m² 1 1
Bad 204 13.8 m² 0 1
Kontor 205 4.6 m² 0 1
Gang 206 5.4 m² 0 2
Disp 207 3.0 m² 0 1
Disp/Lager 208 26.0 m² 0 1
Disp 209 5.2 m² 0 1

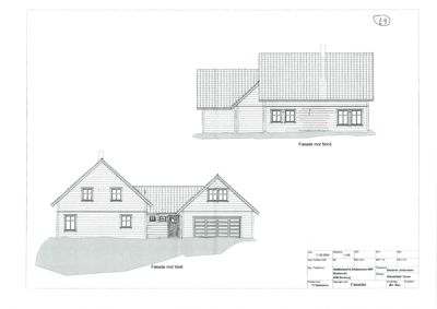
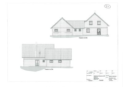
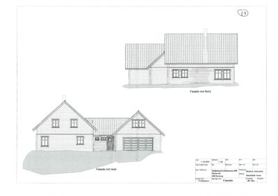
Fasader

Enebolig

Øst
Materiale
Tre
Taktype
Saltak
Takmat.
Tegl
Vinduer
5
Dører
1
Synlige etasjer
2
Sør
Materiale
Tre
Taktype
Saltak
Takmat.
Tegl
Vinduer
3
Dører
1
Synlige etasjer
1
Nord
Materiale
Tre
Taktype
Saltak
Takmat.
Tegl
Vinduer
4
Dører
0
Synlige etasjer
1
Vest
Materiale
Tre
Taktype
Saltak
Takmat.
Tegl
Vinduer
4
Dører
1
Synlige etasjer
2

Hendelser

14.04.2026 25/01796-7 Logger for sak BYGG-25/00321
27.11.2025 25/01796-5 Personlig godkjenning som selvbygger 14/83, Ingebjørgsmyra 26
27.11.2025 25/01796-6 Ferdigattest - Enebolig med garasje (forts. av ephortesak 2004/541) 14/83, Ingebjørgsmyra 26
21.11.2025 25/01796-4 Søknad om ferdigattest - enebolig med garasje - 14/83, Ingebjørgsmyra 26
07.10.2025 25/01796-3 Søknad om ferdigattest 14/83/0/0, enebolig med garasje, Ingebjørgsmyra 26 - (forts. av ephortesak 2004/541) – foreløpig svar
19.09.2025 25/01796-2 Ingebjørgsmyra 26 - , melding om mottatt søknad
18.09.2025 25/01796-1 Søknad om ferdigattest - enebolig med garasje - 14/83, Ingebjørgsmyra 26