NewConstruction UnderBehandling Enebolig

Ny enebolig med flatt tak i St.Hansveien 79, Sjøvegan

📍 Karavika, St. Hansveien 79 , 9350 SJØVEGAN

Nøkkelinfo

Sakstype
Nybygg
Bygningstype
Enebolig
Bruksareal
401 m²
Boenheter
1
Kommune
Salangen
Fylke
Troms - Romsa - Tromssa
Gnr / Bnr
20 / 599
Saksnummer
2021/226
Fase
Under behandling

Om byggesaken

Ny enebolig i to etasjer med flatt tak og integrert garasje på en tomt i Karavika boligfelt, St.Hansveien 79, Sjøvegan. Boligen har et samlet bruksareal på 401 m², med et utnyttelsesgrad på ca. 18 %. Bygget er oppført i trekonstruksjon med tre som fasademateriale og flatt tak. Planløsningen inkluderer blant annet stue, kjøkken, spisestue, flere boder, toalett, og en garasje på 53,2 m². Fasaden har flere vinduer og dører fordelt på alle sider, og det er balkonger på øst- og sørfasaden. Bygget har gesimshøyde på 6,7 meter og er tilpasset terrenget med dispensasjon fra reguleringsplanens krav om takform.

Produkter og materialer

Dører Ytterdører og verandadører

🧱 Tre eller tilsvarende

Antall: 9

Ytterdører og verandadører fordelt på alle fasader, inkludert dør til garasje og balkonger.

Fasade Trepanel

🧱 Tre

Tre som fasademateriale på alle fasader.

VVS Sanitær- og varmeinstallasjoner

Kjøkkenkran, skyllekar og varmeinstallasjoner gjenstår ved midlertidig brukstillatelse

Sanitær-, varme- og slukkeinstallasjoner i henhold til samsvarserklæringer.

Gulv Innvendige gulvflater

Innvendige overflater gjenstår ved midlertidig brukstillatelse

Gulvflater i oppholdsrom og boder.

Trapper Innvendig trapp

Antall: 1

Innvendig trapp mellom etasjer.

Tømrer Trekonstruksjoner og montering

🧱 Tre

Tømrerarbeid for bærende trekonstruksjoner og montering.

Ventilasjon Ventilasjonsanlegg

Ventilasjonsarbeider utført av ansvarlig foretak.

Tak Flatt tak

Antall: 1

Flatt tak med dispensasjon fra reguleringsplanens krav om saltak eller valmet tak

Flatt tak på hele bygget, i strid med reguleringsplan, men godkjent dispensasjon.

Maling Utvendig og innvendig maling

Maling av fasade og innvendige flater.

Grunnarbeid Tomtearbeid og landskapsutforming

Tilfylling, såing og arrondering gjenstår ved midlertidig brukstillatelse

Grunnarbeider inkludert tomteutjevning og landskapsarbeid.

Betong Plasstøpte betongkonstruksjoner

Betongkonstruksjoner for fundament og bærende elementer.

Vinduer Fasadevindu

🧱 Tre med 3-lags energiglass

Antall: 14

Fasadevinduer i tre fordelt på alle fasader, inkludert 5 på vest, 4 på øst, 4 på sør og 1 på nord.

Elektro Elektriske installasjoner

Elektriske installasjoner i henhold til gjeldende forskrifter.

Garasjeport Integrert garasjeport

Antall: 1

Garasjeport til integrert garasje på 53,2 m² på østfasade.

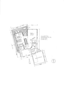
Plantegning

Enebolig 194.4 m²

Etasje 1 194.4 m²

Rom Areal Vinduer Dører
Stue/opphold 101 44.5 m² 1 1
Kjøkken 102 14.2 m² 1 1
Spisestue 103 14.0 m² 1 1
Bjorkant 104 13.9 m² 1 1
Gang 105 9.0 m² 0 2
Hall 106 15.0 m² 0 2
Gard 107 9.0 m² 0 1
Sportsgard 108 17.6 m² 0 1
Toalett 109 10.5 m² 0 1
Garasje 110 53.2 m² 1 1

Fasader

Enebolig

Vest
Materiale
Tre
Taktype
Flatt tak
Høyde
6.7 m
Vinduer
5
Dører
1
Synlige etasjer
2
Øst
Materiale
Tre
Taktype
Flatt tak
Vinduer
4
Dører
0
Balkonger
1
Synlige etasjer
2
Sør
Materiale
Tre
Taktype
Flatt tak
Vinduer
4
Dører
2
Balkonger
1
Synlige etasjer
2
Nord
Materiale
Tre
Taktype
Flatt tak
Vinduer
1
Dører
2
Synlige etasjer
1

Hendelser

17.04.2026 Søknad ferdigattest GNR 20/ BNR 599 for Karl Erik Bekkeli og Kristine Bjerkmo
10.01.2023 Midlertidig brukstillatelse - Gbnr 20/599 - St.Hansveien 79 - Bolighus
10.01.2023 Søknad om midlertidig brukstillatelse gnr 20 bnr 599
16.03.2021 Søknad om dispensasjon fra reguleringsplan for oppføring bolighus med flatt tak gnr 20 bnr 599