NewConstruction Ferdigattest Enebolig

Ny enebolig med garasje i Klokkaresteinsvegen 12, Sæbøvik

📍 Klokkaresteinsvegen 12 , 5454 SÆBØVIK

Nøkkelinfo

Sakstype
Nybygg
Bygningstype
Enebolig
Bruksareal
168 m²
Boenheter
1
Kommune
Kvinnherad
Fylke
Vestland
Gnr / Bnr
199 / 209
Saksnummer
2025/9214
Fase
Ferdigattest

Om byggesaken

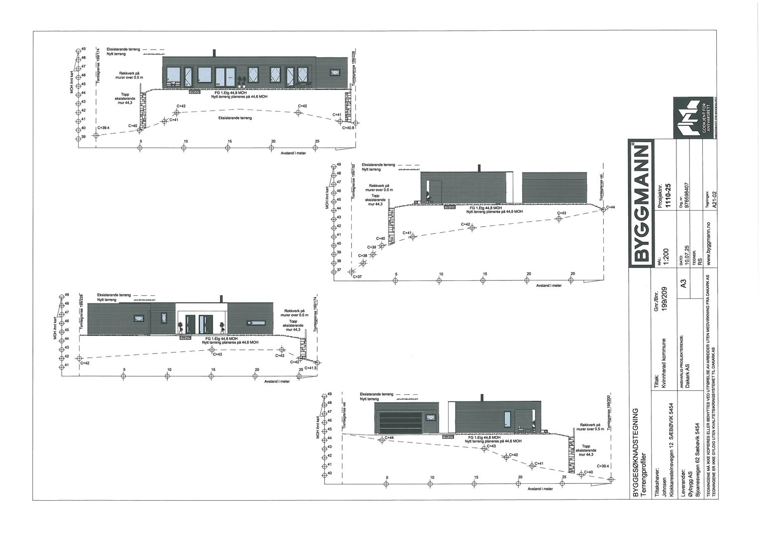
Ny enebolig med flatt tak og tilhørende frittstående garasje oppføres på Klokkaresteinsvegen 12 i Sæbøvik. Eneboligen har ett plan med totalt 168 m² BRA, hvorav 124 m² bolig og 44 m² garasje. Boligen består av kjøkken, stue, gang, tre soverom, bad, vaskerom, WC, bod og sportsbod. Fasaden er i tre med flatt tak og gesimshøyde på 4,8 meter. Bygget har en pipe og flere vinduer fordelt på alle fasader. Garasjen er plassert med dispensasjon fra byggegrense mot vei. Bygget er tilknyttet offentlig vann- og avløpsnett, og har gjennomgått full ansvarsrett og kontroll. Ferdigattest er utstedt, og prosjektet er fullført i henhold til godkjente planer og vilkår.

Produkter og materialer

Betong Fundament og støttemurer

Antall: 1

Betongarbeid utført av Ersland Forskaling AS

Betongarbeid for fundament og støttemurer

Tak Flatt tak

🧱 Ikke spesifisert

Antall: 1

Flatt tak med gesimshøyde 4,8 m

Flatt tak på eneboligen

VVS Rørleggerarbeid

Antall: 1

Rørleggerarbeid utført av Johansen Rør AS, tilknytning til offentlig vann og avløp

VVS-installasjoner og tilknytning til offentlig vann- og avløpsnett

Garasjeport Garasjeport til frittstående garasje

Antall: 1

Garasje på 44 m² med tilhørende port

Garasjeport til garasje

Varmepumpe Luft-til-luft varmepumpe

Antall: 1

Varmepumpe for energiforsyning

Luft-til-luft varmepumpe installert for oppvarming

Gulv Ikke spesifisert

Gulv med elektriske varmekabler

Gulv med varmeinstallasjon

Rekkverk Rekkverk på støttemurer

Rekkverk på støttemurer over 0,5 m iht. situasjonsplan

Sikkerhetsrekkverk på støttemurer rundt tomten

Pipe Murpipe

🧱 Ikke spesifisert

Antall: 1

Pipe tilknyttet eneboligen

Pipe for ildsted i eneboligen

Vinduer Fasadevindu

🧱 Tre med 3-lags energiglass

Antall: 15

Vinduer fordelt på fasader: 5 vest, 0 sør, 3 øst, 6 nord

Fasadevindu i tre med energiglass til eneboligen

Dører Ytterdører

🧱 Tre

Antall: 7

3 dører vest, 1 dør sør, 2 dører øst, 1 dør nord

Ytterdører i tre til eneboligen

Elektro Elektriske varmekabler

Antall: 1

Elektriske varmekabler for varmefordeling

Elektrisk varmeinstallasjon i gulv

Grunnarbeid Utskifting og innmåling

Antall: 1

Utskifting og innmåling utført av Byggservice AS

Grunnarbeid og innmåling for byggeprosjektet

Tømrer Tømrerarbeid

🧱 Tre

Antall: 1

Tømrerarbeid utført av Øybygg AS

Tømrerarbeid for eneboligen

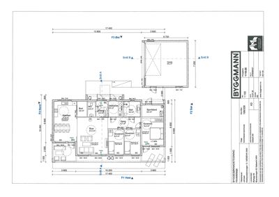
Plantegning

Enebolig 168.0 m²

Etasje 1 168.0 m²

Rom Areal Vinduer Dører
Kjøkken 101 21.8 m² 1 1
Stue 102 27.0 m² 2 1
Gang 103 8.7 m² 0 3
Soverom 104 9.0 m² 1 1
Soverom 105 9.4 m² 1 1
Soverom 106 14.2 m² 1 1
Bad 107 6.0 m² 0 1
Vaskerom 108 5.0 m² 0 1
WC 109 2.6 m² 0 1
Bod 110 3.6 m² 0 1
Sportsbod 111 6.0 m² 0 1

Fasader

Enebolig

Vest
Materiale
Tre
Taktype
Flatt tak
Høyde
4.8 m
Vinduer
5
Dører
3
Synlige etasjer
1
Sør
Materiale
Tre
Taktype
Flatt tak
Høyde
4.8 m
Vinduer
0
Dører
1
Synlige etasjer
1
Øst
Materiale
Tre
Taktype
Flatt tak
Høyde
4.8 m
Vinduer
3
Dører
2
Synlige etasjer
1
Nord
Materiale
Tre
Taktype
Flatt tak
Høyde
4.8 m
Vinduer
6
Dører
1
Synlige etasjer
1

Hendelser

14.04.2026 Ferdigattest - 199/209
08.04.2026 Stadfesting på mottatt søknad - Ferdigattest - 199/209
08.04.2026 Søknad om ferdigattest - 199/209
26.03.2026 Som bygd dokumentasjon - 199/209
26.03.2026 Som bygd dokumentasjon - 199/209
25.03.2026 Godkjenning av ferdigmelding for ny tilknytning til offentleg vass- /avløpsanlegg - 199/209
02.09.2025 Løyve til tiltak - Nytt bygg – Einebustad - 199/209
29.08.2025 Svar på - søknad om dispensasjon frå byggegrense - 199/209
27.08.2025 Stadfesting på mottatt søknad - Eitt-trinns søknad - 199/209
25.08.2025 Søknad om dispensasjon frå byggegrense - 199/209
25.08.2025 Godkjenning av søknad om ny tilknytning til offentleg vass- /avløpsanlegg - 199/209
22.08.2025 Søknad om tiltak - Eitt-trinns - 199/209