NewConstruction UnderBehandling Enebolig

Ny enebolig med sekundærleilighet i Kræmmerstien 23, Larkollen

📍 Kræmmerstien 23

Nøkkelinfo

Sakstype
Nybygg
Bygningstype
Enebolig
Bruksareal
411 m²
Boenheter
2
Kommune
Moss
Fylke
Østfold
Gnr / Bnr
135 / 134
Saksnummer
2026/2561
Fase
Under behandling

Om byggesaken

Ny enebolig med integrert sekundærleilighet oppføres på Kræmmerstien 23 i Larkollen, Moss kommune. Boligen er på totalt 411,3 m² fordelt på underetasje, 1. etasje og hems, med en garasje på 33,5 m² integrert i bygningskroppen. Bygget har trekledning og saltak, tilpasset skrånende terreng med sokkeletasje delvis innfelt i terrenget for å redusere volum og høydevirkning. Hoveddelen inneholder stue, kjøkken, flere soverom, bad, vaskerom og tekniske rom, mens sekundærleiligheten på 59,3 m² er integrert i underetasjen med egen adkomst. Det etableres private uteoppholdsarealer og terrasser med god solforhold. Bygget tilknyttes offentlig vann- og avløpsnett, og det er planlagt støyskjerming mot vei. Materialvalg og arkitektur er moderne med naturlige, avdempede farger og tilpasset omkringliggende bebyggelse.

Produkter og materialer

Tømrer Trekonstruksjoner

🧱 Tre

Tømrerarbeid for bærende trekonstruksjoner, vegger, tak og innvendige konstruksjoner

Tømrerarbeid for boligens trekonstruksjoner

Ventilasjon Boligventilasjon

Prosjektering og utførelse av boligventilasjon av MESTERBYGG MOSS AS

Ventilasjonssystem for bolig og sekundærleilighet

Grunnarbeid Terrengarbeid og fundamentering

Grunnarbeid tilpasset skrånende terreng, delvis innfelt underetasje, for å redusere volum og høydevirkning

Terrengtilpasning og fundamentering i skrånende terreng

Maling Innvendig og utvendig maling

Maling av fasade og innvendige overflater i henhold til arkitektens anvisninger

Maling av treflater og innvendige overflater

Rekkverk Rekkverk på terrasse

Rekkverk på terrasser for sikkerhet og estetikk

Rekkverk på terrasser og uteoppholdsarealer

Fasade Trekledning

🧱 Tre

Trekledning i naturlige, avdempede farger

Fasade med trekledning tilpasset omkringliggende bebyggelse

Elektro Elektriske installasjoner

Elektriske installasjoner iht. TEK17 og gjeldende forskrifter

Elektriske installasjoner for bolig og sekundærleilighet

Garasjeport Garasjeport til integrert garasje

Antall: 1

Garasjeport til garasje med plass til 2 biler integrert i bygningskroppen

Garasjeport for integrert garasje

VVS Vannforsyning og avløpsanlegg

Ny tilknytning til offentlig vann- og avløpsnett med PVC-rør og stoppekraner

Vann- og avløpsanlegg tilkoblet offentlig nett

Tak Saltak

🧱 Trekonstruksjon med taktekking

Antall: 1

Saltak med gesimshøyde ca. 5-6,5 m og mønehøyde opptil 8,75 m

Saltak tilpasset boligvolum og terreng

Betong Fundamentering og murarbeider

Betongfundamenter og murarbeider for sokkel og bærende konstruksjoner

Betong- og murarbeider for fundament og bærende konstruksjoner

Bad Våtromsinnredning og membran

Membran og flisarbeid utført av JAN E. FJELL FLIS OG MUR AS

Våtromsarbeider med membran og flislegging

Dører Ytterdører og terrassedører

🧱 Tre eller tilsvarende

Antall: 10

Inngangsdører til hovedbolig og sekundærleilighet, samt terrassedør til utearealer

Ytterdører og terrassedører i tre til hoved- og sekundærleilighet

VVS Sanitærinstallasjoner og vannbåren varme

Sanitærinstallasjoner og vannbåren varme prosjektert og utført av ONSØY RØR AS

VVS-installasjoner for bolig og sekundærleilighet

Gulv Innvendige gulvflater

Gulvflater i oppholdsrom, bad og vaskerom iht. tegninger og standard

Innvendige gulvflater i bolig og sekundærleilighet

Terrasse Terrasse med stablesteinsmur og støyskjerming

🧱 Stablestein og tre/gjerde

Antall: 2

Terrasser på ca. 53,3 m² og 62,8 m² med støyskjerming mot vei

Private terrasser med støyskjerming og beplantning

Vinduer Fasadevindu

🧱 Tre/aluminium, frostet glass på nordfasade

Antall: 7

Vinduer på nordfasade delvis innfelt i terreng, med frostet glass for innsynsbeskyttelse

Fasadevinduer i tre med frostet glass på nordfasade for lysinnslipp og skjerming

Plantegning

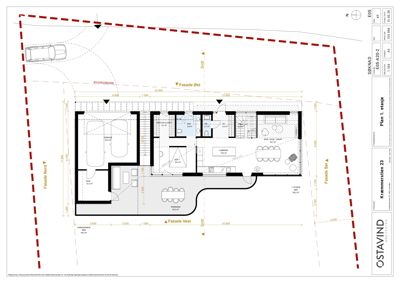
Enebolig 411.3 m²

Etasje 1 92.2 m²

Rom Areal Vinduer Dører
SPIS / STUE / TRAPP 101 34.7 m² 1 2
KJØKKEN 102 15.0 m² 0 1
SØV 1 103 16.4 m² 1 1
BAD 104 5.8 m² 0 1
WC 105 2.1 m² 0 1
BOD 106 10.1 m² 0 1
GARASJE 107 33.5 m² 0 1
TERRASSE 108 53.3 m² 0 0

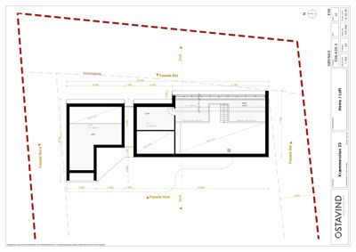
Etasje 0 299.5 m²

Rom Areal Vinduer Dører
Stue m/ kjøkken 001 27.0 m² 1 1
Sov 1 002 11.0 m² 1 1
Walk-in closet 003 6.1 m² 0 1
Vaskerom 004 3.9 m² 0 1
Bad 005 4.4 m² 0 1
VF 006 4.5 m² 0 1
Sov 2 007 13.1 m² 1 1
Gang 008 4.8 m² 0 2
Sov 3 009 10.9 m² 1 1
Kjellerstue / Kontor 010 32.6 m² 1 1
Teknisk / Bod 011 4.8 m² 0 1
Bad 012 8.3 m² 0 1
Vaskerom 013 4.8 m² 0 1
Terrasse 014 62.8 m² 0 1
Sekundærleilighet BRA 015 59.3 m² 0 0
Underetasje BRA 016 88.1 m² 0 0

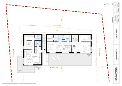
Etasje 2 19.6 m²

Rom Areal Vinduer Dører
Hems HEMS 19.6 m² 0 0

Fasader

Enebolig

Vest
Materiale
Tre
Taktype
Saltak
Høyde
6.5 m
Mønehøyde
8.8 m
Vinduer
2
Dører
0
Balkonger
1
Synlige etasjer
2
Sør
Materiale
Tre
Taktype
Saltak
Høyde
5.3 m
Vinduer
1
Dører
1
Synlige etasjer
2
Øst
Materiale
Tre
Taktype
Saltak
Høyde
5.0 m
Mønehøyde
8.1 m
Vinduer
6
Dører
1
Synlige etasjer
2

Hendelser

14.04.2026 Kræmmerstien 23 - 135/134 - tilbakemelding om mangler
08.04.2026 Kræmmerstien 23 - 135/134 - tilbakemelding om mangler - enebolig
08.04.2026 Kræmmerstien 23 - 135/134 - søknad om avkjøringstillatelse - enebolig
27.03.2026 Kræmmerstien 23 - 135/134 - ett-trinnssøknad - ny enebolig med sekundærleilighet