NewConstruction Soeknad Enebolig

Ny enebolig i Kreklingveien, Sistranda

📍 Kreklingveien 11A , 7260 SISTRANDA

Nøkkelinfo

Sakstype
Nybygg
Bygningstype
Enebolig
Bruksareal
53 m²
Boenheter
1
Kommune
Frøya
Fylke
Trøndelag - Trööndelage
Gnr / Bnr
21 / 370
Saksnummer
2026/771
Fase
Søknad

Om byggesaken

Ny frittliggende enebolig på 53 m² BRA med ett plan i Kreklingveien, Sistranda. Boligen har to soverom, bad, kjøkken/stue, entre og to boder. Bygget oppføres med ringmur og uteluftventilert kryprom, og fasadene er kledd med tre. Det er totalt 6 vinduer og 3 dører fordelt på fasadene, og det er pipe på sør- og nordfasade. Boligen tilknyttes offentlig vann og avløp, og det prosjekteres ventilasjon, VVS, mur- og betongarbeider, membran i våtrom, samt grunnarbeider inkludert sprengning og drenering. Tomten er flat med tilpasning til eksisterende terreng, og det planlegges felles avkjørsel for to tomter for bedre trafikksikkerhet.

Produkter og materialer

Bad Membran og tetting

Membran på vegg og gulv, samt tetting mot sluk i våtrom

Vanntetting i bad

Pipe Murpipe

🧱 Mur

Antall: 1

Pipe på sør- og nordfasade

Murpipe for ildsted

Vinduer Vanlige vinduer i tre

🧱 Tre

Antall: 6

3 vinduer på sørfasade, 2 på vestfasade, 1 på nordfasade, ingen på østfasade

Utvendige vinduer i tre for naturlig lys og ventilasjon

Grunnarbeid Utgraving, sprengning, masseutskifting, komprimering, drenering

Prosjektering og utførelse av gravedybde, sprengning, oppbygging av bærelag, skråninger, fylling, krav til komprimering og håndtering av overvann

Grunnarbeider for fundamentering og drenering av enebolig

Tømrer Trekonstruksjoner og innvendige arbeider

🧱 Tre

Tømrerarbeider inklusive trekonstruksjoner i våtrom og øvrige bygningsdeler

Innvendige trekonstruksjoner og bygningsarbeider

Betong Ringmur

🧱 Betong

Oppføring av ringmur som fundament for bolig

Ringmur for boligfundament

Elektro Elektriske installasjoner

Elektriske installasjoner i bolig, ikke detaljert spesifisert

VVS Innvendige rørarbeider og tilkoblinger

Innvendige rørarbeider med tilhørende produktdokumentasjon, bunnledninger og tilkoblinger

VVS-installasjoner for bolig

Mur Drenering og telesikring

Drenering og telesikring rundt grunnmur

Drenering og beskyttelse mot telehiv

Ventilasjon Ventilasjonsanlegg med kanalføringer

Prosjektering og montering av ventilasjonsanlegg med kanalgjennomføringer

Ventilasjon for boligens branncelle

Fasade Kledning i tre

🧱 Tre

Fasader kledd med tre, 4 fasader (sør, vest, nord, øst)

Utvendig trepanel på alle fasader

Gulv Gulv i bolig

Gulv i bolig, ikke detaljert spesifisert

Tak Taktekking og konstruksjon

Tak med tilhørende konstruksjon, ikke detaljert spesifisert

Dører Ytterdører i tre

🧱 Tre

Antall: 3

1 dør på sørfasade, 1 på vestfasade, 1 på nordfasade

Ytterdører i tre til bolig

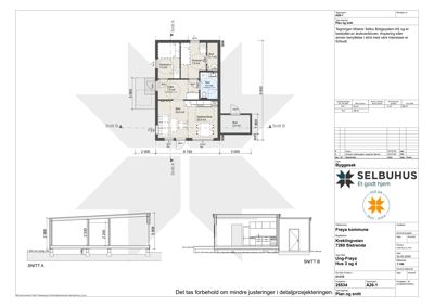
Plantegning

Enebolig 53.0 m²

Etasje 1 53.0 m²

Rom Areal Vinduer Dører
Kjøkken/Stue 101 20.8 m² 2 2
Entre 102 7.5 m² 0 2
Soverom 1 103 7.2 m² 1 1
Soverom 104 7.9 m² 1 1
Bad 105 4.4 m² 0 1
Bod 106 2.7 m² 0 1
Bod 107 5.0 m² 0 1

Fasader

Enebolig

Sør
Materiale
Tre
Vinduer
3
Dører
1
Synlige etasjer
1
Vest
Materiale
Tre
Vinduer
2
Dører
1
Synlige etasjer
1
Nord
Materiale
Tre
Vinduer
1
Dører
1
Synlige etasjer
1
Øst
Materiale
Tre
Vinduer
0
Dører
0
Synlige etasjer
1

Hendelser

14.04.2026 Gbnr 21/370 -Ett-trinns søknad - Kreklingveien, Sistranda - Nytt bygg - boligformål
14.04.2026 Gbnr 21/370 - Bekreftelse mottatt søknad - Ett-trinns søknad - Nytt bygg - boligformål