NewConstruction Unknown Enebolig

Riving og nybygg av to eneboliger på Krosneslund 24, Fredrikstad

📍 Krosneslund 24A , 1622 GRESSVIK

Nøkkelinfo

Sakstype
Nybygg
Bygningstype
Enebolig
Bruksareal
262 m²
Boenheter
2
Kommune
Fredrikstad
Fylke
Østfold
Gnr / Bnr
54 / 37
Saksnummer
2022/18544
Fase
Unknown

Om byggesaken

Prosjektet omfatter riving av en eksisterende enebolig og anneks fra 1930-tallet på Krosneslund 24, og oppføring av to nye moderne eneboliger med integrert garasje. Hver bolig har et bebygd areal på 111 m², fordelt på underetasje og hovedetasje, med totalt ca. 490 m² bruttoareal for begge. Byggene har saltak og fasader i tre med vedlikeholdsfri trekledning og pussede systemblokker i underetasjen. Terrasser i betong og treverk tilpasses naturlig terreng og svaberg. Boligene har energieffektiv varmepumpe, peisovn og mulighet for solceller. Uteområdene inkluderer felles gårdsplass med belegningsstein, plen, pergola og kjøkkenhage. Byggetiltaket er plassert innenfor regulert byggegrense med god avstand til nabogrense og tilfredsstiller krav til universell utforming for minst en bolig. Eksisterende garasje beholdes som felles bod/lager. Prosjektet har gjennomgått komplett byggesaksprosess med godkjente tegninger, ansvarlige aktører og kontroll.

Produkter og materialer

Maling Ikke spesifisert

Innvendig og utvendig maling

Fasade Trekledning og pussede systemblokker

🧱 Tre og pussede blokker

Antall: 2

Vedlikeholdsfri trekledning på hovedetasje, pussede systemblokker i underetasje

Fasadematerialer for to eneboliger med saltak

Garasjeport Integrert garasjeport

Antall: 2

Integrert garasje i hver bolig

Garasjeport for to integrerte garasjer

Tak Saltak

🧱 Taktekking ikke spesifisert

Antall: 2

Saltak med mønehøyde ca 6-8 meter

Tak for to eneboliger med saltak

Elektro Varmepumpe og elektrisk oppvarming

Energieffektiv varmepumpe og elektrisk oppvarming

Oppvarmingssystem for boligene

VVS Sanitærinstallasjoner og vannforsyning

Offentlig vann og avløp tilkoblet, frostsikre stikkledninger

VVS-installasjoner for to eneboliger

Mur Pussede systemblokker i underetasje

🧱 Systemblokker med puss

Pussede blokker i underetasje

Murarbeid for underetasje

Annet Solceller

Solceller på tak vurderes integrert

Mulighet for solcelleanlegg

Gulv Ikke spesifisert

Innvendige gulv i boligene

Vinduer Fasadevindu med aluminiumsramme

🧱 Lakkerte aluminiumsprofiler med solskjermende isolerglass

Antall: 20

Vinduer i fasade med solskjermende isolerglass

Vinduer for to eneboliger

Pipe Rentbrennende peisovn

Antall: 2

Peisovn som sekundær varmekilde i hver bolig

Peisovn for to eneboliger

Rekkverk Terrasserekkverk

Rekkverk på deler av terrasse mot syd

Rekkverk for terrasseområder

Terrasse Terrasse i betong og treverk

🧱 Stålglattet plasstøpt betong og naturimpregnert vedlikeholdsfritt treverk

Terrasser tilpasses terreng og svaberg

Terrasser for uteoppholdsareal

Tømrer Trekonstruksjoner og montering

🧱 Treverk

Tømrerarbeid for trekonstruksjoner og fasadekledning

Tømrerarbeid for to eneboliger

Ventilasjon Ventilasjons- og klimainstallasjoner

Ventilasjon og klima i boligene

Ventilasjonsanlegg for to eneboliger

Dører Ytterdører og skyvedører i aluminiumsramme

🧱 Lakkerte aluminiumsprofiler

Antall: 8

Dører og skyvedører med aluminiumsramme

Ytterdører og skyvedører for to eneboliger

Grunnarbeid Fundamentering og drenering

🧱 Betongfundament til fjell, drenerende masser

Fundamentering på fjell, drenering med stedlige masser

Grunnarbeid for to eneboliger

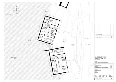
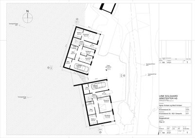
Plantegning

Enebolig 490.0 m²

Etasje 1 245.0 m²

Rom Areal Vinduer Dører
Stue/kjøkken 101 22.1 m² 3 2
Bad 102 8.5 m² 0 1
Gang 103 13.3 m² 0 2
Sov 104 8.2 m² 1 1
Sov 105 8.3 m² 1 1
VF 106 6.4 m² 0 1
Bod 107 5.0 m² 0 1
Garasje 108 17.0 m² 2 1
WC WC 2.5 m² 0 1
Vaskerom VF 2.5 m² 0 1
Kjøkken/spisestue Kjøkken/spisestue 40.1 m² 2 1
TV-stue TV-stue 16.1 m² 1 1

Etasje 2 245.0 m²

Rom Areal Vinduer Dører
Stue/kjøkken 201 22.1 m² 3 2
Bad 202 6.5 m² 0 1
Vask 203 1.7 m² 0 1
Gang 204 13.3 m² 0 2
Sov 205 8.2 m² 1 1
Sov 206 8.2 m² 1 1
VF 207 6.4 m² 0 1
Walk-in 208 6.5 m² 0 1
Sov 209 15.5 m² 1 1
Bod 210 5.0 m² 0 1
Garasje 211 17.0 m² 2 1

Fasader

Enebolig

Nord
Materiale
Tre
Taktype
Saltak
Høyde
6.1 m
Mønehøyde
8.1 m
Vinduer
3
Dører
1
Synlige etasjer
2
Vest
Materiale
Tre
Taktype
Saltak
Høyde
4.7 m
Mønehøyde
6.5 m
Vinduer
2
Dører
2
Synlige etasjer
2
Sør
Materiale
Tre
Taktype
Saltak
Høyde
4.3 m
Mønehøyde
8.2 m
Vinduer
1
Dører
0
Synlige etasjer
2
Øst
Materiale
Tre
Taktype
Saltak
Høyde
6.0 m
Mønehøyde
8.3 m
Vinduer
4
Dører
2
Balkonger
1
Synlige etasjer
2

Hendelser

13.04.2026 Midlertidig brukstillatelse - Riving og oppføring av ny bolig - Krosneslund 24 - Eiendom 54/37
20.03.2026 Søknad om midlertidig brukstillatelse - Krosneslund 24 - Eiendom 54/37
09.03.2026 Supplering av søknad - eiendom 54/37 - Krosneslund 24
14.05.2025 Ny ansvarlig søker - Krosneslund 24 - Eiendom 54/37
08.05.2025 Ber om at ansvarlig søker endres - IG - Krosneslund 24 - Eiendom 54/37
06.05.2025 Igangsettingstillatelse - Riving og oppføring av ny bolig - Krosneslund 24 - Eiendom 54/37
09.04.2025 Søknad om igangsettingstillatelse - Krosneslund 24 - Eiendom 54/37
16.02.2023 Sak til matrikkelføring - Riving og oppføring av ny bolig - Krosneslund 24 - Eiendom 54/37
15.02.2023 Rammetillatelse - Riving og oppføring av ny bolig - Krosneslund 24 - Eiendom 54/37
13.02.2023 Redegjørelse riving - Krosneslund 24 - Eiendom 54/37
26.01.2023 Krosneslund 24 - Riving, oppføring nybygg - Ny uttalelse Va
20.01.2023 Uttalelse VA - Krosneslund 24 - Riving av hele bygg, Nybygg - boligformål
18.01.2023 Krosneslund 24 - Riving av hele bygg, Nybygg - boligformål - Uttalelse Va
18.01.2023 Anmodning om uttalelse - Rammesøknad - Krosneslund 24 - Eiendom 54/37
15.11.2022 Tilleggsdokumentasjon - Krosneslund 24
22.09.2022 Mangelfull søknad - Riving og oppføring av ny bolig - Krosneslund 24 - Eiendom 54/37
26.08.2022 Rammesøknad - Krosneslund 24 - Eiendom 54/37 - Riving av hele bygg, Nybygg - boligformål