NewConstruction UnderBehandling Enebolig

Ny enebolig med garasje på Heiavegen 71, Sæbøvik

Nøkkelinfo

Sakstype
Nybygg
Bygningstype
Enebolig
Bruksareal
432 m²
Boenheter
1
Kommune
Kvinnherad
Fylke
Vestland
Gnr / Bnr
193 / 34
Saksnummer
2026/2579
Fase
Under behandling

Om byggesaken

Ny enebolig på totalt ca. 432 m² BRA fordelt på to etasjer med fem soverom, to bad, vaskerom, garderober, bod, gang/trapp og carport. Bygget har saltak og flatt tak, med tre som fasademateriale og inkluderer pipe. Det er en balkong på sør- og nordfasade. Garasjen er frittstående på ca. 50 m² med garasjeport og hagebod. Tomten er på 1125 m² med planert uteareal og støttemur tilpasset terreng. Bygget har tilknytning til offentlig vann- og avløpsnett, og det er gjennomført nødvendige dispensasjonssøknader for BYA over kommuneplanens maksimum. Prosjektet inkluderer også vegjustering og terrengarbeider.

Produkter og materialer

Vinduer Fasadevindu

🧱 Tre med 3-lags energiglass

Antall: 24

Vinduer i fasader, inkludert 6 i sør, 2 i øst, 5 i vest, 6 i nord, og 4 i stue/kjøkken

Fasadevindu i tre med energiglass for enebolig

Betong Fundamenter og støttemur

🧱 Betong

Betongarbeid for fundamenter og støttemur

Betongarbeid for fundamentering og støttemur

Pipe Murpipe

🧱 Mur

Antall: 1

Pipe på alle fasader

Murpipe for ildsted

VVS Vann- og avløpsinstallasjon

Tilknytning til offentlig vann- og avløpsnett, installasjon av vannmåler, spillvanns- og overvannsledninger

VVS-installasjoner for bolig med tilknytning til offentlig nett

Grunnarbeid Terrengplanering og vegjustering

Planering av nytt terreng til 34,8 MOH, vegjustering med terrengprofiler og støttemur tilpasset terreng

Grunnarbeid inkludert terrengplanering, vegjustering og støttemur

Bad Sanitærutstyr og fliser

Bad med sanitærutstyr og fliser, to bad i bolig

Bad med sanitærinstallasjoner og flislagte overflater

Dører Ytterdører og balkongdører

🧱 Tre

Antall: 9

Ytterdører og balkongdører i tre, inkludert 2 balkongdører og 7 ytterdører i bolig og garasje

Ytterdører og balkongdører i tre for bolig og garasje

Gulv Innvendige gulvflater

Gulv i bolig med parkett og fliser på bad og vaskerom (antatt ut fra standard boligprosjekt)

Innvendige gulvflater i bolig

Tømrer Trekonstruksjoner for bolig og garasje

🧱 Tre

Tømrerarbeid for bolig og garasje

Tømrerarbeid for oppføring av bolig og garasje

Tak Saltak og flatt tak

🧱 Tre og taktekking

Saltak på sør og vest, flatt tak på nordfasade

Tak med saltak og flatt tak i trekonstruksjon

Garasjeport Garasjeport i tre

🧱 Tre

Antall: 1

Garasjeport på garasje og nordfasade

Garasjeport i tre til garasje

Rekkverk Balkongrekkverk

🧱 Tre eller metall

Antall: 2

Rekkverk på balkonger sør og nordfasade

Rekkverk for balkonger

Elektro El-installasjon

El-installasjon i bolig og garasje, inkludert krav til sikkerhet ved høyspentanlegg i nærheten

Elektriske installasjoner for bolig og garasje

Fasade Trepanel

🧱 Tre

Tre som fasademateriale på alle fasader

Trepanel som fasadekledning

Trapper Innvendig trapp

🧱 Tre

Antall: 1

Innvendig trapp i bolig mellom etasjer

Innvendig trapp i bolig

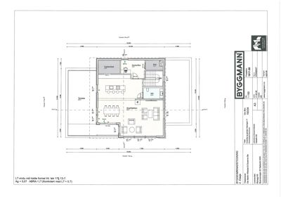
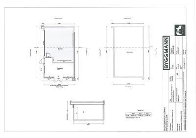
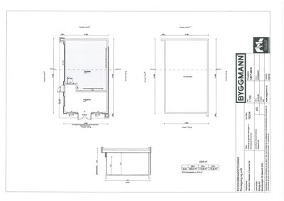
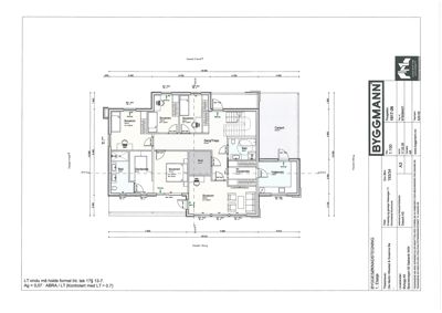
Plantegning

Enebolig 432.1 m²

Etasje 1 275.4 m²

Rom Areal Vinduer Dører
Soverom 101 13.8 m² 1 1
Soverom 102 10.0 m² 1 1
Soverom 103 8.9 m² 1 1
Soverom 104 13.7 m² 1 1
Soverom 105 26.5 m² 3 1
Bad 106 7.8 m² 0 1
Garderobe 107 5.4 m² 0 1
Bad 108 5.9 m² 0 1
Garderobe 109 6.4 m² 0 1
Vaskerom 110 11.6 m² 1 1
Bod 111 4.9 m² 0 1
Gang/Trapp 112 37.5 m² 0 0
Carport 113 24.9 m² 0 1

Etasje 2 156.7 m²

Rom Areal Vinduer Dører
Stue/Kjøkken 201 73.1 m² 4 2
Kontor/Sov 202 9.0 m² 1 1
Bod 203 4.5 m² 1 1
WC 204 5.2 m² 0 1
Kjøkkenbod 205 6.5 m² 1 1

Garasje 49.8 m²

Etasje 1 49.8 m²

Rom Areal Vinduer Dører
Hagebod E00 20.3 m² 0 1
Garasje E01 44.4 m² 0 1
Garasje Garasje 44.4 m² 0 0
Hagebod Hagebod 20.3 m² 0 0

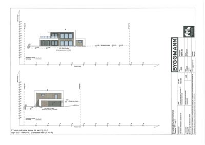
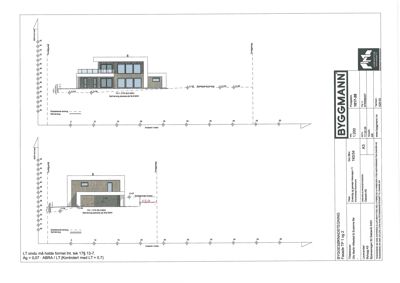
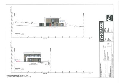
Fasader

Enebolig

Sør
Materiale
Tre
Taktype
Saltak
Høyde
4.2 m
Mønehøyde
6.8 m
Vinduer
6
Dører
2
Balkonger
1
Synlige etasjer
2
Øst
Materiale
Tre
Vinduer
2
Dører
1
Synlige etasjer
1
Vest
Materiale
Tre
Taktype
Saltak
Høyde
4.2 m
Mønehøyde
6.8 m
Vinduer
5
Dører
1
Synlige etasjer
2
Nord
Materiale
Tre
Taktype
Flatt tak
Høyde
6.5 m
Vinduer
6
Dører
1
Balkonger
1
Synlige etasjer
2

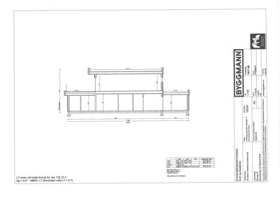
Garasje

Vest
Materiale
Tre
Vinduer
1
Dører
1
Synlige etasjer
1

Hendelser

13.04.2026 Supplering av søknad 193/34
27.03.2026 Mangelbrev - Eitt-trinns søknad - 193/34
16.03.2026 Søknad om tiltak - Eitt-trinns - 193/34
16.03.2026 Stadfesting på mottatt søknad - Eitt-trinns søknad - 193/34
16.03.2026 Godkjenning av søknad om ny tilknytning til offentleg vass- /avløpsanlegg - 193/34