NewConstruction Igangsettingstillatelse Enebolig

Ny enebolig med garasje i Vettrebukta 12, Asker

📍 L. P. Wettres vei 3 , 1392 VETTRE

Nøkkelinfo

Sakstype
Nybygg
Bygningstype
Enebolig
Bruksareal
274 m²
Boenheter
1
Kommune
Asker
Fylke
Akershus
Gnr / Bnr
58 / 258
Saksnummer
23/684
Fase
Igangsettingstillatelse

Om byggesaken

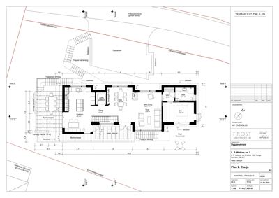
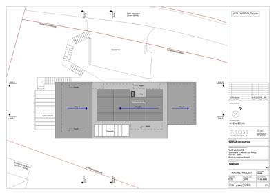
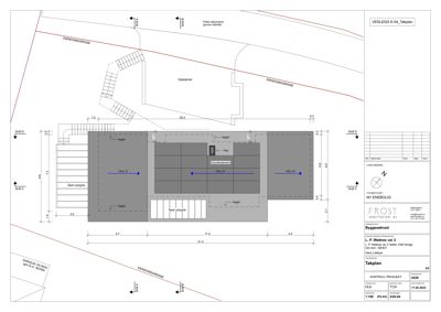
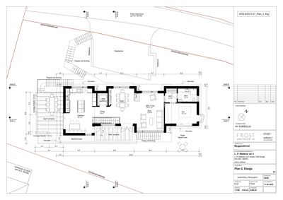
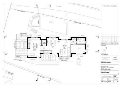
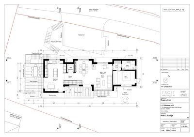
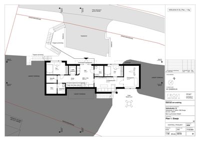
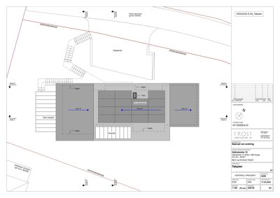
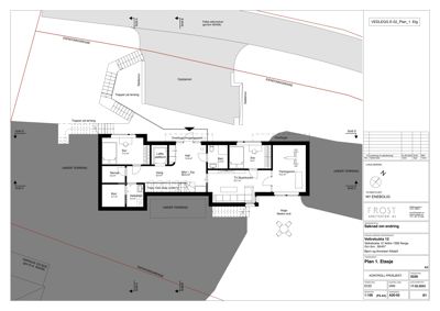
Ny enebolig på ca. 274 m² BRA fordelt på underetasje, 1. og 2. etasje, med integrert garasje i underetasjen på ca. 42-49 m². Boligen har moderne arkitektur med hvit stående trekledning, flatt og saltak, og er tilpasset terrenget med støttemurer og skjæringer mot nord. Hovedetasjen har åpen planløsning med kjøkken, stue, spisestue, soverom, bad og garderobe. Underetasjen inneholder garasje, bod, sportbod og løfteplattform. Utomhusplan viser pergola med glasstak, levegger, trapper på terreng, markterrasse og permeable dekker. Det er etablert adkomstvei og parkering iht. kommunens normer. Vann- og avløpsanlegg er godkjent, og det er prosjektert balansert ventilasjon, sanitærinstallasjoner, mur- og betongarbeider, samt løfteinnretninger. Bygget er under aktiv oppføring med igangsettingstillatelser gitt.

Produkter og materialer

Tømrer Tømrerarbeid og montering av trekonstruksjoner

🧱 Tre

Tømrerarbeid for bolig og garasje, inkludert sikring av byggeplass

Tømrerarbeid for oppføring av bolig og garasje

Maling Utvendig og innvendig maling

Maling av trekledning og innvendige overflater antatt iht. standard boligprosjekt

Maling av fasade og innvendige flater

VVS Vannforsyning og avløp

Offentlig vann- og avløpsanlegg tilkoblet, inkl. tilbakestrømningsbeskyttelse og vannmåler

Tilknytning til offentlig vann- og avløpsnett med nødvendige installasjoner

Elektro Løfteinnretninger

Antall: 1

Løfteplattform i bolig, prosjektert og utført

Løfteinnretning for tilgjengelighet i bolig

Ventilasjon Balansert ventilasjon

Prosjektering og utførelse av balansert ventilasjon i bolig

Balansert ventilasjonssystem for enebolig

Tak Saltak og flatt tak

🧱 Takstein, solcelletakstein, glasstak pergola

Saltak med takvinkel 3° og 6°, flatt tak, glasstak på pergola, solcelletakstein

Tak med kombinasjon av saltak og flatt tak, inkludert glasstak på pergola og solcelletakstein

Bad Baderomsinnredning

Antall: 2

Bad i 1. og 2. etasje, med sanitærutstyr og fliser

Baderomsinnredning og sanitærutstyr

Kjøkken Kjøkkeninnredning

Antall: 1

Kjøkken i 2. etasje på ca. 26,3 m²

Fullt utstyrt kjøkkeninnredning

Garasjeport Garasjeport i garasje under terreng

Antall: 1

Garasjeport i underetasje garasje

Garasjeport til integrert garasje under bolig

Vinduer Takvindu

Antall: 0

Ingen takvinduer nevnt

Rekkverk Levegg

🧱 Tre

Levegg med høyde justert til 0,5 m og 0,9 m ved terrasse

Levegg for skjerming av uteplass

Vinduer Fasadevindu

🧱 Tre/aluminium

Antall: 14

Vinduer i flere rom, inkludert 1 vindu i kjøkken, 1 i stue, 1 i soverom, 1 i WIC, 1 i TV-stue/kontor, 1 i treningsrom

Fasadevindu i tre/aluminium med energiglass tilpasset bolig

Mur Støttemurer

🧱 Naturstein og betong

Støttemurer i naturstein og betong, høyde 0,5-3 m

Støttemurer for terrengtilpasning og avgrensning

Betong Fundamentering og støttemurer

🧱 Betong

Betongarbeider for fundamentering, støttemurer opp til 3,5-4 m høyde

Betongarbeider for fundament og støttemurer i terreng

Terrasse Markterrasse og pergola

🧱 Tre og glasstak

Åpen pergola med glasstak, markterrasse med levegger

Uteoppholdsareal med pergola og markterrasse

VVS Sanitærinstallasjoner

Sanitærinstallasjoner for bolig, godkjent sanitærabonnement

Sanitærinstallasjoner for bolig og garasje

Solceller Solcelletakstein

Solcelletakstein på tak

Integrert solcelletakstein på tak

Gulv Innvendige gulvflater

Gulv i bolig etasjer, antatt parkett og fliser på bad

Innvendige gulvflater i bolig

Grunnarbeid Utgraving og grunnarbeid

Grunnarbeid og utgraving for bolig og garasje, inkl. terrenginngrep innen byggegrense

Grunnarbeid for fundamentering og terrengtilpasning

Dører Ytterdører og glassdører

🧱 Tre/glass

Antall: 12

Dører i kjøkken, bad, soverom, bod, sportbod, garasje, gang, WIC, glassdør endret til vindu i 2. etasje

Ytterdører og innvendige dører i tre og glass, inkludert dør med glassfelt som er endret til vindu

Trapper Innvendig trapp og trapper på terreng

🧱 Tre/betong

Antall: 2

2 trapper på terreng, trapp med skap under i bolig

Innvendige trapper og utvendige trapper på terreng for adkomst og mellom etasjer

Fasade Trekledning og naturstein

🧱 Tre, naturstein

Hvit stående trekledning, naturstein i grunnmur og støttemurer

Fasade med hvit trekledning og naturstein i grunnmur og støttemurer

Fasader

Enebolig

Sør
Materiale
Tre
Taktype
Flatt tak
Høyde
6.8 m
Mønehøyde
8.2 m
Vinduer
5
Dører
3
Synlige etasjer
1
Vest
Materiale
Tre
Taktype
Flatt tak
Høyde
3.9 m
Mønehøyde
3.9 m
Vinduer
2
Dører
1
Synlige etasjer
1
Nord
Materiale
Tre
Taktype
Saltak
Høyde
5.7 m
Mønehøyde
8.2 m
Vinduer
5
Dører
2
Balkonger
1
Synlige etasjer
2
Øst
Materiale
Tre
Høyde
5.8 m
Vinduer
2
Dører
1
Synlige etasjer
2

Hendelser

14.04.2026 58/407 Vettrebukta 12 - Igangsettingstillatelse 2
13.04.2026 58/258 L. P. Wettres vei 3 - Søknad om igangsettingstillatelse 2
25.03.2026 58/258 L. P.Wettres vei 3 (58/407 Vettrebukta 12) - Henvendelse om bygge- og anleggsstøy
06.03.2026 58/258 (tidl. 58/407) L. P. Wettres vei 3 - Fotodokumentasjon på at byggegjerde langs byggegrense mot øst/sør-øst er på plass
16.02.2026 58/258 L. P. Wettres vei 3 - Igangsettingstillatelse nr. 1
05.02.2026 58/258 L. P Wettres vei 3 - Søknad om igangsettingstillatelse
22.01.2026 58/258 L. P. Wettres vei 3 - Utsetter vilkår i tillatelse til IG2
31.10.2025 58/258 (58/407) L. P. Wettres vei 3 (Vettrebukta 12) - Endringstillatelse - nybygg enebolig og garasje
19.09.2025 58/258 L. P Wettres vei 3 - Søknad om endring av gitt tillatelse
12.05.2023 58/258 (58/407) Referanse til vei skal rettes - Nybygg - Enebolig og garasje
12.05.2023 58/258 Rammetillatelse - Nybygg enebolig og garasje. Rettet vedtak.
05.05.2023 58/258 Rammetillatelse - Nybygg - Enebolig og garasje
06.03.2023 58/258 Kvitteringsbrev - Nybygg - Enebolig og garasje
06.03.2023 58/258 Søknad om nybygg - Enebolig og garasje