NewConstruction UnderBehandling Enebolig

Ny enebolig med minirenseanlegg i Landingveien 16, Røyrvik

📍 Landingveien 16 , 7898 LIMINGEN

Nøkkelinfo

Sakstype
Nybygg
Bygningstype
Enebolig
Bruksareal
188 m²
Boenheter
1
Kommune
Raarvihke - Røyrvik
Fylke
Trøndelag - Trööndelage
Gnr / Bnr
73 / 52
Saksnummer
2026/173
Fase
Under behandling

Om byggesaken

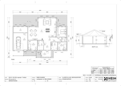
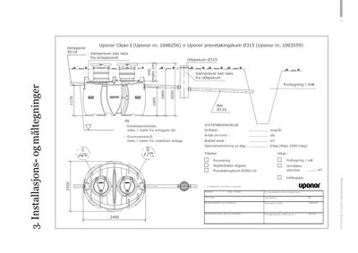
Ny enebolig i ett plan med saltak og integrert garasje oppføres på samme sted som tidligere bolig i Landingveien 16, Røyrvik. Boligen har et bebygd areal på 149 m² og et bruksareal på 188 m² inkludert åpent overbygget areal. Bygget er i tre med flere vinduer og dører fordelt på alle fasader, og har pipe. Fundamentet er plate på mark uten kjeller. Det etableres et kjemisk/biologisk minirenseanlegg av typen Uponor Clean I med kapasitet for 5 personekvivalenter, som skal sikre 90 % reduksjon av fosfor og BOF5 i avløpsvannet. Boligen er plassert i aktsomhetssone for flom, men med dokumentert tilstrekkelig sikringshøyde over flomnivå. Prosjektet inkluderer også landskapsutforming og grunnarbeider. Alle tekniske installasjoner, inkludert ventilasjon, sanitær, varme og kulde, utføres av ansvarlige foretak med ansvarsrett.

Produkter og materialer

VVS Sanitærinstallasjoner

Sanitærinstallasjoner i bolig

Sanitærinstallasjoner for bolig, inkludert vann og avløp

Vinduer Fasadevindu i tre

🧱 Tre

Antall: 13

Vinduer fordelt på alle fasader: Nord 5, Sør 2, Vest 5, Øst 1

Vinduer i tre i ulike størrelser fordelt på alle fasader

Vegarbeid Grunnarbeid og vegarbeid

Grunnarbeid og vegarbeid for tomt og utearealer

Grunnarbeid og vegarbeid for bolig og utearealer

Tømrer Tømrerarbeid og montering av trekonstruksjoner

🧱 Tre

Tømrerarbeid for bolig i tre

Tømrerarbeid og montering av trekonstruksjoner for bolig

Dører Ytterdører i tre

🧱 Tre

Antall: 5

Dører fordelt på fasader: Nord 1, Sør 1, Vest 2, Øst 1

Ytterdører i tre, inkludert inngangsdører og dører til terrasse/garasje

Garasjeport Garasjeport integrert i bolig

Antall: 1

Garasjeport i integrert garasje

Garasjeport til integrert garasje i bolig

VVS Minirenseanlegg

🧱 Uponor Clean I, biologisk/kjemisk minirenseanlegg

Antall: 1

Minirenseanlegg med CE-merke EN12566-3, kapasitet 5 pe, 90 % reduksjon fosfor og BOF5

Biologisk/kjemisk minirenseanlegg for avløpsvann fra enebolig, inkludert slamavskiller og kjemikaliedosering

Betong Plasstøpte betongkonstruksjoner

🧱 Betong

Fundament og plate på mark

Plasstøpte betongfundamenter og plate på mark

Mur Pipe

🧱 Ikke spesifisert

Antall: 1

Pipe på bolig

Pipe for bolig

Grunnarbeid Fundament og grunnarbeid

🧱 Betong

Plate på mark, fundament uten kjeller

Fundament i betong med plate på mark, uten kjeller

Fasade Trefasade med saltak

🧱 Tre

Trefasade med saltak, 1 etasje, pipe og integrert garasje

Yttervegger i tre med saltak og pipe, integrert garasje med garasjeport

Tak Saltak

🧱 Ikke spesifisert

Antall: 1

Saltak på enebolig

Saltak som taktype for eneboligen

Ventilasjon Ventilasjonsanlegg

Planlegging og prosjektering av ventilasjonsanlegg

Ventilasjonsanlegg for bolig

VVS Varme- og kuldeinstallasjoner

Varme- og kuldeinstallasjoner i bolig

Varme- og kuldeinstallasjoner for bolig

Fasader

Enebolig

Nord
Materiale
Tre
Taktype
Saltak
Vinduer
5
Dører
1
Synlige etasjer
1
Sør
Materiale
Tre
Taktype
Saltak
Vinduer
2
Dører
1
Synlige etasjer
1
Vest
Materiale
Tre
Taktype
Saltak
Vinduer
5
Dører
2
Synlige etasjer
1
Øst
Materiale
Tre
Taktype
Saltak
Vinduer
1
Dører
1
Synlige etasjer
1

Hendelser

13.04.2026 Beregning av gebyr - nytt bolighus og utslippstillatelse - gnr/bnr 73/52 - Landingveien 16
13.04.2026 Tilleggsdokumentasjon byggesak - korrekt versjon - gnr/bnr 73/52 - Landingveien 16
13.04.2026 Terrengsnitt og vurdering av flomfare - oppføring av bolig - gnr/bnr 73/52 - Landingveien 16
13.04.2026 Dokumentasjon på minirenseanlegg- gnr/bnr 73/52 - Landingveien 16
13.04.2026 Behandling av søknad om oppføring av bolig - utslippstillatelse - gnr/bnr 73/52 - Landingveien 16
08.04.2026 Søknad om utslippstilatelse fra nytt bolighus - gnr/bnr 73/52 - Landingveien 16
08.04.2026 Foreløpig svar - søknad om oppføring av bolighus - gnr/bnr 73/52 - Landingveien 16
12.03.2026 Ett-trinns søknad -Nytt bygg - boligformål - gnr/bnr 73/52 - Landingveien 16