NewConstruction Soeknad Enebolig

Ny enebolig med terrasse i Lensmannsvei 9, Halden

📍 Lensmannsveien 9 , 1778 HALDEN

Nøkkelinfo

Sakstype
Nybygg
Bygningstype
Enebolig
Bruksareal
168 m²
Boenheter
1
Kommune
Halden
Fylke
Østfold
Gnr / Bnr
141 / 398
Saksnummer
2026/2611
Fase
Søknad

Om byggesaken

Ny frittliggende enebolig på ett plan med totalt 167,7 m² BRA, inkludert oppholdsrom, tre soverom, kjøkken, vaskerom, to boder, våtrom og gang. Boligen har fasader i fiberpuss og betongstein, saltak tekket med teglstein, og er delvis plassert i rød støysone. Det er en terrasse/balkong på 29,9 m² og en eksisterende dobbelgarasje på tomten som beholdes, med avsatt plass for fremtidig garasje. Bygget har 1 trapp, flere vinduer og dører fordelt på rommene, og pipe og garasjeport er inkludert i fasaden. Grunnarbeid og overvannsplan er utarbeidet, og det foreligger dispensasjon fra byggegrense mot vei med vilkår om støytiltak.

Produkter og materialer

Trapper Innvendig trapp

Antall: 1

Innvendig trapp i eneboligen

Tak Saltak med teglstein

🧱 Teglstein

Antall: 1

Saltak med teglstein som takmateriale

Tak med saltak konstruksjon og teglstein som taktekking

Balkong Terrasse/balkong

Antall: 1

29,9 m² terrasse/balkong

Utendørs terrasse/balkong tilknyttet eneboligen

Fasade Fiberpuss og betongstein

🧱 Fiberpuss, betongstein

Antall: 1

Fasader i fiberpuss og betongstein

Yttervegger med fiberpuss og betongstein som fasademateriale

Vinduer Fasadevindu

🧱 Tre med 3-lags glass

Antall: 10

Fasadevindu i tre, fordelt på soverom, oppholdsrom og kjøkken

Isolasjon Bygningsisolasjon

Isolasjon i vegger, tak og gulv for energikrav

Vinduer Balkongdør/vindusdør

🧱 Tre med glass

Antall: 2

Dører med glass til terrasse/balkong og enkelte rom

Grunnarbeid Grunn og terrengarbeid

Vurdering av grunnforhold og overvannsplan utarbeidet

Grunnarbeid og terrengtilpasning for ny enebolig

Maling Innvendig og utvendig maling

Maling av fasader og innvendige overflater

Elektro Elektriske installasjoner

Elektriske installasjoner i bolig

Garasjeport Dobbelgarasjeport

Antall: 1

Eksisterende dobbelgarasje beholdes, plass til fremtidig garasje avsatt

Garasjeport til eksisterende dobbelgarasje på tomten

VVS Sanitærinstallasjoner

Våtrom på 7,8 m² og vaskerom på 9,7 m² med sanitærinstallasjoner

Sanitærinstallasjoner for våtrom og vaskerom

Pipe Pipe for ildsted

Antall: 1

Pipe tilknyttet bolig for ildsted

Dører Ytterdør

🧱 Tre

Antall: 3

Ytterdører til bolig og boder

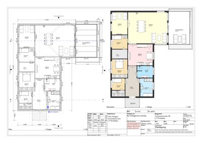
Plantegning

Enebolig 167.7 m²

Etasje 1 167.7 m²

Rom Areal Vinduer Dører
Opphold 101 15.0 m² 1 1
Soverom 102 9.2 m² 1 1
Bod 103 6.1 m² 0 1
Soverom 104 12.6 m² 1 1
Soverom 105 6.6 m² 1 1
Bod 106 3.2 m² 0 1
Opphold 107 53.1 m² 1 1
Kjøkken 108 22.5 m² 1 1
Våtrom 109 7.8 m² 0 1
Vaskerom 110 9.7 m² 0 1
Gang 111 15.4 m² 0 3
Terrasse/Balkong 112 29.9 m² 0 1

Fasader

Enebolig

Syd
Materiale
Tre
Taktype
Saltak
Takmat.
Tegl
Vinduer
2
Dører
1
Balkonger
1
Synlige etasjer
2
Nord
Materiale
Tre
Taktype
Saltak
Takmat.
Tegl
Vinduer
1
Dører
0
Balkonger
1
Synlige etasjer
2
Vest
Materiale
Tre
Taktype
Saltak
Takmat.
Tegl
Vinduer
4
Dører
1
Synlige etasjer
1

Hendelser

13.04.2026 141/398 - Lensmannsvei 9 - Oppføring av enebolig
13.04.2026 141/398 - Lensmannsvei 9 - Oppføring av enebolig