NewConstruction Ferdigattest Enebolig

Ny enebolig med integrert garasje i Lupinsvingen 22, Årnes

📍 Lupinsvingen 22 , 2150 ÅRNES

Nøkkelinfo

Sakstype
Nybygg
Bygningstype
Enebolig
Bruksareal
193 m²
Boenheter
1
Kommune
Nes
Fylke
Akershus
Gnr / Bnr
175 / 480
Saksnummer
2024/3341
Fase
Ferdigattest

Om byggesaken

Ny enebolig på 193,4 m² BRA fordelt på to etasjer med integrert garasje på 60 m². Boligen inneholder fire soverom, to bad, vaskerom/teknisk rom, kjellerstue, åpent kjøkken og stue, samt en terrasse på sørfasaden. Bygget har pulttak med ulik mønehøyde og er kledd med stående trepanel som gir et minimalistisk og rent uttrykk. Store vinduer er plassert mot sør- og østfasaden, mens øvrige vegger har standardvinduer. Garasjen er integrert i hovedbygget med takterrasse over. Bygget har pipe og tilkobling til kommunalt vann- og avløpsnett. Det er én innvendig trapp og rekkverk på terrasse. Bygget er prosjektert og utført med ansvarlige foretak innen arkitektur, konstruksjon, oppmåling, sanitær, tømrerarbeid og kontroll av våtrom og lufttetthet. Ferdigattest er utstedt med bagatellmessige mangler lukket.

Produkter og materialer

VVS Sanitærinstallasjoner

Prosjektert og utført av Aditus AS, inkludert tilkobling til kommunalt vann- og avløpsnett

Sanitærinstallasjoner for bolig og teknisk rom

Gulv Innvendige gulvflater

🧱 Ikke spesifisert, antatt parkett/laminat/fliser i våtrom

Listing av gulv gjenstår ved ferdigattest, ellers ferdig

Innvendige gulv i bolig

Elektro Elektrisk installasjon

Ikke detaljert spesifisert, men nødvendig for bolig

Elektriske installasjoner iht. TEK17

Grunnarbeid Tomtearbeid og fundamentering

Oppmåling og utskifting utført av Romerike Oppmåling AS

Grunnarbeid for bolig og garasje

Tømrer Tømrerarbeid og montering av trekonstruksjoner

🧱 Trekonstruksjoner

Utført av Nordic Boligutvikling AS

Tømrerarbeid for bolig og integrert garasje

Fasade Stående trepanel

🧱 Trepanel

Stående og lignende paneler for minimalistisk og rent uttrykk

Trepanelkledning på fasader

Bad Bad og vaskerom

🧱 Fliser og våtromsmembran antatt

Antall: 2

Våtrom kontrollert av Meter2 AS, oppfyller våtromsnorm

Bad og vaskerom med nødvendige installasjoner og overflater

Ventilasjon Ventilasjonssystem

Ventilasjon med innregulering før lukking av himling i teknisk rom

Ventilasjon for bolig iht. forskrifter

Vinduer Store fasadevindu mot sør og øst, standardvinduer øvrige vegger

🧱 3-lags energiglass antatt

Antall: 14

Store vinduer mot sør- og østfasade, standardvinduer mot nord og vest

Vinduer i ulike størrelser for lysinnslipp og estetikk

Dører Ytterdører og dører til teknisk rom og garasje

🧱 Tre/kompositt antatt

Antall: 7

Dører til inngang, teknisk rom, garasje og innvendige rom

Ytterdører og innvendige dører iht. plantegninger

Terrasse Terrasse på sørfasade og takterrasse over garasje

Antall: 2

Terrasse på sørfasade og takterrasse over integrert garasje

Utendørs oppholdsareal

Trapper Innvendig trapp mellom etasjer

🧱 Tre eller tilsvarende

Antall: 1

Trapp prosjektert av leverandør, rekkverk iht. tegninger

Innvendig trapp med rekkverk

Tak Pulttak med ulik mønehøyde og takterrasse over garasje

🧱 Taktekking ikke spesifisert, antatt membran på flat del

Takvinkel mellom flatt tak og 35 grader, pulttak

Tak med kombinasjon av pulttak og flat tak med takterrasse

Rekkverk Rekkverk terrasse og trapp

Rekkverk på terrasse og trapp iht. tegninger, delvis ferdigstilt ved ferdigattest

Sikkerhetsrekkverk for terrasse og trapp

Pipe Pipeløp

Antall: 1

Bygget har pipe med ett pipeløp

Pipe for ildsted/ovn

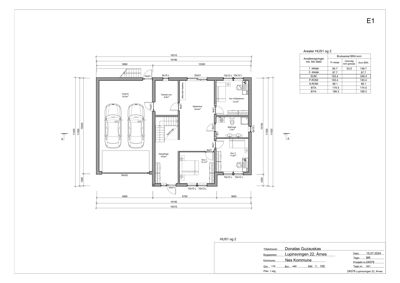
Plantegning

Enebolig 193.4 m²

Etasje 1 193.4 m²

Rom Areal Vinduer Dører
Carport Carport 53.0 m² 0 1
Teknisk rom Teknisk rom 8.6 m² 0 1
Kjellerstue Kjellerstue 26.9 m² 1 1
Gang/trapp Gang/trapp 16.6 m² 0 1
Sov 2 Sov 2 12.1 m² 1 1
Sov 3 Sov 3 11.8 m² 1 1
Sov 4/Gjesterom Sov 4/Gjesterom 12.3 m² 2 1
Bad/vask Bad/vask 7.4 m² 0 1

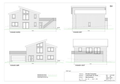
Fasader

Enebolig

Nord
Materiale
Tre
Taktype
Saltak
Høyde
6.5 m
Mønehøyde
8.2 m
Vinduer
5
Dører
1
Synlige etasjer
2
Øst
Materiale
Tre
Taktype
Saltak
Høyde
6.5 m
Mønehøyde
8.2 m
Vinduer
1
Dører
0
Synlige etasjer
2
Sør
Materiale
Tre
Taktype
Saltak
Høyde
6.5 m
Mønehøyde
8.2 m
Vinduer
4
Dører
1
Synlige etasjer
2
Vest
Materiale
Tre
Taktype
Saltak
Høyde
6.5 m
Mønehøyde
8.2 m
Vinduer
3
Dører
0
Balkonger
1
Synlige etasjer
2

Hendelser

20.04.2026 Ferdigattest - Gbnr 175/480 - Lupinsvingen 22 - Nytt bygg - Enebolig m/integrert garasje
13.04.2026 Tilsynsrapport - Gbnr 175/480 - Lupinsvingen 22 - Nytt bygg - Enebolig m/integrert garasje
10.04.2026 Dokumentasjon på utbedring - Gbnr 175/480 - Lupinsvingen 22 - Enebolig m/integrert garasje
19.03.2026 Varsel om tilsyn - Gbnr 175/480 - Lupinsvingen 22 - Nytt bygg - Enebolig
17.03.2026 Søknad om ferdigattest - Gbnr 175/480 - Lupinsvingen 22 - Nytt bygg - Enebolig
13.10.2025 Avgjørelse i klagesak - Gbnr 175/480 - Lupinsvingen 22 - Nytt bygg - Enebolig
29.09.2025 Vedtak i klagesak - Gbnr 175/480 - Lupinsvingen 22 - Enebolig
21.07.2025 Melding om saksbehandlingstid i klagesak - Gbnr 175/480 - Lupinsvingen 22 - Nytt bygg - Enebolig
07.07.2025 Forberedende klagebehandling - Gbnr 175/480 - Lupinsvingen 22 - Nytt bygg - Enebolig
07.07.2025 Oversendelse av klagesak - Gbnr 175/480 - Lupinsvingen 22 - Nytt bygg - Enebolig
10.06.2025 Supplering av søknad - Gbnr 175/480 - Lupinsvingen 22 - Nytt bygg - Enebolig
07.11.2024 Orientering om mottatt klage - Gbnr 175/480 - Lupinsvingen 22 - Nytt bygg - Enebolig
22.10.2024 Klage på tillatelse - Gbnr 175/480 - Lupinsvingen 22
07.10.2024 Tillatelse til tiltak - Gbnr 175/480 - Lupinsvingen 22 - Nybygg - Enebolig m/integrert garasje
18.09.2024 Supplering av søknad - Gbnr 175/480 - Lupinsvingen 22 - Nytt bygg - Enebolig
05.09.2024 Søknaden har mangler - Gbnr 175/480 - Lupinsvingen 22 - Nytt bygg - Enebolig m/integrert garasje
02.09.2024 Søknad om tillatelse i ett trinn - Gbnr 175/480 - Lupinsvingen 22 - Bolig