NewConstruction Rammetillatelse Enebolig

Ny enebolig med sekundærleilighet på Lyngenfjordveien 199

📍 Lyngenfjordveien 199A , 9060 LYNGSEIDET

Nøkkelinfo

Sakstype
Nybygg
Bygningstype
Enebolig
Bruksareal
156 m²
Boenheter
2
Kommune
Lyngen - Ivgu - Yykeä
Fylke
Troms - Romsa - Tromssa
Gnr / Bnr
82 / 18
Saksnummer
2026/199
Fase
Rammetillatelse

Om byggesaken

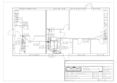
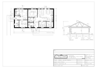
Ny enebolig av typen Älvsbyhus MAJA+ med sekundærleilighet oppføres på eiendommen Lyngenfjordveien 199, Gnr 82 Bnr 18 i Lyngen kommune. Boligen er frittliggende, i én etasje med saltak og trepanel som fasademateriale. Totalt areal er 156 m² med et bruksareal på 129 m². Bygget inneholder stue, kjøkken, flere soverom, to bad, vaskerom og teknisk rom. Tomten er på ca. 4202 m² med parkering på terreng for fem biler. Grunnforholdene er dokumentert med prøvegraving som viser morenemasser og fjell på 0,85 til 2 meter dybde, med liten leireforekomst og vurdert som sikker byggegrunn uten fare for kvikkleireskred. Det er gitt tillatelse til utvidet bruk av eksisterende avkjørsel fra fylkesveg 868, og det er planlagt privat vannforsyning og avløp med utslippstillatelse. Byggetillatelse er gitt med vilkår om gjennomføring i henhold til dokumentasjon og gjeldende regelverk.

Produkter og materialer

Parkering Biloppstillingsplasser på terreng

Antall: 5

Parkering for 5 biler på terreng, fire plasser for hoveddel og en for sekundærleilighet

Gulv Innvendige gulv

Innvendige gulv i bolig (standard boligmaterialer)

Bad Bad og vaskerom

Antall: 2

To bad og ett vaskerom med sanitærutstyr

VVS Sanitærinstallasjoner og vannbåren radiatorvarme

Innvendig plassering og utførelse av sanitærutstyr og vannbåren radiatorvarme

VVS-installasjoner for bolig

Grunnarbeid Avkjørsel og veioppgradering

Antall: 1

Utvidet bruk av eksisterende avkjørsel fra fylkesveg 868 med krav om stikkrenne 400 mm

Oppgradering og tillatelse for avkjørsel til eiendom

Tak Saltak

🧱 Tre og taktekking

Antall: 1

Saltak med tre som bærende konstruksjon og taktekking

Elektro Innvendig elektrisk installasjon

Elektriske installasjoner i bolig (antatt standard for bolig)

Fasade Trepanel

🧱 Tre

Trepanel som fasademateriale på alle fasader

Dører Ytterdører

🧱 Tre

Antall: 4

Ytterdører i tre til hovedinngang, sekundærleilighet og andre utganger

VVS Bunnledninger i krypkjeller

Legging og påkobling av bunnledninger i krypkjeller

VVS-installasjoner for avløp

Tømrer Oppføring av småhus

Antall: 1

Oppføring av 1-etasjes småhus med alle relevante arbeider

Grunnarbeid Terrenginngrep og landskapsutforming

Terrenginngrep med terrengtilpasning, trinnfri adkomst, og terrengfylling med samtykke fra nabo

Grunnarbeid for tilpasning av tomt og adkomst

Vinduer Fasadevindu

🧱 Tre

Antall: 6

Fasadevindu i tre, fordelt på øst, sør, vest og nord fasader

Grunnarbeid Prøvegraving og grunnundersøkelser

Prøvegraving med 4 groper, dokumentert morenemasser og fjell på 0,85-2 m dybde, liten leireforekomst

Grunnundersøkelser for fundamentering og vurdering av skredfare

Vinduer Fasadevindu

🧱 Tre

Antall: 10

Flere fasadevinduer i tre på ulike soverom og oppholdsrom

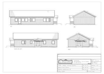
Fasader

Enebolig

Øst
Materiale
Tre
Taktype
Saltak
Vinduer
6
Dører
1
Balkonger
1
Synlige etasjer
1
Sør
Materiale
Tre
Taktype
Saltak
Vinduer
1
Dører
0
Balkonger
1
Synlige etasjer
1
Vest
Materiale
Tre
Taktype
Saltak
Vinduer
4
Dører
1
Balkonger
1
Synlige etasjer
1
Nord
Materiale
Tre
Taktype
Saltak
Vinduer
2
Dører
1
Balkonger
1
Synlige etasjer
1

Hendelser

16.04.2026 82/18 - tillatelse til tiltak - bolig - Lyngenfjordveien 199 - Marius Pettersen
30.03.2026 82/18 - tillatelse til utvidet bruk av avkjørsel - fylkesveg 868
30.03.2026 82/18 - supplering av søknad - Lyngenfjordveien 199
25.03.2026 82/18 - supplering av søknad
20.03.2026 82/18 - bolig - Lyngenfjordveien 199
04.03.2026 Foreløpig svar på søknad om ny avkjørsel - fylkesveg 868 - gbnr. 82/18 - Lyngen kommune
04.03.2026 82/18 - saksnr 26/04203 - ny avkjørsel - Lyngenfjordveien 199
04.03.2026 82/18 - Supplering av søknad - Lyngenfjordveien 199
16.02.2026 82/18 - tilbakemelding om mangler ved søknaden - Lyngenfjordveien 199
03.02.2026 82/18 - søknad om tillatelse i ett trinn - bolig - Lyngenfjordveien 199