Rendering
Bildet viser en tegning med både 2D-fasadeutganger og 3D-visualiseringer av en bygning.
1 / 8
NewConstruction
Igangsettingstillatelse
Enebolig
Ny enebolig med endret plassering i Mevikveien 51, Storvik
📍 Mevikveien 51 , 8145 STORVIK
Nøkkelinfo
- Sakstype
- Nybygg
- Bygningstype
- Enebolig
- Bruksareal
- 225 m²
- Boenheter
- 1
- Kommune
- Gildeskål
- Fylke
- Nordland - Nordlánnda
- Gnr / Bnr
- 2 / 36
- Saksnummer
- 2023/1108
- Fase
- Igangsettingstillatelse
Om byggesaken
Ny enebolig i ett plan med skråtak på totalt 225 m² BRA oppføres i Mevikveien 51, Storvik. Boligen har et bruksareal på 134 m² og bebygd areal på 170 m², med rom som stue/kjøkken på 57,4 m², tre soverom, bad, WC, vaskerom, bod og entre. Bygget har balansert ventilasjon, radonsikring, og tilknytning til privat vannverk og kommunalt avløpsanlegg. Plasseringen av boligen er justert 3 meter lengre bak på tomten for bedre tilpasning til tomt og utearealer, med minimum 4 meter avstand til nabogrense. Byggearbeidene er utført med ansvarlige foretak for prosjektering, utførelse og kontroll, og midlertidig brukstillatelse er gitt med gjenstående ferdigstillelse av et WC-rom.
Produkter og materialer
VVS
Vann og avløp
Tilknytning til privat vannverk og kommunalt avløpsanlegg
Vann- og avløpsinstallasjoner for bolig
Dører
Innvendige dører
Antall: 11
Innvendige dører til rom som WC, bad, soverom, bod og entre
Tømrer
Tømrerarbeider
Tømrerarbeider for oppføring av enebolig
Sanitær
Sanitæranlegg for bolig
Sanitæranlegg inkludert bad, WC og vaskerom
Tak
Skråtak
Skråtak med 4° helning
Skråtak på eneboligen
Grunnarbeid
Tomtearbeid og fundamentering
Grunnarbeider for bolig, inkludert radonsikring
Ventilasjon
Balansert ventilasjon
Balansert ventilasjon for enebolig
Fasade
Fasade med vinduer og dører
Fasade med vinduer og dører i henhold til tegninger
Vinduer
Fasadevindu
Antall: 7
Fasadevindu i stue/kjøkken og soverom
Gulv
Gulv i bolig
Gulv i alle rom, inkludert våtromsgulv
Betong
Betongarbeider inkl radonsikring
Betongarbeider for fundament og radonsikring
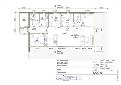
Plantegning
Enebolig 225.0 m²
Etasje 1 225.0 m²
| Rom | Areal | Vinduer | Dører |
|---|---|---|---|
| Entre 101 | 7.8 m² | 0 | 3 |
| WC 102 | 3.8 m² | 0 | 1 |
| Vaskerom 103 | 6.5 m² | 0 | 1 |
| Sov 104 | 9.8 m² | 1 | 1 |
| Bad 105 | 9.8 m² | 0 | 1 |
| Wic 106 | 3.0 m² | 0 | 1 |
| Sov 107 | 12.8 m² | 1 | 1 |
| Sov 110 | 10.3 m² | 1 | 1 |
| Bod 111 | 7.3 m² | 0 | 1 |
| Stue/kjøkken 108 | 57.4 m² | 4 | 0 |
Hendelser
13.04.2026
Forhåndsvarsel om ileggelse av overtredelsesgebyr - Ulovlig bruk av enebolig, Mevikveien 51, Mevik gnr.2 bnr.36
16.10.2025
Tilbakemelding vedrørende midlertidig brukstillatelse enebolig og ferdigstillelse av byggeprosjekt, Mevikveien 51, Mevik gnr.2 bnr.36
06.12.2024
Midlertidig brukstillatelse for enebolig i Mevikveien 51, Mevik gnr.2 bnr.36
03.12.2024
Mevikveien 51 Søknad om midlertidig brukstillatelse 2/36
09.02.2024
Vedtak - Endring av gitt tillatelse, flytting av bolig lengre bak på tomten, Mevik gnr.2 bnr.36
24.01.2024
Mevikveien 51 Søknad om endring av gitt tillatelse eller godkjenning 2/36
08.12.2023
Endret plassering av bolig gnr.2 bnr.36 Mevik
07.12.2023
Endring plassering av bolig
30.11.2023
Vedtak - Igangsettingstillatelse for oppføring av enebolig i Mevikveien 51, Mevik gnr.2 bnr.36
24.11.2023
Svar avløpsanlegg gnr.2 bnr.36
15.11.2023
Avløpsanlegg gnr.2 bnr.36
31.10.2023
Søknad om tillatelse i ett trinn - oppføring av enebolig G/B 2/36 - Mevikveien 51