NewConstruction UnderBehandling Enebolig

Ny enebolig og garasje i Moldelivegen 96, Molde

📍 Moldelivegen 96 , 6413 MOLDE

Nøkkelinfo

Sakstype
Nybygg
Bygningstype
Enebolig
Bruksareal
198 m²
Boenheter
1
Kommune
Molde
Fylke
Møre og Romsdal
Gnr / Bnr
24482 / 1128
Saksnummer
25/10066
Fase
Under behandling

Om byggesaken

Ny enebolig på ca. 197,7 m² BRA fordelt på to etasjer med flatt tak og trekledning oppføres på eiendommene gnr. 24/482, 24/1128 og 24/1129 i Moldelivegen 96. Boligen har 3 soverom, flere bad, teknisk rom, oppholdsrom, gangarealer, balkong på 28,6 m² og to uteboder. Det etableres en felles dobbelgarasje på 50,1 m² BYA med tilhørende gjesteparkering. Garasjen plasseres nær fylkesveg med dispensasjon fra byggegrense, og eksisterende garasje omgjøres til uthus. Tomtene sammenslås og fradeles til to eiendommer, med felles avkjørsel øst på tomta. Tiltaket inkluderer terrengtilpasning, gangvei med trapp, og oppfyller krav til avstand, høyde og trafikksikkerhet. Det er gitt dispensasjon fra byggegrense mot veg, og tiltaket er i tråd med gjeldende reguleringsplan og plan- og bygningslovens bestemmelser.

Produkter og materialer

Gulv Innvendige gulv

Innvendige gulv i bolig, antatt parkett/fliser

Tak Flatt tak

Flatt tak på enebolig

Tak med flatt tak på to etasjer

Garasjeport Dobbel garasjeport

Antall: 1

Dobbel garasje på 50,1 m² BYA med to biloppstillingsplasser

Garasjeport for dobbel garasje

Betong Fundament og grunnmur

Betongfundament og grunnmur for bolig og garasje

Rekkverk Balkongrekkverk

Antall: 1

Rekkverk på balkong

Terrasse Balkong

Antall: 1

Balkong på 28,6 m² i 2. etasje

Utendørs balkongareal

Fasade Trekledning

🧱 Tre

Fasader i tre med flatt tak

Yttervegger kledd med trepanel

Dører Ytterdører og balkongdører

Antall: 8

Ytterdører og balkongdører fordelt på fasader og balkong

Dører til inngang, balkong og utebod

Bad Baderomsinnredning

Antall: 2

Bad i begge etasjer, inkludert vaskerom

Baderomsinnredning og sanitærutstyr

Elektro El-ladepunkt

Antall: 2

El-ladepunkt ved garasje

Ladepunkt for elbil i garasjeområdet

Vinduer Fasadevindu

🧱 Tre/aluminium ukjent

Antall: 14

Vinduer fordelt på fasader: Nord 4, Øst 3, Sør 6, Vest 3

Fasadevinduer i ulike rom, totalt 14 stk

Trapper Innvendig trapp

Antall: 1

Innvendig trapp mellom etasjer

Trapp i bolig for etasjeovergang

Grunnarbeid Tomteutforming og terrengbearbeiding

Terrengtilpasning med ca. 3 m høydeforskjell, gangvei og trapp

Grunnarbeid for bolig og tilkomst

Maling Utvendig og innvendig maling

Maling av fasader og innvendige flater

VVS Vann og avløp tilkobling

Tilkobling til offentlig vann- og avløpsnett

VVS installasjoner for bolig

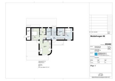
Plantegning

Enebolig 197.7 m²

Etasje 1 110.1 m²

Rom Areal Vinduer Dører
Utebod U01 2.9 m² 0 1
Lav Høyde Utebod U02 2.9 m² 0 1
Sov 101 12.0 m² 1 1
Bad 102 5.0 m² 0 1
Tekn./Bod 103 7.2 m² 0 1
Opphold 104 25.4 m² 2 1
Gang 105 12.2 m² 0 2
Vask/bad 106 6.8 m² 0 1
Sov 107 11.4 m² 1 1

Etasje 2 87.6 m²

Rom Areal Vinduer Dører
Opphold/kjøkken 201 42.4 m² 1 2
Gang/trapp 202 6.8 m² 0 2
Sov/TV 203 8.0 m² 1 2
Balkong U01 28.6 m² 0 1
WC 204 2.3 m² 0 1
Bad 205 4.9 m² 0 1
Gard. 206 5.4 m² 1 1
Sov 207 12.3 m² 1 1

Fasader

Enebolig

Nord
Materiale
Tre
Taktype
Flatt tak
Vinduer
4
Dører
1
Synlige etasjer
2
Øst
Materiale
Tre
Taktype
Flatt tak
Vinduer
3
Dører
1
Synlige etasjer
2
Sør
Materiale
Tre
Taktype
Flatt tak
Vinduer
6
Dører
2
Balkonger
1
Synlige etasjer
2
Vest
Materiale
Tre
Taktype
Flatt tak
Vinduer
3
Dører
1
Balkonger
1
Synlige etasjer
2

Hendelser

09.04.2026 25/10066-8 24/482 Moldelivegen 96, kommentar til klage på vedtak
10.02.2026 25/10066-7 24/482 Moldelivegen 96 - utsatt iverksetting
06.02.2026 25/10066-6 24/482 Moldelivegen 96 - utsatt iverksetting
05.02.2026 25/10066-5 24/482 Moldelivegen 96 - enebolig og garasje Foreløpig svar - Statsforvaltaren
16.12.2025 25/10066-4 24/482 Moldelivegen 96, Oversendelse av klage til behandling
06.11.2025 25/10066-3 24/482/0/0 Moldelivegen 96 - svar på klage
04.11.2025 25/10066-2 24/482 Moldelivegen 96, svar på klage
29.09.2025 25/10066-1 Klage på vedtak med saksnr. BYGG-25/00637