NewConstruction UnderBehandling Enebolig

Ny enebolig med integrert garasje på Morenen 74, Moss

📍 Morenen 74

Nøkkelinfo

Sakstype
Nybygg
Bygningstype
Enebolig
Bruksareal
244 m²
Boenheter
1
Kommune
Moss
Fylke
Østfold
Gnr / Bnr
1 / 3880
Saksnummer
2026/1112
Fase
Under behandling

Om byggesaken

Ny enebolig med integrert garasje oppføres på en nylig utskilt tomt på Morenen 74 i Moss. Boligen har et samlet bruksareal på 244,2 m² fordelt på to plan, med et bevisst lavtbyggende uttrykk og flatt tak for å redusere visuell høyde og volum. Bygget har en kombinasjon av stående og liggende mørkbeiset trekledning, og fasadene er utformet med moderne, stramme linjer. Boligen inneholder blant annet stue/kjøkken, flere soverom, garderobe, bad og bod. Garasjen er integrert i bygget med garasjeport på vestfasaden. Terrengtilpasning og overvannshåndtering er ivaretatt med lokal fordrøyning i pukkmagasin under boligen. Det er søkt dispensasjon for to etasjer i stedet for 1 ½, med begrunnelse i volum og høyde som ikke oppleves dominerende. Prosjektet er godt forankret i nabolaget uten innsigelser.

Produkter og materialer

Vinduer Fasadevindu

🧱 Tre med 3-lags energiglass

Antall: 14

Vinduer i fasader, moderne utforming, plassert i stue/kjøkken og soverom

Fasadevindu i tre med energiglass for naturlig lys og utsyn

Ventilasjon Ventilasjonssystem

Ventilasjon prosjektert av Mesterbygg Moss AS

Ventilasjon for bolig iht. gjeldende krav

Garasjeport Integrert garasjeport

🧱 Ikke spesifisert

Antall: 1

Garasjeport på vestfasade integrert i bolig

Garasjeport for integrert garasje

Tak Flatt tak

🧱 Taktekking med membran

Antall: 1

Flatt eller tilnærmet flatt tak med liten takvinkel, gesimshøyde 6,6 m

Flatt tak for lavtbyggende uttrykk og redusert volum

Elektro Elektriske installasjoner

Montering av jordet vannmålerkonsoll av godkjent elektriker

Elektriske installasjoner knyttet til vannmåler og øvrig bolig

Trapper Innvendig trapp i L-form

🧱 Tre eller betong med rekkverk

Antall: 1

Trapp mellom 1. og 2. etasje

Innvendig trapp for adkomst mellom etasjer

Fasade Trekledning, stående og liggende

🧱 Mørkbeiset tre

Kombinasjon av stående og liggende mørkbeiset trekledning

Fasade med dempet fargevalg for rolig helhetsinntrykk

Tømrer Tømrerarbeid og montering av trekonstruksjoner

🧱 Tre

Tømrerarbeid inkludert taktekking og ventilasjon

Tømrerarbeid for bolig og garasje

VVS Sanitæranlegg og vann-/avløpsinstallasjoner

Innvendig sanitæranlegg, vannmåler, tilbakeslagssikring, tilkobling til offentlig vann og avløp

VVS-installasjoner for bolig med godkjent sanitærmelding

Terrasse Terrasse

Antall: 1

Terrasse på 62,4 m² iht. utomhusplan

Utendørs terrasseareal

Dører Ytterdører og terrassedører

🧱 Tre eller aluminium med glassfelt

Antall: 6

Inkluderer inngangsdør, terrassedører og dører til bod og garasje

Ytterdører og terrassedører med glassfelt for lysinnslipp

Gulv Innvendige gulvflater

Ikke spesifisert i dokumenter

Innvendige gulvflater i bolig

Membran Membranarbeid for våtrom

Membranarbeid utført av Jan E. Fjell Flis og Mur AS

Membranarbeid for våtrom og fuktsikring

Grunnarbeid Grunnarbeid og terrengtilpasning

Grunnarbeid med pukkmagasin for overvann og terrengtilpasning

Grunnarbeid med fordrøyning av overvann under bolig og parkeringsareal

Mur Mur- og betongarbeider

Mur- og betongarbeider inkludert radonsperre

Mur- og betongarbeider for grunn og fundament

Betong Fundamentering og radonsperre

🧱 Betong

Fundamentering på fast fjell, radonsperre inkludert

Betongfundament med radonsperre for sikker bygging

Bad Bad og sanitærutstyr

Antall: 1

Bad på 7,9 m² med membran og sanitærutstyr

Bad med membran og sanitærinstallasjoner

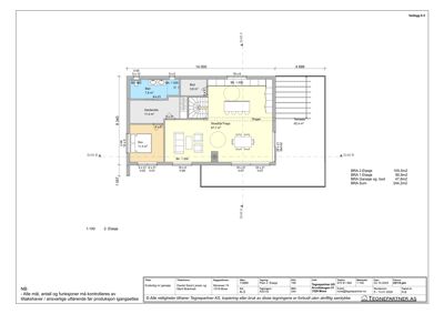
Plantegning

Enebolig 105.5 m²

Etasje 2 105.5 m²

Rom Areal Vinduer Dører
Stue/Kjøkken 201 67.7 m² 4 2
Sov 202 11.3 m² 1 1
Garderobe 203 11.4 m² 0 1
Bad 204 7.9 m² 0 1
Bod 205 3.8 m² 0 1

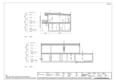
Fasader

Enebolig

Nord
Materiale
Tre
Taktype
Flatt tak
Høyde
6.9 m
Vinduer
1
Dører
1
Synlige etasjer
2
Sør
Materiale
Tre
Taktype
Saltak
Høyde
6.9 m
Vinduer
1
Dører
1
Balkonger
1
Synlige etasjer
2
Øst
Materiale
Tre
Taktype
Flatt tak
Høyde
6.5 m
Vinduer
4
Dører
1
Synlige etasjer
1
Vest
Materiale
Tre
Taktype
Flatt tak
Høyde
6.5 m
Vinduer
4
Dører
1
Synlige etasjer
2

Hovedbygg

Sør
Vinduer
0
Dører
0
Synlige etasjer
0

Hendelser

16.04.2026 Morenen 74 - 1/3880 - supplering - bolig med garasje
10.04.2026 Morenen 74 - 1/3880 - setter saken på vent - bolig med garasje
26.03.2026 Morenen 74 - 1/3880 - om omprosjektering - bolig med garasje
25.03.2026 Morenen 74 -1/3880 - svar på henvendelse - ber om omprosjektering - bolig med garasje
25.03.2026 Morenen 74 - 1/3880 - status og befaring - bolig med garasje
11.02.2026 Morenen 74 -1/3880 - godkjent sanitærmelding
05.02.2026 Morenen 74 -1/3880 - supplering av søknad
05.02.2026 Morenen 74 -1/3880 - ett-trinnssøknad - bolig med garasje