NewConstruction Ferdigattest Enebolig

Ny enebolig med garasje og murer i Nedre Knappen 10, Øygarden

📍 Nedre Knappen 10 , 5355 KNARREVIK

Nøkkelinfo

Sakstype
Nybygg
Bygningstype
Enebolig
Bruksareal
161 m²
Boenheter
1
Kommune
Øygarden
Fylke
Vestland
Gnr / Bnr
38 / 206
Saksnummer
21/415
Fase
Ferdigattest

Om byggesaken

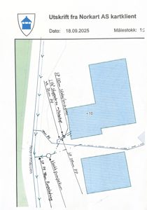
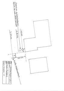
Ny enebolig i to etasjer med flatt tak på øst- og vestfasade og saltak på nord- og sørfasade, plassert på Nedre Knappen 10 i Øygarden kommune. Boligen har et bruksareal på ca. 161 m² og er oppført i tre med gesimshøyde på 6 meter og mønehøyde på 8 meter. Det er tilhørende garasje på 44,1 m² med en etasje og bod i annen etasje. Eiendommen har flere støttemurer i naturstein, hvorav tre er 2 meter høye og en er 0,5 meter høy, plassert nær nabogrense med dispensasjon. Det er gjennomført grensejustering med tilhørende dispensasjon for utnyttingsgrad. Tiltaket inkluderer også legging av VA-ledninger med tilknytning til offentlig nett via private ledninger. Det foreligger dokumentert vegrett til eiendommen via regulert privat veg, men det har vært omfattende naboklager knyttet til privatrettslige forhold, veirett og plassering av murer og avkjørsel. Kommunen har gitt dispensasjon og igangsettingstillatelse på vilkår, og saken har vært gjenstand for klage og utsett iverksetting. Ferdigattest er utstedt etter at mangler ble lukket.

Produkter og materialer

Fasade Trepanel

🧱 Tre

Trepanel på fasader øst og vest

Trepanel som fasademateriale

Tømrer Tømrerarbeid

Tømrerarbeid for bolig og garasje

Tømrerarbeid

Elektro Elektrisk anlegg

Elektrisk anlegg i bolig og garasje

Elektrisk installasjon

Grunnarbeid Terrenginngrep og sprengning

Terrenginngrep med sprengning for å oppnå planeringshøyde kote +15 m for bolig og +13 m for garasje

Terrengarbeid med sprengning og planering

Dører Ytterdør og garasjeport

🧱 Tre

Antall: 3

Ytterdør på øst og vest fasade, garasjeport på vestfasade

Ytterdører og garasjeport i tre

Bad Våtrom

Våtrom med membran og flisarbeid, kontrollert av Alfatakst Jens Lie

Bad og våtromsinstallasjoner

Maling Innvendig og utvendig maling

Maling av trepanel og innvendige flater

Maling og overflatebehandling

Garasjeport Garasjeport i tre

🧱 Tre

Antall: 1

Garasjeport på vestfasade

Garasjeport i tre for garasje på 44,1 m²

Trapper Innvendig trapp

Antall: 1

Innvendig trapp i enebolig

Innvendig trapp mellom etasjer

Ventilasjon Ventilasjonssystem

Ventilasjon i bolig

Ventilasjonssystem

Gulv Innvendige gulv

Gulv i bolig, ikke spesifisert materiale

Innvendige gulvflater

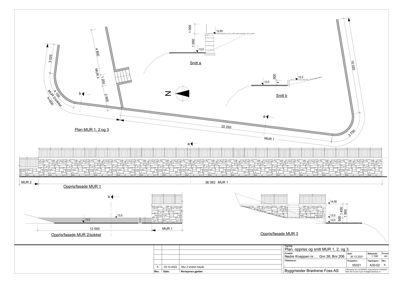
Mur Natursteinsmur

🧱 Naturstein

Antall: 5

Mur 1, 3 og 4 er 2 m høye, mur 2 er 0,5 m høy, mur 5 er 0,5 m høy

Natursteinsmurer for terrenginngrep og uteareal

Tak Flatt tak og saltak

Flatt tak på øst og vest, saltak på nord og sør

Tak med kombinasjon av flatt tak og saltak

VVS VA-ledninger

Legging av vann- og avløpsledninger med tilknytning til offentlig nett via private ledninger

Vann- og avløpsinstallasjoner

Vinduer Fasadevindu

🧱 Tre

Antall: 11

Vinduer i tre på øst (1), vest (6), nord (2) og sør (2) fasade

Fasadevinduer i tre for enebolig

Plantegning

Garasje 44.1 m²

Etasje 1 44.1 m²

Rom Areal Vinduer Dører
Garasje 44.1 m² 0 0

Etasje 2 0.0 m²

Rom Areal Vinduer Dører
Bod 0.0 m² 0 0

Fasader

Enebolig

Øst
Materiale
Tre
Taktype
Flatt tak
Vinduer
1
Dører
1
Synlige etasjer
2
Vest
Materiale
Tre
Taktype
Flatt tak
Høyde
6.0 m
Mønehøyde
8.0 m
Vinduer
6
Dører
1
Synlige etasjer
2
Nord
Taktype
Saltak
Vinduer
2
Dører
0
Synlige etasjer
2
Sør
Taktype
Saltak
Vinduer
2
Dører
0
Synlige etasjer
2

Hendelser

17.11.2025 GBNR 38/206 - Ferdigattest
14.11.2025 GBNR 38/206 - Framleis manglar ved søknaden
14.11.2025 GBNR 38/206 - Søknad om ferdigattest
13.11.2025 GBNR 38/206 - Svar på tilbakemelding om manglar
12.11.2025 GBNR 38/206 - Tilbakemelding om manglar
31.10.2025 GBNR 38/206 - Søknad om ferdigattest 3 av 3
31.10.2025 GBNR 38/206 - Søknad om ferdigattest 1 av 3
31.10.2025 GBNR 38/206 - Søknad om ferdigattest 2 av 3
12.06.2024 GBNR 38/206 - Avvising av søknad om endring av tiltak
24.04.2024 GBNR 38/206 - Vedkomande mangler til søknad om endring
26.01.2024 GBNR 38/206 - Tilbakemelding til nabo vedkomande vassleidning
25.01.2024 GBNR 38/206 - Svar i frå tiltakshavar vedkomande vassleidning
17.01.2024 GBNR 38/206 - Vedkomande vasstilførsel til naboen gnr. 38/101
17.01.2024 GBNR 38/206 - Vedkomande mangler til søknad om endring
15.01.2024 GBNR 38/206 - Vedk påvirkning vasstilførsel til eigedom 38/101
13.10.2023 GBNR 27/228 - Trekkjer klage og krav om oppsettande verknad
12.10.2023 GBNR 38/206 - Melding om avslutning av klagesak - Vågo
04.10.2023 GBNR 38/206 - Avgjerd om utsett iverksetjing av vedtak 1089/23 - Vedtak om dispensasjon og løyve til oppføring av bustad med tilhøyrande anlegg
19.09.2023 GBNR 38/206 - Førebels svar på mottatt klage på vedtak 1089/23 - Vedtak om dispensasjon og løyve til oppføring av bustad med tilhøyrande anlegg
19.09.2023 GBNR 38/206 - Melding om klage om mottatt klage på vedtak 1089/23 - Vågo
15.09.2023 GBNR 38/206 - Klage på vedtak og krav om oppsetjande verknad
06.09.2023 GBNR 38/206 - Melding om vedtak
06.09.2023 GBNR 38/206 - Vedtak om dispensasjon og løyve til oppføring av bustad med garasje, murar og tilhøyrande terrenginngrep, samt VA - leidningar
06.09.2023 GBNR 38/206 - Vedtak til klagevurdering
31.07.2023 GBNR 38/206 - Søknad om endring av gitt løyve
18.07.2023 GBNR 38/206 - Førebels svar på melding om arbeid som kan vere i strid med byggjeløyve
11.07.2023 GBNR 38/206 - Supplering av søknad
06.07.2023 GBNR 38/206 - Ber om nabovarsling og frisikt vert vist
22.06.2023 GBNR 38/206 - Søknad om endring av løyve
09.06.2023 GBNR 38/206 - Melding om arbeid som ikkje er i samsvar med byggjeløyve
05.06.2023 GBNR 38/206 - Omgjering av delegert vedtak 519/23 - Dispensasjon og løyve til oppføring av bustad med garasje og murar
01.06.2023 GBNR 38/206 - Avgjerd om utsett iverksetjing av løyve for oppføring av bustad
01.06.2023 GBNR 38/206 - Svar på krav om innsyn i vegrett
31.05.2023 GBNR 38/206 - Krav om omgjering av oppsetjande verknad
30.05.2023 GBNR 38/206 - Ber om tilbakemelding på krav om oppsetjande verknad
30.05.2023 GBNR 38/206 - Ber om innsyn i vegrett
26.05.2023 GBNR 38/206 - Førespurnad om møte
26.05.2023 GBNR 38/206 - Korrespondanse med Harris Advokatfirma vedkomande dokumentasjon på vilkår
26.05.2023 GBNR 38/206 - Om utsatt verknad på løyve
26.05.2023 GBNR 38/206 - Supplering til klage og krav om oppsetjande verknad
26.05.2023 GBNR 38/206 - Melding om klage, oppmoding om uttale
26.05.2023 GBNR 38/206 - Vedkomande henvendelse
25.05.2023 GBNR 38/206 - Dokumentasjon på vilkår satt i vedtak
25.05.2023 GBNR 38/206 - Melding om oppstart av arbeid på tomt
25.05.2023 GBNR 38/206 - Førebels svar på mottatt klage på vedtak 519/23 - Vedtak om dispensasjon og løyve til oppføring av bustad med
25.05.2023 GBNR 38/206 - Svar på dokumentasjon på vilkår satt i vedtak
24.05.2023 GBNR 38/206 - Krav om utsetjing av iverksetjing
22.05.2023 GBNR 38/206 - Klage på vedtak og krav om utsetjing av iverksetjing av vedtak
22.05.2023 GBNR 38/206 - Svar på e-post frå advokatfirma Harris AS
16.05.2023 GBNR 38/206 - Vedtak om dispensasjon og løyve til oppføring av bustad med garasje og murar
16.05.2023 GBNR 38/206 - Ber om dokumentasjon og oppsetjande verknad på løyve
12.05.2023 GBNR 38/206 - Vedtak til klagevurdering
12.05.2023 GBNR 38/206 - Melding om vedtak
20.03.2023 GBNR 38/206 - Orientering om privatrettslege rettigheiter
02.03.2023 GBNR 38/206 - Merknad til innsendte opplysningar
20.02.2023 GBNR 38/206 - Supplering av søknad
08.02.2023 GBNR 38/206 - Tilleggsdokumentasjon til merknader til nabovarsel