NewConstruction Igangsettingstillatelse Enebolig

Ny enebolig med garasje i Orestien 7, Asker

📍 Orestien 7 , 1387 ASKER

Nøkkelinfo

Sakstype
Nybygg
Bygningstype
Enebolig
Bruksareal
446 m²
Boenheter
1
Kommune
Asker
Fylke
Akershus
Gnr / Bnr
49 / 199
Saksnummer
22/286
Fase
Igangsettingstillatelse

Om byggesaken

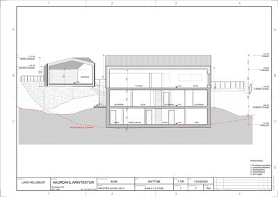
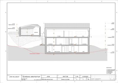
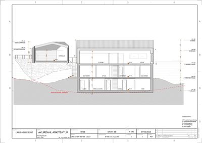
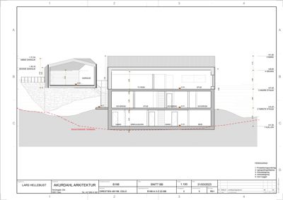
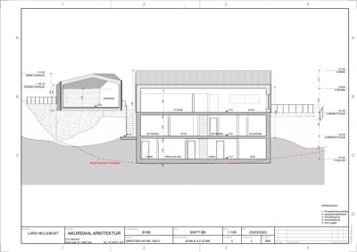
Ny enebolig med garasje på 446 m² BRA fordelt på tre etasjer, plassert i en bratt skråning fra vei ned mot et vassdrag. Boligen har en etasje mot veien og to etasjer mot nedsiden, med skråtak og trekledning som vil gråne naturlig. Det er etablert uteoppholdsarealer mot vei og terrengoppfylling på nedsiden for flomsikring og tilgjengelighet. Tomten ligger i en flomutsatt sone med registrert lokal naturverdi i form av flompåvirket oreskog. Prosjektet inkluderer omfattende tiltak for overvannshåndtering, flomsikring og naturrestaurering, med sikringsgjerde mot vassdraget i anleggsperioden. Det er gitt dispensasjon fra kommuneplanens krav til byggeavstand fra vassdrag og uteoppholdsareal, med vilkår om restaurering av naturmark og dokumentasjon av sikringsgjerde. Prosjektet har vært gjenstand for klager og tilsyn, blant annet på grunn av feil situasjonskart og oppføring av anleggsgjerde i vassdraget, men har fått rammetillatelse og igangsettingstillatelse. Det er en kompleks sak med mange involverte aktører og omfattende dokumentasjon.

Produkter og materialer

Dører Ytterdør

🧱 Tre

Antall: 15

Ytterdører i tre til innganger og utganger

Elektro Ventilasjon og klimainstallasjoner

Ventilasjon og klimainstallasjoner for bolig

Grunnarbeid Oppfylling og fundamentering

🧱 Velgradert knust stein 0-300 mm, fiberduk klasse 4

Oppfylling i to faser (4+2 m), komprimering med vibrovals

Oppfylling og fundamentering for bolig og utearealer, inkl. flomsikring

Vinduer Fasadevindu

🧱 Tre

Antall: 20

Fasadevinduer i tre, fordelt på flere fasader

VVS Varme- og kuldeinstallasjoner

Gulvvarme og varmepumpe

Varme- og kuldeinstallasjoner for bolig

Gulv Parkett

🧱 Eik

Eikeparkett i bolig

Innvendige gulvflater

Garasjeport Garasjeport

Antall: 1

Garasjeport til frittstående garasje

Annet Sikringsgjerde

Midlertidig gjerde 10 meter fra bekkekant i anleggsperioden

Sikringsgjerde mot hensynssonen i anleggsperioden

VVS Avløpsanlegg

Avløpsanlegg for bolig

Tak Saltak

🧱 Tre

Antall: 1

Saltak på hovedbygning og garasje

Vegarbeid Veg- og grunnarbeider

Oppfylling, fundamentering, peling, mellomlagring topplag jord, overvannshåndtering

Veg- og grunnarbeider for tomt og utearealer

Mur Støttemur

🧱 Naturstein tørrmur

Maks 50 cm høyde, unntatt under garasje

Støttemurer i naturstein for terrengregulering

Landskap Landskapsutforming

Plan for funksjonell flommark med naturlig vegetasjon, naturrestaurering

Landskapsutforming og restaurering av naturmark

Fasade Trekledning

🧱 Tre

Behandlet med jernvitrol

Trekledning på bolig og anneks

Annet Naturrestaurering

Gjenbruk av jord og bunntorver, planting av stedegne arter

Naturrestaurering av flommark og kantvegetasjon

Trapper Innvendig trapp

Antall: 1

Innvendig trapp mellom etasjer

VVS Utvendig sanitær vannforsyningsanlegg

Vannforsyningsanlegg til bolig

VVS Sanitærinstallasjoner

Sanitærinstallasjoner for bolig

Tømrer Tømrerarbeid og montering av trekonstruksjoner

Inkluderer glassfasader, radonsperre, membraner

Tømrerarbeid for bolig og garasje

Betong Plasstøpte betongkonstruksjoner

Betongkonstruksjoner for fundamenter og støttemurer

Plantegning

Enebolig 446.4 m²

Etasje 2 185.5 m²

Rom Areal Vinduer Dører
Stue 2.06 38.2 m² 1 1
Kontor 2.07 5.4 m² 0 1
Soverom 2.09 12.0 m² 1 1
Stue 2.10 16.5 m² 1 1
Bad 2.03 5.3 m² 0 1
Bad 2.04 5.3 m² 0 1
Kjøkken 2.05 18.5 m² 0 1
Ingang 2.01 4.1 m² 0 1
Ingang 2.02 4.0 m² 0 1
Kjøkken 2.11 7.4 m² 0 1
Terrasse TERRASSE 17.2 m² 0 0

Etasje 0 124.7 m²

Rom Areal Vinduer Dører
BOD 1.09 22.7 m² 0 1
TEKNISK 1.08 20.4 m² 0 1
GANG 1.07 7.9 m² 0 2
BAD 1.05 3.9 m² 0 1
VASKEROM 1.06 7.2 m² 0 1
FLERBRUKSROM 1.04 34.6 m² 0 1
SPORTSBOD 1.02 5.2 m² 0 1
SPORTSBOD 1.03 5.2 m² 0 1
GANG 1.01 2.5 m² 0 1

Etasje 1 136.2 m²

Rom Areal Vinduer Dører
Soverom 2.01 18.7 m² 1 1
Bad 2.02 4.7 m² 0 1
Stue 2.03 38.6 m² 1 1
Gang 2.04 8.5 m² 0 3
Bad 2.05 5.4 m² 1 1
Soverom 2.06 19.8 m² 1 1
Soverom 2.07 18.1 m² 1 1

Fasader

Enebolig

Sørvest
Materiale
Tre
Taktype
Saltak
Høyde
3.0 m
Mønehøyde
50.0 m
Vinduer
4
Dører
3
Synlige etasjer
2
Sørøst
Materiale
Tre
Taktype
Saltak
Høyde
5.5 m
Mønehøyde
8.2 m
Vinduer
1
Dører
1
Synlige etasjer
2
Nordøst
Materiale
Tre
Taktype
Saltak
Høyde
6.5 m
Mønehøyde
8.2 m
Vinduer
11
Dører
1
Synlige etasjer
3
Nordvest
Materiale
Tre
Taktype
Saltak
Høyde
6.0 m
Mønehøyde
51.9 m
Vinduer
2
Dører
1
Synlige etasjer
3
Nord
Materiale
Tre
Taktype
Flatt tak
Høyde
3.8 m
Vinduer
0
Dører
1
Synlige etasjer
1
Øst
Materiale
Tre
Taktype
Saltak
Høyde
3.8 m
Mønehøyde
5.4 m
Vinduer
0
Dører
0
Synlige etasjer
1

Annex

Sør
Materiale
Tre
Taktype
Saltak
Høyde
4.8 m
Mønehøyde
6.4 m
Vinduer
1
Dører
1
Synlige etasjer
2
Nord
Materiale
Tre
Taktype
Saltak
Høyde
4.8 m
Mønehøyde
6.4 m
Vinduer
1
Dører
0
Synlige etasjer
2

Hendelser

15.04.2026 49/199 Orestien 7 - Tilsynsrapport med avvik
24.03.2026 49/199 Orestien 7 svar om utsettelse av frist Orestien 7 - Nybygg enebolig med garasje
17.03.2026 49/199 Orestien 7 - Svar - Tilsynsrapport med avvik
17.03.2026 49/199 Orestien 7 - Svar på spørsmål angående parkering
17.03.2026 49/199 Orestien 7 - Varsel om oppheving av vedtak om igangsettingstillatelse og vedtak om rammetillatelse
16.03.2026 49/199 Orestien 7 - Klage på på vedtak om oppføring av bygg
06.03.2026 49/199 Orestien 7 - Pålegg om stans og ileggelse av tvangsmulkt
25.02.2026 49/199 Orestien 7 - Oppfølging av tidligere nabovarsel
09.02.2026 49/199 Orestien 7 - Forslag til møtetidspunkt
09.02.2026 49/199 Orestien 7 - Vedrørende møte - Klage på igangsetting
09.02.2026 49/199 Orestien 7 - Klage på IG - Deltar gjerne i møte
09.02.2026 49/199 Orestien 7 - Spørsmål vedrørende parkering
06.02.2026 49/199 Orestien 7 - Klage på igangsettingstillatelse
21.01.2026 49/199 Orestien 7 - Igangsettingstillatelse- Nybygg - Enebolig med garasje
06.01.2026 49/199 Orestien 7 - Dokumentasjon
05.01.2026 49/199 Orestien 7 - Søknad om igangsettingstillatelse
10.11.2025 49/199 Orestien 7 - Kommentar til anleggsgjerde i Fusdalbekken
10.11.2025 49/199 Orestien 7 - Anleggsgjerde i Fusdalbekken - Tilbakemelding på svar fra tiltakshaver
10.11.2025 49/199 Orestien 7 - E-postkorrespondanse - Anleggsgjerde i Fusdalbekken - kommentarer
17.06.2024 49/199 Nybygg enebolig med utleiedel og garasje - Kreditering av gebyr
15.09.2023 49/199 Klage på saksbehandlingsgebyr - Nybygg - Enebolig med utleiedel og garasje
13.06.2023 49/199 Rammetillatelse med dispensasjon- nybygg enebolig
12.06.2023 49/199 Søknad om dispensasjon og reviderte tegninger - Nybygg - Enebolig med utleiedel og garasje
12.06.2023 49/199 Revidert tegning søknad om nybygg - enebolig
08.06.2023 49/199 Ufullstendig søknad om nybygg - enebolig
11.04.2023 49/199 Supplering av søknad - Nybygg - Enebolig med utleiedel og garasje
05.04.2023 49/199 Merknader til nabovarsel - Nybygg - Enebolig med utleiedel og garasje
05.04.2023 49/199 Merknader til nabovarsel - Nybygg - Enebolig med utleiedel og garasje
01.04.2023 49/199 Søknad om endring av gitt tillatelse - Nybygg - Enebolig med utleiedel og garasje
10.02.2023 49/199 Utsettelse av svarfrist - Nybygg - Enebolig med utleiedel og garasje
09.02.2023 49/199 Innvilger utsatt frist - Nybygg enebolig med utleiedel og garasje
06.01.2023 49/199 Anmoder om revideringer - Varsel om avslag - Enebolig med utleiedel og garasje
04.01.2023 49/199 Søkers tilbakemelding (uten tegninger) - Nybygg - Enebolig med utleiedel og garasje
30.10.2022 49/199 Tilbakemelding - Nybygg enebolig med utleiedel og garasje
19.10.2022 49/199 Spørsmål om tilbakemelding - Nybygg - Enebolig med utleiedel og garasje
13.06.2022 49/199 Statsforvalterens uttalelse til søknad om dispensasjon - Nybygg - Enebolig med utleiedel og garasje
02.06.2022 49/199 Fylkeskommunens uttalelse - Nybygg - Enebolig med utleiedel og garasje
18.05.2022 49/199 Anmodning om uttalelse - Nybygg og terrengendringer - Enebolig med utleiedel og garasje
06.05.2022 49/199 Ønsker kontakt for avklaringer før saksbehandling - Nybygg - Enebolig med utleiedel og garasje
29.04.2022 49/199 Anmodning om uttalelse - Nybygg og terrengendringe
28.04.2022 49/199 Ønsker kontakt med saksbehandler - Nybygg - Enebolig med utleiedel og garasje
31.01.2022 49/199 Kvitteringsbrev - Nybygg - Enebolig med utleiedel og garasje
27.01.2022 49/199 Søknad om nybygg - Enebolig med utleiedel og garasje