NewConstruction Igangsettingstillatelse Enebolig

Nybygg og rehabilitering av enebolig i Oscars gate 1, Halden

📍 Oscars gate 1 , 1771 HALDEN

Nøkkelinfo

Sakstype
Nybygg
Bygningstype
Enebolig
Bruksareal
272 m²
Boenheter
1
Kommune
Halden
Fylke
Østfold
Gnr / Bnr
62 / 307
Saksnummer
2020/11278
Fase
Igangsettingstillatelse

Om byggesaken

Prosjektet omfatter oppføring av et nytt bygningsvolum i eneboligen på Oscars gate 1, Halden, samt omfattende rehabilitering og ombygging av eksisterende bygningsmasse. Nybygget har et areal på ca. 208 m² BRA, med saltak og trepanel som fasademateriale. Eksisterende bygg har valmtak og trepanel. Tiltaket inkluderer fasadeendringer, bruksendring, sammenføyning av bygningsvolumer, samt innvendige riving- og tømrerarbeider. Det er planlagt balkong og flere terrasser, og det stilles krav til miljøsanering og avfallshåndtering. Prosjektet er under igangsetting med godkjent igangsettingstillatelse for innvendige arbeider, og det foreligger dokumentasjon på fargedetaljer og kulturminnehensyn.

Produkter og materialer

Gulv Innvendige gulv

Innvendige gulv skal rehabiliteres i forbindelse med ombygging

Rehabilitering og oppgradering av innvendige gulv i eneboligen

Betong Grunnarbeid og fundamentering

Sikker byggegrunn må dokumenteres før igangsetting av utvendige arbeider

Grunnarbeid og fundamentering for nybygg og rehabilitering

Elektro Elektriske installasjoner

Oppgradering av elektriske anlegg i forbindelse med rehabilitering

Elektriske installasjoner oppgraderes i eksisterende og ny bygningsmasse

Fasade Trepanel

🧱 Tre

Trepanel på eksisterende og nytt bygg, fargedokumentasjon utført, fargetype og fargekode skal dokumenteres

Fasademateriale i trepanel for både eksisterende og nybygg, med krav til farge og kulturminnehensyn

Tømrer Innvendige tømrerarbeider

Innvendige riving- og tømrerarbeider i eksisterende bebyggelse

Innvendige tømrerarbeider som del av rehabilitering og ombygging

Dører Ytterdører og terrassedører

🧱 Tre

Antall: 8

Ytterdører og dører til terrasser i tre, antall fra tegningsanalyse

Ytterdører og terrassedører i tre for nybygg og eksisterende bygg

Maling Fasademaling og innvendig maling

Fargetype og fargekode for fasade og trapp skal dokumenteres og følges

Maling av fasade og innvendige overflater i henhold til fargedokumentasjon

Trapper Innvendig trapp

Antall: 1

Innvendig trapp i eneboligen

Innvendig trapp i eksisterende og ny bygningsmasse

VVS Sanitærinstallasjoner

Oppgradering av bad og sanitærinstallasjoner i forbindelse med rehabilitering

Oppgradering av VVS-installasjoner i bad og øvrige våtrom

Vinduer Fasadevindu

🧱 Tre

Antall: 14

Vinduer i tre på fasader, antall fra tegningsanalyse

Fasadevinduer i tre for nybygg og eksisterende bygg

Miljøsanering Avfallshåndtering og miljøsanering

Miljøsanering og avfallshåndtering skal prosjekteres og utføres i henhold til TEK17 og SAK10

Planlegging og utførelse av miljøsanering og avfallshåndtering i byggeprosjektet

Tak Saltak og valmtak

Nybygg med saltak, eksisterende bygg med valmtak

Taktekking for nybygg og eksisterende bygg med saltak og valmtak

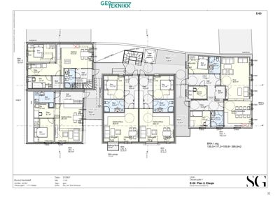
Plantegning

Hovedbygg 271.6 m²

Etasje 2 271.6 m²

Rom Areal Vinduer Dører
Stue 201 13.0 m² 1 1
Kjøkken 202 13.4 m² 1 1
Sov 203 12.1 m² 0 1
Bod 204 3.8 m² 0 1
Bad 205 2.9 m² 0 1
Disp 206 23.2 m² 0 1
Terrasse 207 12.9 m² 0 1
Terrasse 208 13.9 m² 0 1
Terrasse 209 43.6 m² 0 1
Næring 210 68.0 m² 0 1
Kontor 211 17.2 m² 1 1
Gang 212 23.3 m² 0 1

Fasader

Enebolig

Vest
Materiale
Tre
Taktype
Saltak
Høyde
6.6 m
Vinduer
4
Dører
1
Balkonger
1
Synlige etasjer
2

Eksisterende bygg

Øst
Materiale
Tre
Taktype
Valmtak
Vinduer
2
Dører
0
Synlige etasjer
2
Vest
Materiale
Tre
Taktype
Valmtak
Vinduer
6
Dører
1
Synlige etasjer
2
Sør
Materiale
Tre
Taktype
Valmtak
Vinduer
5
Dører
1
Synlige etasjer
2
Nord
Materiale
Tre
Taktype
Valmtak
Vinduer
6
Dører
1
Synlige etasjer
2

Hendelser

13.04.2026 62/307 - Oscars gate 1 - Søknad om endring av gitt tillatelse eller godkjenning
27.11.2025 Anmodning om innsyn
27.11.2025 Svar på anmodning om innsyn
12.06.2024 Igangsettingstillatelse nr. 1
11.06.2024 Be rom ytterligere opplysninger
11.06.2024 Revidert gjennomføringsplan og erklæring om ansvarsrett
11.06.2024 Svar - Oscarsgate 1
10.06.2024 Revidert søknad om igangsettingstillatelse nr. 1
14.05.2024 Ber om ytterligere opplysninger
26.04.2024 62/307 - Oscars gate 1 - Søknad om Igangsetting 01.
27.09.2021 Orientering om vedtak om oppføring av nybygg, samt bruksendring, sammenføyning, renovering, ombygging, fasadeendring av bevaringsverdig bygg og unntak fra tekniske krav i TEK17
08.09.2021 Oversender ytterligere opplysninger, og korrigerte tegninger
06.08.2021 Revidert følgeskriv
06.08.2021 Revidert og supplerende dokumentasjon - Epost 2
12.07.2021 Varsel om mangler - ber om ytterligere dokumentasjon
29.06.2021 Oversender ytterligere dokumentasjon
24.06.2021 Halden kommune - uttalelse - Oscars gate 1 - Gbnr 62/307 - dispensasjon - Oppføring av nybygg , rehabilitering/ ombygging, fasadeendring, bruksendring og fravik fra tekniske krav i TEK17
21.06.2021 Korrespondanse med Viken fylkeskommune
18.06.2021 Utfyllende opplysninger, del 2
18.06.2021 Utfyllende opplysninger, del 1
17.06.2021 62/307 - Oscars gate 1 - utfyllende opplysninger
17.06.2021 62/307 - Oscars gate 1 -utfyllende opplysninger. Epost nr. 2.
10.06.2021 Svar på bestilling Elements eInnsyn - Del 1 - jp 5 og 7
07.06.2021 Svar på bestilling av Elements elinnsyn - Del 2 - jp 8
28.05.2021 Bestilling Elements eInnsyn - jp 2,3,5,7,8
25.05.2021 Oversendelse av sak for uttalelse
21.05.2021 Vi trenger flere opplysninger for å kunne behandle søknaden
18.05.2021 Oscars gate 1(G/Bnr. 62/307), Søknad om rammetillatelse, epost nr.2
18.05.2021 Oscars gate 1(G/Bnr. 62/307), Søknad om rammetillatelse, epost nr.1
12.05.2021 Ber om at vedlegg oversendes på nytt
17.03.2021 Oscars gate 1(G/Bnr. 62/307), Søknad om rammetillatelse, epost nr.1
17.03.2021 Oscars gate 1(G/Bnr. 62/307), Søknad om rammetillatelse, epost nr.2
23.12.2020 Vedrørende Oskars gate 1