NewConstruction Ferdigattest Enebolig

Ferdigattest for enebolig på Østhagen 11

📍 Østhagen 11 , 3430 SPIKKESTAD

Nøkkelinfo

Sakstype
Nybygg
Bygningstype
Enebolig
Bruksareal
120 m²
Boenheter
1
Kommune
Asker
Fylke
Akershus
Gnr / Bnr
279 / 23
Saksnummer
26/1207
Fase
Ferdigattest

Om byggesaken

Enebolig på 120,5 m² med saltak og trekledning, fordelt på ett plan med flere rom inkludert stue, kjøkken, bad, vaskerom, kontor/hobbyrom og tre soverom. Bygget har en trapp, flere vinduer og dører, og pipe. Fasader mot vest, nord, sør og øst er i tre med saltak, og det finnes balkonger på vest- og nordfasade. Bygget har et tradisjonelt boligdesign med funksjonelle rom og tekniske installasjoner som varmefordeling og energisystemer.

Produkter og materialer

Grunnarbeid Fundamentering og drenering

Grunnarbeid inkludert fundamentering og drenering for eneboligen

Bad Sanitærutstyr og fliser

Bad med sanitærutstyr og flislagte overflater

Fasade Trekledning

🧱 tre

Trekledning på alle fasader

Betong Fundament og plate

Betongfundament og plate for eneboligen

Tømrer Bærekonstruksjon og innvendige arbeider

🧱 tre

Tømrerarbeid for bærekonstruksjon, vegger, tak og innvendige overflater

Dører Ytterdør og innerdører

🧱 tre

Antall: 9

Ytterdører og innerdører til rom og utgang, totalt 9 dører

Gulv Parkett og fliser

Gulv med parkett i oppholdsrom og fliser i våtrom

Tak Saltak

🧱 tre

Antall: 1

Saltak i tre på eneboligen

Trapper Innvendig trapp

Antall: 1

Innvendig trapp i eneboligen

Pipe Murt pipe

🧱 mur

Antall: 1

Pipe tilknyttet ildsted i eneboligen

Elektro Elektrisk anlegg

Elektrisk installasjon for bolig med belysning og strømuttak

VVS Varmefordeling

Vannbåren gulvvarme

Vannbåren gulvvarme som varmefordeling i boligen

VVS Varmeproduksjon

Luftvarmepumpe

Luftvarmepumpe som energiforsyning for oppvarming

Vinduer Fasadevindu

🧱 tre

Antall: 8

Fasadevindu i tre, fordelt på stue, kjøkken, kontor og soverom

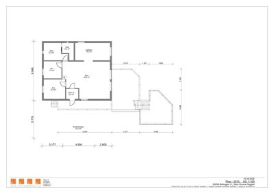
Plantegning

Enebolig 120.5 m²

Etasje 1 120.5 m²

Rom Areal Vinduer Dører
Stue 101 36.5 m² 2 2
Kontor/hobby 102 10.7 m² 1 1
Sov 103 9.9 m² 1 1
Sov 104 7.3 m² 1 1
Bad 105 8.2 m² 0 1
Vask 106 3.5 m² 0 1
Kjøkken 107 14.3 m² 1 1
Grov G. 108 2.9 m² 0 1

Fasader

Enebolig

Vest
Materiale
Tre
Taktype
Saltak
Vinduer
2
Dører
0
Balkonger
1
Synlige etasjer
2
Nord
Materiale
Tre
Taktype
Saltak
Vinduer
3
Dører
0
Balkonger
1
Synlige etasjer
2
Sør
Materiale
Tre
Taktype
Saltak
Vinduer
3
Dører
0
Synlige etasjer
1
Øst
Materiale
Tre
Taktype
Saltak
Vinduer
1
Dører
0
Synlige etasjer
1

Hendelser

15.04.2026 279/23 Østhagen 11 - Søknad om ferdigattest