NewConstruction UnderBehandling Enebolig

To kjedede eneboliger med garasje i Parkveien 11A, Rakkestad

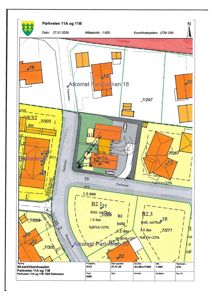
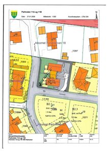
📍 Parkveien 11A , 1890 RAKKESTAD

Nøkkelinfo

Sakstype
Nybygg
Bygningstype
Enebolig
Bruksareal
243 m²
Boenheter
2
Kommune
Rakkestad
Fylke
Østfold
Gnr / Bnr
7 / 266
Saksnummer
2026/489
Fase
Under behandling

Om byggesaken

Prosjektet omfatter oppføring av to kjedede eneboliger i ett plan med tilhørende garasje og bod, totalt to boenheter. Hver bolig har et bruksareal på ca. 121,5 m², inkludert 97,5 m² innvendig areal og 24 m² garasje/bod. Boligene har saltak med eksentrisk møne og tegl takmateriale, og fasadene er kledd med tre. Planløsningen inkluderer stue, kjøkken, flere soverom, bad, vaskerom og gangarealer. Det er etablert parkeringsplasser på terreng med dispensasjon for redusert antall plasser. Infrastrukturarbeidene inkluderer tilknytning til offentlig vann og avløp med egne stoppekraner og felles spylekum, samt overvannshåndtering på egen grunn. Utomhusplan viser terrasser, fjellskjæring, støttemur og veirett mellom boligene. Prosjektet er i søknadsfase med godkjente ansvarsrettserklæringer for prosjektering, utførelse og kontroll.

Produkter og materialer

Vinduer Fasadevindu

🧱 Tre med 3-lags glass

Antall: 14

Fasadevinduer i tre, totalt 14 stk fordelt på alle fasader

Ventilasjon Ventilasjonsanlegg

Antall: 1

Ansvarlig prosjekterende og utførende Larsen Kolstad Bygg AS

Ventilasjonsanlegg for boligene

Garasjeport Garasjeport i tre/metall

Antall: 2

Garasjeporter på østfasade, tilhørende hver bolig

Garasjeporter for hver bolig på 24,2 m² garasjeareal

Tak Saltak med teglstein

🧱 Teglstein

Antall: 1

Saltak med eksentrisk møne, tegl takmateriale

Saltak med teglstein som takmateriale for begge boliger

VVS Sanitæranlegg og vanninstallasjoner

Antall: 1

Inkluderer tilknytning til offentlig vann og avløp, egne stoppekraner og felles spylekum

Sanitæranlegg med vann- og avløpsinstallasjoner innvendig og utvendig

Mur Støttemur

🧱 Betong

Antall: 1

Alternativ støttemur på utsiden av ringmur bolig til underkant vannrør

Støttemur for terrengjustering og fundamentering

Fasade Trepanel

🧱 Tre

Antall: 1

Trepanel på alle fasader

Trepanel som fasademateriale på alle sider av bygget

Terrasse Markterrasse

🧱 Tre

Antall: 2

Markterrasser mot vest for begge boliger

Utendørs terrassearealer i tre på vestside

Dører Ytterdør og garasjeport

🧱 Tre og metall

Antall: 8

Inkluderer 2 garasjeporter på østfasade

Ytterdører og garasjeporter i tre/metall, totalt 8 stk

Elektro Fordelerskap EL

Antall: 2

Fordelerskap EL plassert i boligene

Elektriske fordelerskap for strømforsyning i boligene

Gulv Innvendige gulvflater

Innvendige gulv i boligene, antatt standard parkett og fliser i våtrom

Grunnarbeid Graving og grunnarbeid

Antall: 1

Utføres av RAA Graveservice AS

Grunnarbeid og utskifting av tiltak for fundamentering og infrastruktur

Bad Bad og våtrom

Antall: 2

Bad på ca. 6,4 m² per bolig med våtromsstandard

Bad med sanitærutstyr og flislagte gulv og vegger

Rekkverk Terrasserekkverk

🧱 Tre

Terrasser mot vest med rekkverk i tre

Rekkverk for markterrasser på vestside av boligene

Plantegning

Enebolig 121.5 m²

Etasje 1 121.5 m²

Rom Areal Vinduer Dører
Stue 01 40.3 m² 1 1
Bad 02 6.4 m² 0 1
Sov 03 11.0 m² 1 1
Gang 04 4.1 m² 0 2
Korridor 05 5.9 m² 0 1
Sov 06 8.1 m² 1 1
Sov 07 10.0 m² 1 1
Vask 08 3.0 m² 0 1
Sov 09 11.0 m² 1 1
Sov 10 10.0 m² 1 1
Korridor 11 5.9 m² 0 1
Gang 12 4.1 m² 0 2
Bad 13 6.4 m² 0 1
Stue 14 40.3 m² 1 1
Kjøkken 15 10.2 m² 1 1
Garasje 16 24.2 m² 0 1
Garasje 17 24.2 m² 0 1

Fasader

Enebolig

Nord
Materiale
Tre
Taktype
Saltak
Vinduer
3
Dører
1
Synlige etasjer
1
Øst
Materiale
Tre
Taktype
Saltak
Vinduer
4
Dører
2
Synlige etasjer
1
Sør
Materiale
Tre
Taktype
Saltak
Takmat.
Tegl
Vinduer
3
Dører
1
Synlige etasjer
1
Vest
Materiale
Tre
Taktype
Saltak
Takmat.
Tegl
Vinduer
6
Dører
2
Synlige etasjer
1

Hendelser

13.04.2026 7/266 - Løsning vedrørende vannledninger
06.03.2026 7/266 - Manglende opplysninger - Parkveien 11
20.02.2026 7/266 - Bekreftelse på mottatt søknad - Ett-trinns søknad - Nytt bygg - boligformål - Parkveien 11A
20.02.2026 7/266 - Ett-trinns søknad - Parkveien 11A